
Scheepenstraat5266 AL CromvoirtCromvoirt
€ 950.000 k.k.
Omschrijving
Vrij wonen in het groen – bouw je vrijstaande droomwoning aan de Scheepenstraat in Cromvoirt
Aan de sfeervolle Scheepenstraat in het geliefde Cromvoirt is de laatste beschikbare bouwkavel in de verkoop. De locatie combineert rust, ruimte en natuur met een uitstekende bereikbaarheid. De andere twee kavels zijn reeds verkocht – dus grijp deze unieke kans om jouw vrijstaande droomwoning te realiseren op een royaal perceel.
Ligging & omgeving
• Gelegen aan een rustige straat, direct aan natuur- en bosgebied
• Op loopafstand van recreatieplas De IJzeren Man
• Dichtbij Golfclub Bernardus
• Slechts 5 autominuten van het bruisende centrum van ’s-Hertogenbosch
• Op een steenworp afstand van natuurgebied de Loonse en Drunense Duinen
• Nabij ontsluitingswegen richting A2 en N65.
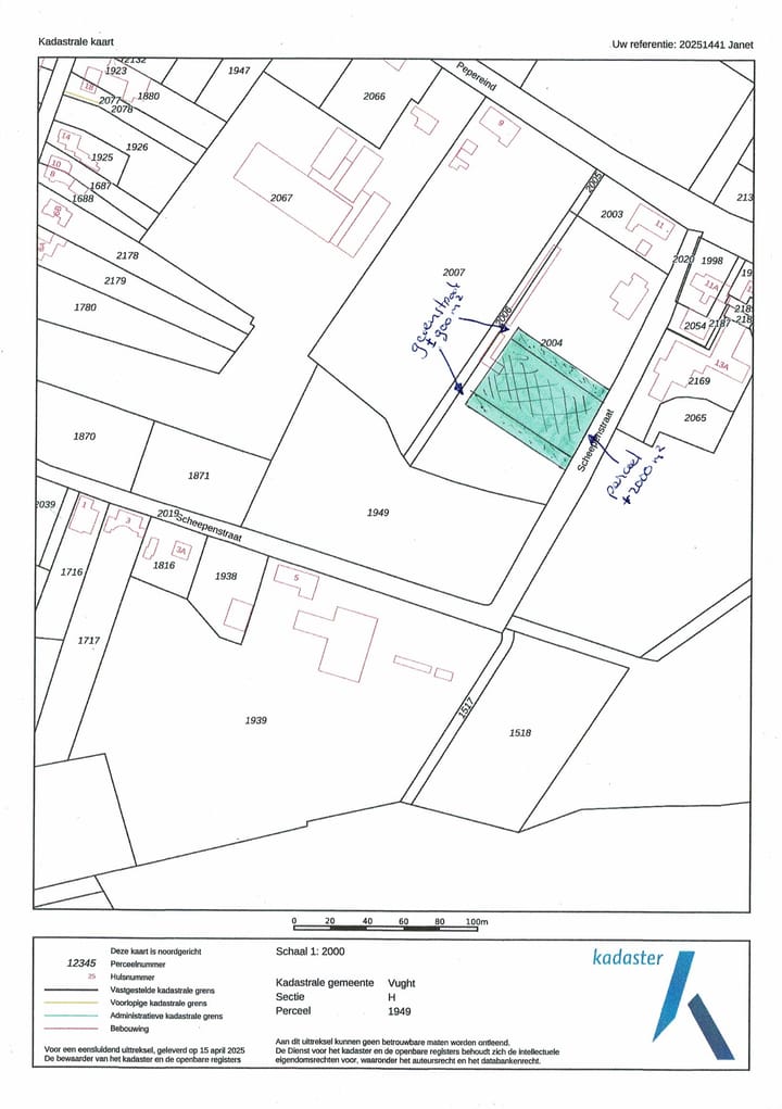
Het kavel met de woning
• Grootte perceel: ca. 2900m² (incl. 2 groenstroken aan weerszijden)
• Kadastrale inmeting dient nog plaats te vinden
• Grootte bouwvlak: ca. 325 m²
• Type woning: vrijstaand
• Goothoogte: max. 4 meter
• Bouwhoogte: max. 9 meter
• Dakhelling: minimaal 30 graden
• Architectuur: dorpse en landelijke uitstraling – rieten kap toegestaan, maar niet verplicht
• Onderkeldering: alleen toegestaan direct onder de woning (niet onder bijgebouwen of andere bouwwerken)
• Ligging tuin: zuid/west
Bijgebouwen (zoals garage, berging of tuinkamer)
• Maximale gezamenlijke oppervlakte: 200 m²
• Toegestaan: binnen het bouwvlak en op de aangeduide zone ‘bijgebouwen’
• Goothoogte: max. 3 meter
• Bouwhoogte: max. 5,5 meter
• Plaatsing: minimaal 3 meter achter de voorgevellijn van de woning
Erfafscheidingen en andere bouwwerken (zoals schuttingen, pergola’s, vlaggenmasten)
• Toegestaan binnen het bestemmingsvlak
• Erfafscheidingen: achter de gevellijn: max. 2 meter hoog, voor de gevellijn: max. 1 meter hoog
• Plaatsing: minimaal 1 meter achter de gevellijn (uitzondering: erfafscheidingen mogen op de perceelsgrens geplaatst worden)
Overig
• Aan-huis-verbonden beroepen en bedrijven zijn toegestaan, mits ondergeschikt aan de woonfunctie en passend
binnen de omgeving.
Belangrijk
Bij interesse wordt er rechtstreeks door de eigenaar van het kavel contact met u opgenomen. De verkoop van dit kavel wordt afgehandeld door de eigenaar zelf.
Kenmerken
Overdracht
- Aangeboden sinds
- Aanvaarding
- In overleg
- Vraagprijs
- € 950.000 kosten koper
- Status
- Beschikbaar
Bouw
- Soort object
- Bouwgrond
- Bouwrijp
- Nee
Indeling
- Perceel
- 2.900 m²
Buitenruimte
- Ligging
- Aan rustige weg, buiten bebouwde kom en in bosrijke omgeving
Foto's 8
© 2001-2025 funda







