
St.-Lambertusstraat 255266 AC CromvoirtCromvoirt
€ 1.195.000 k.k.
Omschrijving
Vrijstaande, instapklare woning in het gemoedelijke dorp Cromvoirt. Op de begane grond ligt een brede eetkamer centraal tussen de moderne keuken aan de voorzijde en de tuingerichte woonkamer met openslaande deuren, gashaard en aangrenzende werkkamer. De verdiepingen bieden in totaal vijf slaapkamers en twee comfortabel ingerichte badkamers. Buiten wacht een royale achtertuin met dubbele garage en berging, terwijl de oprit aan de voorzijde plaats biedt aan meerdere auto’s.
De woning ligt aan de hoofdstraat van Cromvoirt, in een dorpsomgeving met een basisschool en kinderopvang binnen handbereik. De ligging ten opzichte van Vught en het centrum van ’s-Hertogenbosch is bijzonder gunstig; beide zijn binnen enkele minuten met de auto bereikbaar. In de directe omgeving liggen recreatiegebied De IJzeren Man, de Loonse en Drunense Duinen en Bernardus Golf, waardoor natuur en ontspanning altijd dichtbij zijn. Ook de uitvalswegen N65, A2 en A59 zijn uitstekend bereikbaar, wat deze plek tot een aantrekkelijke woonomgeving maakt.
- Bouwkundig rapport aanwezig.
INDELING
Begane grond
Binnenkomst in de hal waar de garderobe, meterkast, trapopgang naar de eerste verdieping en een praktische trapkast zijn ondergebracht. Het toilet bevindt zich eveneens in deze hal, die tevens toegang biedt tot de eetkamer. De eetkamer vormt het middelpunt van de woning en strekt zich uit over de volledige breedte. De open keuken sluit hier direct op aan en is gelegen aan de voorzijde van het huis. De keuken beschikt over moderne inbouwapparatuur en biedt dankzij twee ramen met zonnescreens vrij uitzicht op de oprit en voortuin. Aan de andere zijde van de eetkamer bevindt zich de toegang tot de zijtuin en leiden schuifdeuren naar de tuingerichte woonkamer. De woonkamer is royaal opgezet en profiteert van veel daglicht door de openslaande deuren naar de achtertuin. De gashaard vormt een sfeervol middelpunt. Aan de rechterzijde van de woonkamer ligt de wasruimte, met aansluitingen voor de wasapparatuur en toegang tot de achtertuin. De aangrenzende werkkamer, voorzien van een grote lichtkoepel, voelt bijzonder licht en open en beschikt over dubbele deuren richting de oprit en voortuin. Op de begane grond is vloerverwarming aanwezig, met uitzondering van de wasruimte en de werkkamer.
Eerste verdieping
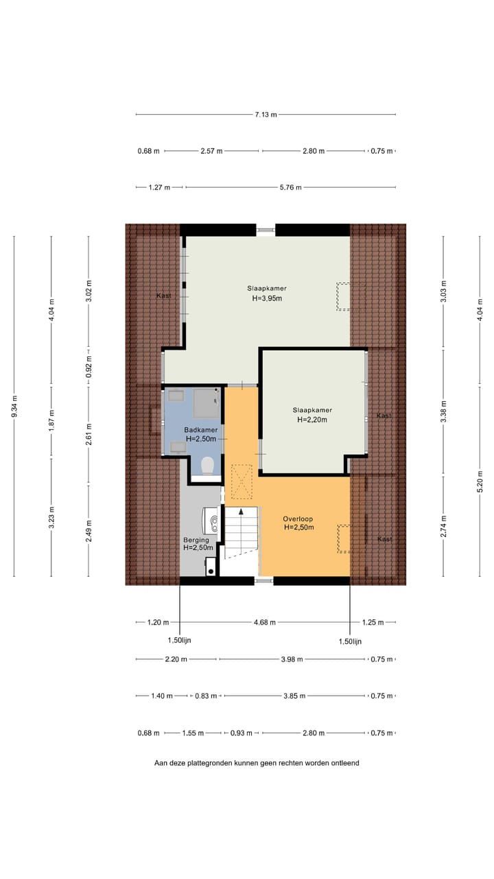
De overloop op deze verdieping vormt de verbinding tussen drie slaapkamers, de badkamer, een separaat toilet en een praktische trapkast. De hoofdslaapkamer bevindt zich aan de voorzijde van de woning en beschikt over een ruime inbouwkast en airconditioning. De tweede slaapkamer ligt centraal, eveneens met airconditioning, terwijl de derde kamer aan de achterzijde momenteel dienstdoet als kledingruimte. De badkamer ligt eveneens centraal op de verdieping en is ingericht met een inloopdouche, een ligbad, dubbele wastafels met spiegelkast, een radiator en mechanische ventilatie.
Tweede verdieping
Een vaste trap leidt naar de tweede verdieping, waar de overloop wordt verlicht door een groot dakraam. Onder de schuine kap is extra opbergruimte gecreëerd. Op deze etage liggen twee slaapkamers, een tweede badkamer en een bergkast. De grootste slaapkamer bevindt zich aan de achterzijde en beschikt over een dakraam, airconditioning en opbergruimte onder de schuine wand. Door de hoogte van de nok ontstaat hier een gevoel van ruimte en openheid. De tweede slaapkamer ligt centraal en wordt momenteel gebruikt als kledingruimte. De badkamer op deze verdieping is voorzien van een douchecabine, dubbele wastafels, een toilet en vloerverwarming. In de bergkast zijn de cv-ketel en de unit van de mechanische ventilatie ondergebracht. Vanaf de overloop is via een vlizotrap de bergzolder bereikbaar.
Buiten
De royale achtertuin ligt op het noordoosten en sluit met een groot terras aan op de woning. Verder bestaat de tuin uit een ruim gazon, volwassen beplanting, sfeervolle verlichting en een sproei-installatie. De zijtuin beschikt over een poort naar de voorzijde van het huis. Vanuit de achtertuin is er toegang tot de dubbele garage met een aansluitende houten berging. Achter in de tuin bevindt zich een tweede toegang via de poort naar de eigen opgang aan de Van de Goorstraat, waar ook de garage bereikbaar is.
Kenmerken
Overdracht
- Aangeboden sinds
- Aanvaarding
- In overleg
- Vraagprijs
- € 1.195.000 kosten koper
- Vraagprijs per m²
- € 5.359
- Status
- Beschikbaar
Bouw
- Soort woonhuis
- Eengezinswoning, vrijstaande woning
- Soort bouw
- Bestaande bouw
- Bouwjaar
- 2009
- Soort dak
- Zadeldak bedekt met pannen
- Keurmerken
- Bouwkundige Keuring
Oppervlakten en inhoud
- Gebruiksoppervlakten
- Wonen
- 223 m²
- Gebouwgebonden buitenruimte
- 1 m²
- Externe bergruimte
- 38 m²
- Perceel
- 565 m²
- Inhoud
- 742 m³
Indeling
- Aantal kamers
- 7 kamers (5 slaapkamers)
- Aantal badkamers
- 2 badkamers en 2 aparte toiletten
- Badkamervoorzieningen
- 2 dubbele wastafels, inloopdouche, ligbad, douche, toilet, en vloerverwarming
- Aantal woonlagen
- 3 woonlagen en een vliering
- Voorzieningen
- Airconditioning, alarminstallatie, buitenzonwering, dakraam, glasvezelkabel, mechanische ventilatie, en rookkanaal
Energie
- Energielabel
- C
- Isolatie
- Dakisolatie, dubbel glas, muurisolatie en vloerisolatie
- Verwarming
- Cv-ketel, gashaard en gedeeltelijke vloerverwarming
- Warm water
- Cv-ketel en elektrische boiler
- Cv-ketel
- Remeha (gas gestookt combiketel uit 2018, eigendom)
Kadastrale gegevens
- VUGHT I 425
- Kadastrale kaart
- Oppervlakte
- 565 m²
- Eigendomssituatie
- Volle eigendom
Buitenruimte
- Ligging
- In centrum
- Tuin
- Achtertuin, voortuin en zijtuin
- Achtertuin
- 245 m² (18,79 meter diep en 13,05 meter breed)
- Ligging tuin
- Gelegen op het noordoosten bereikbaar via achterom
Bergruimte
- Schuur/berging
- Vrijstaande houten berging
- Voorzieningen
- Elektra
- Isolatie
- Geen isolatie
Garage
- Soort garage
- Vrijstaande houten garage
- Capaciteit
- 1 auto
- Voorzieningen
- Elektra
- Isolatie
- Geen isolatie
Parkeergelegenheid
- Soort parkeergelegenheid
- Op eigen terrein en openbaar parkeren
Foto's 65
Plattegronden 6
© 2001-2025 funda






































































