
Omschrijving
In een rustige zijstraat van de Waterweg, op iets meer dan 50 meter van een basisschool, staat deze charmante en verrassend ruime jaren 30 hoekwoning met een uitbouw en een garage. Niet alleen de basisschool is vlakbij, dit geldt ook voor het Van Boetzelaerpark en het centrum met winkels, restaurants en supermarkten. Het bos is, net als de Hooge Kampse Plas, op loopafstand. Ook bent u op de fiets zo in Utrecht en verder heeft het huis een centrale ligging ten opzichte van het UMC, Prinses Maxima ziekenhuis, de Universiteit en Hogeschool, openbaar vervoer en uitvalswegen (A2, A12, A27 en A28).
Dit huis heeft alles wat u zoekt: een zonnige tuin, parkeergelegenheid op eigen terrein en vier (mogelijk vijf) slaapkamers. Een van de slaapkamers is nu in gebruik als kleedkamer en kamer nummer vijf is verbouwd tot sauna. Op de begane grond heeft u de beschikking over een woonkamer met dubbele erker, een serre, open keuken en een verrassende bijkeuken. Voor de liefhebber van karakter zijn er diverse originele elementen aanwezig, van glas in loodramen tot paneeldeuren en een granitovloer in de hal.
Woonoppervlakte: 134m² en perceeloppervlakte: 338m²
BEGANE GROND: De hal is, net als de rest van de woning, het toppunt van karakter. De wandtegels, paneeldeuren en de granitovloer vormen een fraai geheel. Aan het einde van de hal, op de plek van de keukendeur, zijn de garderobe en de toiletruimte. Ook is er, heel handig, een berging onder de trap.
In de woonkamer wordt u verrast door de ruimte, de lichtinval en het uitzicht naar de tuin. Het zitgedeelte is aan de voorzijde, met twee erkers, en het royale eetgedeelte grenst aan de open keuken. Fraaie elementen zijn de kleurrijke glas in loodramen, de openslaande tuindeuren en de eikenhouten vloer. Aan de achterzijde is de lichte serre met een gashaard en een brede schuifpui naar het terras.
Vanaf het eetgedeelte is het een paar stappen naar de keuken, waar een tegelvloer in een klassieke stijl ligt. De lichte keukenopstelling in U-vorm is voorzien van diverse inbouwapparatuur: een 6-pits gaskookplaat, afzuigkap, oven en een vaatwasser. In het verlengde van de keuken is de ruime bijkeuken, waar het tweede deel van de keukenopstelling staat. Hier zijn de combi-magnetron, koelkast en vriezer ingebouwd.
In de garage/berging, te bereiken vanuit de bijkeuken, is ruimte voor de fietsen en voor de hobbyist is er genoeg ruimte voor een werkbank met gereedschap.
1e VERDIEPING:
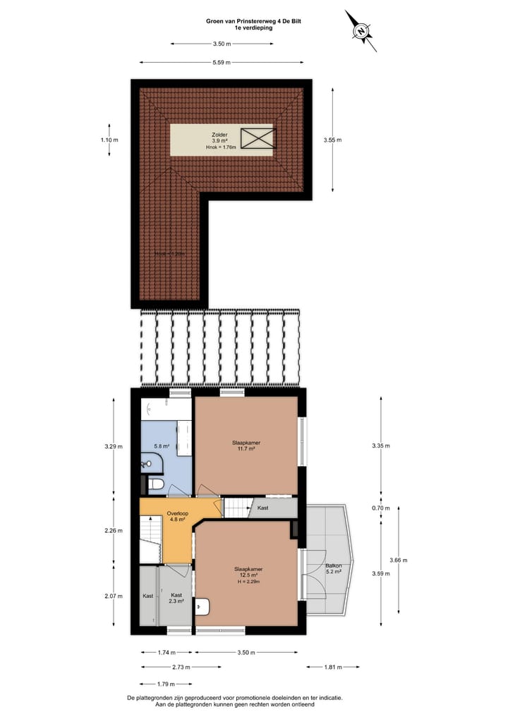
Op de eerste verdieping zijn de master bedroom met kleedruimte en openslaande deuren naar het balkon en een ruime slaapkamer met een kast onder de trap. De kleedruimte, met een eigen toegang vanaf de overloop, kan ook als extra slaapkamer of werkkamer worden gebruikt. Maatwerk kasten in de master bedroom en kleedruimte bieden ruimte aan uw kleding en linnengoed.
De badkamer is ingedeeld met een ligbad, inloopdouche, tweede toilet en een tweepersoons wastafelmeubel. Witte wandtegels zijn gecombineerd met grijze vloertegels en het raam in de achtergevel zorgt voor prettige lichtinval. Boven de garage is een bergzolder met een nokhoogte van circa 1.76 meter.
2e VERDIEPING:
Een vaste trap leidt naar de voorzolder, waar een bergvliering is gemaakt. Verder heeft u vanaf hier toegang tot een berging in de schuinte van het dak. Aan de achterzijde is een slaapkamer, met een groot dakraam en een berging in de schuinte van het dak. De laatste ruime is een slaapkamer, die is verbouwd tot een sauna met relaxruimte.
TUIN:
Dit stijlvolle huis wordt aan twee kanten omringd door een ruime tuin, met een uitstekende zonligging en veel privacy. Blikvanger in de tuin is het grote, overdekte terras met genoeg plek voor een loungeset en een tafel met stoelen. Het is mogelijk om op eigen terrein te parkeren, voor de garage.
Bijzonderheden:
- Parkeergelegenheid op eigen terrein (oprit en garage)
- Royale leefruimte (woonkamer met een dubbele erker en een serre)
- Open keuken en een grote bijkeuken
- Mogelijkheid tot vijf slaapkamers (thans drie slaapkamers, een kleedruimte en een sauna)
- Royale, zonnige tuin met veel privacy
- Fraaie jaren 30 architectuur met diverse originele elementen
- Energielabel E
Kenmerken
Overdracht
- Laatste vraagprijs
- € 785.000 kosten koper
- Vraagprijs per m²
- € 5.858
- Status
- Verkocht
Bouw
- Soort woonhuis
- Eengezinswoning, hoekwoning
- Soort bouw
- Bestaande bouw
- Bouwjaar
- 1930
- Soort dak
- Mansarde dak bedekt met pannen
Oppervlakten en inhoud
- Gebruiksoppervlakten
- Wonen
- 134 m²
- Overige inpandige ruimte
- 24 m²
- Gebouwgebonden buitenruimte
- 5 m²
- Perceel
- 338 m²
- Inhoud
- 566 m³
Indeling
- Aantal kamers
- 7 kamers (4 slaapkamers)
- Aantal badkamers
- 1 badkamer en 1 apart toilet
- Badkamervoorzieningen
- Sauna, douche, dubbele wastafel, ligbad, toilet, en wastafelmeubel
- Aantal woonlagen
- 3 woonlagen
- Voorzieningen
- Dakraam, glasvezelkabel, natuurlijke ventilatie, rookkanaal, sauna, en TV kabel
Energie
- Energielabel
- E
- Isolatie
- Dakisolatie en dubbel glas
- Verwarming
- Cv-ketel
- Warm water
- Cv-ketel
- Cv-ketel
- Remeha Avanta (gas gestookt combiketel uit 2014, eigendom)
Kadastrale gegevens
- DE BILT D 4193
- Kadastrale kaart
- Oppervlakte
- 338 m²
- Eigendomssituatie
- Volle eigendom
Buitenruimte
- Ligging
- Aan rustige weg en in woonwijk
- Tuin
- Achtertuin, voortuin en zijtuin
- Zijtuin
- 77 m² (17,00 meter diep en 4,50 meter breed)
- Ligging tuin
- Gelegen op het zuidoosten
- Balkon/dakterras
- Balkon aanwezig
Garage
- Soort garage
- Aangebouwde stenen garage
- Capaciteit
- 1 auto
Parkeergelegenheid
- Soort parkeergelegenheid
- Op eigen terrein en openbaar parkeren
Foto's 56
© 2001-2025 funda























































