Dit huis op Funda: https://www.funda.nl/detail/koop/de-klomp/huis-jufferswijk-4/43268018/

Jufferswijk 46745 XG De KlompDe Klomp dorp
€ 685.000 k.k.
BlikvangerVrijstaande woning met garage en slaap- & badkamer op de begane grond
Omschrijving
Op een rustige locatie in de kleine kern De Klomp staat deze vrijstaande woning met garage te koop. De woning, gebouwd in 1997, voorzien van 14 zonnepanelen en met een woonoppervlak van 116 m², is comfortabel ingedeeld met onder meer een slaap- en badkamer op de begane grond. Daarnaast beschikt het huis over een moderne keuken en badkamer, vier slaapkamers en een royaal perceel van 430 m² met garage en tuinhuis. De ligging is eveneens gunstig: in een rustige omgeving en op loopafstand van intercitystation Veenendaal–De Klomp. Met de auto zijn de A12 en A30 snel te bereiken, en zowel het centrum van Veenendaal als de dorpskern van Ederveen liggen op korte fietsafstand. Ben je nieuwsgierig geworden naar deze woning? Neem dan contact met ons op voor een bezichtigingsafspraak. Je bent van harte welkom!
Indeling
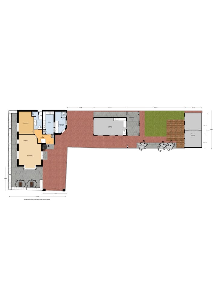
Via de entree kom je in de hal, die toegang geeft tot de meterkast, keuken, badkamer, slaapkamer en woonkamer. De gezellige woonkamer beschikt over een leuke erker met inbouwspots, airconditioning en openslaande deuren naar de tuin. Er is voldoende ruimte voor een comfortabele zit- en eethoek. De moderne keuken in hoekopstelling is uitgerust met diverse inbouwapparaten, waaronder een inductiekookplaat, afzuigkap, twee combi-ovens, een koelkast, vriezer en vaatwasser. Daarnaast vind je hier een praktische vaste kast met extra bergruimte en toegang tot de bijkeuken. In de bijkeuken zitten de aansluitingen voor de wasmachine en droger en bevindt zich tevens de toiletruimte met wandcloset en fonteintje.
De naast de keuken gelegen slaapkamer en badkamer zorgen voor extra gemak op de begane grond. De moderne, volledig betegelde badkamer is ingericht met een inloopdouche, ligbad, dubbel wastafelmeubel, designradiatoren en een toilet. De ruime slaapkamer is voorzien van inbouwspots. De hele begane grond is afgewerkt met comfortabele vloerverwarming, een plavuizenvloer en strak gestucte wanden en plafonds.
Eerste verdieping
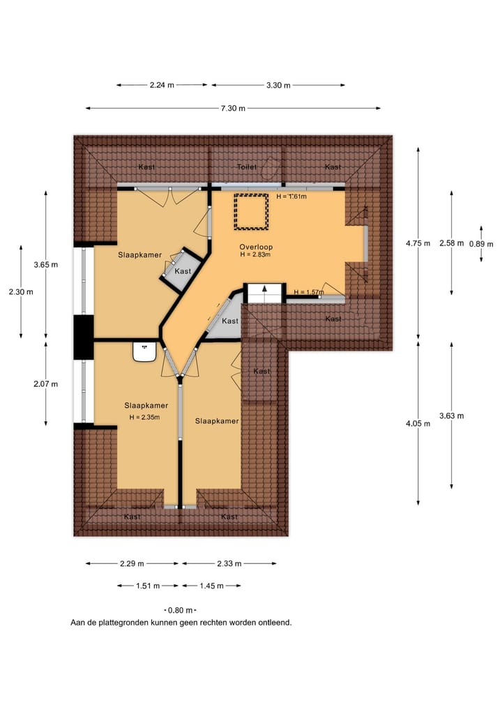
Via de vaste trap kom je op de ruime overloop van de eerste verdieping, waar airconditioning aanwezig is. Vanaf hier heb je toegang tot drie slaapkamers. Dankzij de schuine wanden zijn er op de overloop veel vaste kasten gemaakt, wat zorgt voor extra bergruimte en een strakke afwerking. Van de drie slaapkamers liggen er twee aan de voorzijde van de woning (voorheen één grote kamer). Eén van deze kamers heeft een vaste kast; de andere beschikt over een dakkapel en een eigen wastafel. De slaapkamer aan de achterzijde is eveneens voorzien van een dakkapel en een vaste kast.
Bijzonderheden
De fijne en diepe tuin ligt aan de zijkant van de woning en is voorzien van een praktische garage met keukenblok, vliering en stroomaansluiting, een overkapping, gazon, sierbestrating en een gezellig tuinhuis. Hier kun je zowel overdag als ’s avonds heerlijk overdekt zitten. Door de fijne indeling van de tuin is er volop ruimte om buiten te zitten of te spelen. Parkeren is ook geen probleem: dat kan eenvoudig op je eigen oprit.
Kenmerken
Overdracht
- Aangeboden sinds
- Aanvaarding
- In overleg
- Vraagprijs
- € 685.000 kosten koper
- Vraagprijs per m²
- € 5.855
- Status
- Beschikbaar
Bouw
- Soort woonhuis
- Bungalow, vrijstaande woning
- Soort bouw
- Bestaande bouw
- Bouwjaar
- 1997
- Soort dak
- Samengesteld dak bedekt met pannen
- Keurmerken
- Energie Prestatie Advies
- Toegankelijkheid
- Toegankelijk voor mensen met een beperking en toegankelijk voor ouderen
Oppervlakten en inhoud
- Gebruiksoppervlakten
- Wonen
- 117 m²
- Externe bergruimte
- 49 m²
- Perceel
- 430 m²
- Inhoud
- 394 m³
Indeling
- Aantal kamers
- 5 kamers (4 slaapkamers)
- Aantal badkamers
- 1 badkamer en 1 apart toilet
- Badkamervoorzieningen
- Inloopdouche, ligbad, toilet, en wastafel
- Aantal woonlagen
- 2 woonlagen
- Voorzieningen
- Airconditioning, glasvezelkabel, natuurlijke ventilatie, rookkanaal, en zonnepanelen
Energie
- Energielabel
- A
- Isolatie
- Volledig geïsoleerd
- Verwarming
- Cv-ketel, gaskachels en gedeeltelijke vloerverwarming
- Warm water
- Cv-ketel
- Cv-ketel
- Nefit (gas gestookt combiketel uit 2014, eigendom)
Kadastrale gegevens
- EDE L 1222
- Kadastrale kaart
- Oppervlakte
- 430 m²
- Eigendomssituatie
- Volle eigendom
Buitenruimte
- Ligging
- Aan rustige weg
- Tuin
- Achtertuin en voortuin
- Achtertuin
- 221 m² (27,76 meter diep en 7,96 meter breed)
- Ligging tuin
- Gelegen op het oosten
Garage
- Soort garage
- Vrijstaande stenen garage
- Capaciteit
- 1 auto
- Voorzieningen
- Vliering, elektra en stromend water
Parkeergelegenheid
- Soort parkeergelegenheid
- Op eigen terrein
Foto's 59
Plattegronden 5
© 2001-2025 funda































































