Dit huis op Funda: https://www.funda.nl/detail/koop/de-rips/huis-leeuwerikstraat-18/43003208/

Omschrijving
Ruime tweekapper met garage, vier slaapkamers en fijne tuin met overkapping in de rustige Leeuwerikstraat in De Rips.
Op zoek naar een woning met ruimte, potentie én een fijne ligging? Dan is deze tweekapper aan de Leeuwerikstraat in De Rips zeker het bekijken waard! Deze verrassend ruime woning beschikt over een lichte woonkamer, open keuken, vier slaapkamers, een garage én een tuin met overkapping. De woning is op sommige punten toe aan wat liefde, maar biedt daarmee juist volop kansen om er jouw eigen droomhuis van te maken!
Begane grond
Je komt binnen in een praktische entree met meterkast, trapopgang en toilet. Vanuit hier loop je door naar de woonkamer: een lichte ruimte aan de voorzijde van de woning met een prettig uitzicht op de straat.
De woonkamer staat in open verbinding met de eethoek en keuken, waardoor het een fijne, open leefruimte is geworden. De keuken is eenvoudig maar functioneel en biedt voldoende kastruimte.
Achter de keuken ligt het portaal met toegang tot de tuin en de garage. In het portaal is extra voorraadruimte aanwezig.
De inpandige garage is een royale ruimte van ca. 15 m² die zowel geschikt is voor het stallen van een auto als voor gebruik als hobbyruimte, werkplaats of opslag.
Achter de garage bevindt zich nog een praktische extra ruimte met wateraansluitingen en afvoer. Deze ruimte is multifunctioneel te gebruiken. Ddenk aan een tweede badkamer, wasruimte of gewoon als extra bergruimte. Dankzij deze indeling zijn er volop mogelijkheden om de woning aan te passen aan jouw woonwensen.
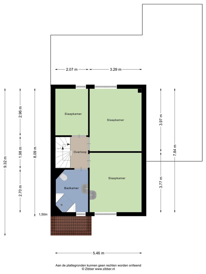
Eerste verdieping
Op de eerste verdieping vind je drie nette slaapkamers. Alle kamers zijn van een goed formaat en nette afwerking. De badkamer is netjes betegeld en voorzien van een douchecabine, wastafel, toilet en een raam voor natuurlijk licht en ventilatie.
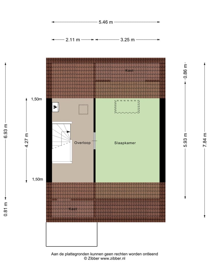
Tweede verdieping
Via een vaste trap bereik je de zolderverdieping. Op de voorzolder is ruimte voor opslag of bijvoorbeeld een werkhoekje. Daarnaast is hier een vierde slaapkamer aanwezig met een groot dakraam dat zorgt voor veel licht. Ook zijn er handige knieschotten voor extra bergruimte.
Tuin
De achtertuin biedt veel privacy en is voorzien van een leuke houten overkapping waar je lekker beschut kunt zitten. De tuin is op dit moment nog wat verwilderd, maar met een beetje aandacht tover je dit om tot een gezellige plek om van de zon te genieten.
Bijzonderheden:
- Tweekapper met eigen oprit en garage
- Vier slaapkamers
- Gelegen in een rustige, groene woonwijk
- Enkele afbeeldingen zijn impressies en geven een idee over de mogelijkheden van de woning.
- Overdracht zal plaatsvinden bij notaris Clercx Leenders Netwerk Notarissen
- Verkopers verlangen een waarborgsom/bankgarantie ter grootte van 10% van de koopsom.
Een huis met ruimte, potentie en een fijne basis – klaar voor de volgende stap! Interesse? Neem gerust contact met ons op, dan plannen we graag een bezichtiging voor je in.
Ons kantoor besteedt de uiterste zorg aan de betrouwbaarheid en actualiteit van de gegevens in de door ons samengestelde verkoopbrochure. Onjuistheden en onvolledigheden kunnen echter voorkomen. Aan de door ons gepresenteerde gegevens waaronder de teksten en plattegronden kunnen geen rechten worden ontleend. Twijfelt u aan de juistheid van de gegevens, vraag dan hoe deze zijn verkregen of kom nog een keer kijken. Probeer te allen tijde alle voor u relevante informatie vooraf te verkrijgen.
Kenmerken
Overdracht
- Laatste vraagprijs
- € 299.000 kosten koper
- Vraagprijs per m²
- € 2.354
- Status
- Verkocht
Bouw
- Soort woonhuis
- Eengezinswoning, 2-onder-1-kapwoning
- Soort bouw
- Bestaande bouw
- Bouwjaar
- 1980
- Soort dak
- Zadeldak bedekt met pannen
Oppervlakten en inhoud
- Gebruiksoppervlakten
- Wonen
- 127 m²
- Overige inpandige ruimte
- 31 m²
- Perceel
- 227 m²
- Inhoud
- 560 m³
Indeling
- Aantal kamers
- 5 kamers (4 slaapkamers)
- Aantal badkamers
- 1 badkamer en 1 apart toilet
- Badkamervoorzieningen
- Douche, toilet, en wastafel
- Aantal woonlagen
- 3 woonlagen
- Voorzieningen
- Dakraam, natuurlijke ventilatie, en schuifpui
Energie
- Energielabel
- C
- Isolatie
- Gedeeltelijk dubbel glas
- Verwarming
- Cv-ketel
- Warm water
- Cv-ketel
- Cv-ketel
- Nefit (gas gestookt combiketel uit 2022, eigendom)
Kadastrale gegevens
- BAKEL EN MILHEEZE A 3849
- Kadastrale kaart
- Oppervlakte
- 227 m²
- Eigendomssituatie
- Volle eigendom
Buitenruimte
- Tuin
- Achtertuin en voortuin
- Achtertuin
- 69 m² (7,30 meter diep en 9,40 meter breed)
- Ligging tuin
- Gelegen op het westen
Garage
- Soort garage
- Aangebouwde stenen garage
- Capaciteit
- 1 auto
- Voorzieningen
- Elektra
Parkeergelegenheid
- Soort parkeergelegenheid
- Op eigen terrein
Foto's 47
© 2001-2025 funda














































