Dit huis op Funda: https://www.funda.nl/detail/koop/de-westereen/huis-tolwei-29/43285359/

Tolwei 299271 HK De WestereenDe Westereen
€ 459.000 k.k.
Omschrijving
Op goede locatie staat deze nog te moderniseren en te verduurzamen vrijstaande woning met een royaal perceel van 2.068 m² eigen grond, inclusief zonnige tuin, een perceeltje weiland en een recent gebouwde geïsoleerde loods. Een ideale plek voor wie ruimte zoekt voor hobby’s, opslag, werk aan huis of het houden van dieren.
De woning is altijd netjes onderhouden, maar intern gedateerd; modernisering en verduurzaming zijn daarom wenselijk. De woning wordt verwarmd via een HR-combiketel en beschikt grotendeels over isolatieglas. Dankzij de zuidelijke ligging is het huis heerlijk licht en zonnig.
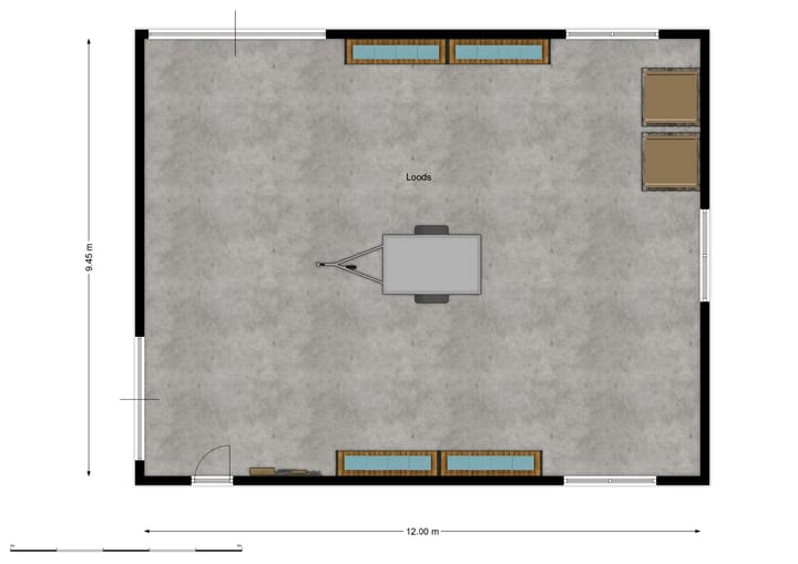
In 2000 is er geïsoleerde loods/schuur van ca. 115 m² gerealiseerd, voorzien van twee overheaddeuren en een loopdeur. Dé droom voor iedere klusser of hobbyist, en bovendien een uitstekende kans om wonen en werken te combineren. Het grootste deel van het perceel heeft een woonbestemming, waarbij aan huis gebonden beroepen en bedrijven (onder voorwaarden) zijn toegestaan.
De ruime, privacy-rijke achtertuin biedt volop mogelijkheden, maar vraagt – net als de woning zelf – nog om de nodige aandacht. Aan de achterzijde bevindt zich een perceeltje weiland, ideaal voor het houden van dieren. Parkeren kan ruimschoots op eigen terrein.
Deze locatie is perfect voor wie graag in een dorp woont, maar wél zijn of haar dieren, bedrijf of hobby’s aan huis wil houden.
In de directe nabijheid vind je diverse dorpsvoorzieningen, zoals basisscholen, sportfaciliteiten, winkels en openbaar vervoer. Op fietsafstand liggen onder andere het treinstation en het uitgebreide winkelcentrum van De Westereen.
Begane grond: zij-entree, ruime hal met laminaatvloer, toilet met fonteintje, zonnige woonkamer, 2 slaapkamers waarvan 1 met wastafel, gesloten keuken met eenvoudige opstelling, bijkeuken met c.v.- en bergkast en achter-entree, nette lichte badkamer met douche en wastafel.
1e verdieping: overloop met veel bergruimte, zolder/slaapkamer aan de achterzijde en slaapkamer met bergruimtes aan de voorzijde tevens bevindt zich aan de zijkant nog een mooie ruimte. Door mogelijk een lange dakkapel te plaatsen ontstaat er ruimte voor bijvoorbeeld een badkamer, studieruimte of een extra kinderkamer.
Kenmerken
Overdracht
- Aangeboden sinds
- Aanvaarding
- In overleg
- Vraagprijs
- € 459.000 kosten koper
- Vraagprijs per m²
- € 3.375
- Status
- Beschikbaar
Bouw
- Soort woonhuis
- Eengezinswoning, vrijstaande woning
- Soort bouw
- Bestaande bouw
- Bouwjaar
- 1969
- Soort dak
- Zadeldak bedekt met pannen
- Toegankelijkheid
- Toegankelijk voor ouderen
Oppervlakten en inhoud
- Gebruiksoppervlakten
- Wonen
- 136 m²
- Externe bergruimte
- 115 m²
- Perceel
- 2.068 m²
- Inhoud
- 432 m³
Indeling
- Aantal kamers
- 6 kamers (4 slaapkamers)
- Aantal badkamers
- 1 badkamer en 1 apart toilet
- Badkamervoorzieningen
- Douche en wastafel
- Aantal woonlagen
- 2 woonlagen
- Voorzieningen
- Glasvezelkabel en natuurlijke ventilatie
Energie
- Energielabel
- E
- Isolatie
- Dubbel glas
- Verwarming
- Cv-ketel
- Warm water
- Cv-ketel en geiser
- Cv-ketel
- HR combiketel (gas gestookt combiketel uit 2014, eigendom)
Kadastrale gegevens
- VEENWOUDEN G 5826
- Kadastrale kaart
- Oppervlakte
- 2.068 m²
- Eigendomssituatie
- Volle eigendom
Buitenruimte
- Ligging
- Aan drukke weg
- Tuin
- Tuin rondom
Bergruimte
- Schuur/berging
- Vrijstaande stenen berging
- Isolatie
- Dakisolatie en muurisolatie
Garage
- Soort garage
- Vrijstaande stenen garage
- Capaciteit
- 7 auto's
- Isolatie
- Dakisolatie en muurisolatie
Parkeergelegenheid
- Soort parkeergelegenheid
- Op eigen terrein
Foto's 45
© 2001-2025 funda












































