Dit huis op Funda: https://www.funda.nl/detail/koop/delfgauw/huis-zuideindseweg-13/43114012/

Omschrijving
Op een goede en aantrekkelijke locatie ligt deze karakteristieke hoekeengezinswoning met een ruim perceel en vrijstaande garage. De woning is aan de buitenzijde goed onderhouden en de binnenzijde van de woning biedt veel potentieel voor wie op zoek is naar een woning welke geheel naar eigen smaak te moderniseren is. Geniet van een ruime achtertuin, zijtuin en voortuin, gelegen aan een rustige en gezellige straat in het oudere, charmante deel van Delfgauw. Alle dagelijkse voorzieningen, zoals winkels en basisscholen, bevinden zich op loopafstand. Het centrum van Delft, de TU Delft en recreatiegebied Delftse Hout zijn eenvoudig per fiets bereikbaar. de snelwegen zijn eveneens binnen enkele minuten bereikbaar.
Indeling:
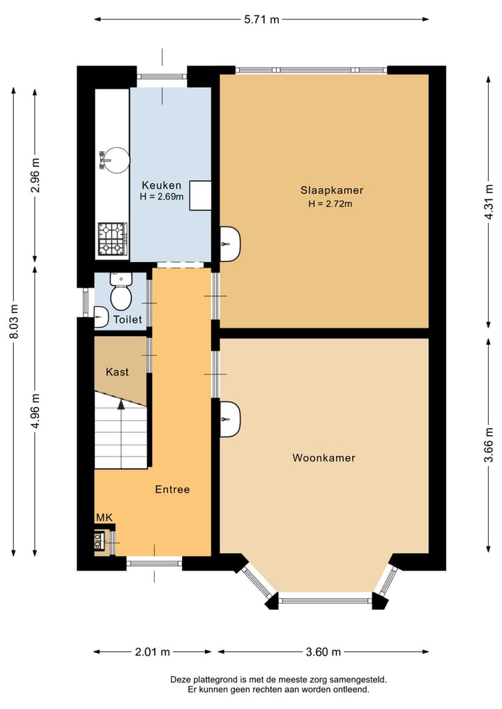
Begane grond:
Entree woning met hal met meterkast; trapkast en toilet met fonteintje; 1e kamer aan de voorzijde; 2e kamer aan de achterzijde (kamer 1 en kamer 2 waren voorheen een doorzon woonkamer). Gesloten keuken voorzien van een eenvoudig keukenblok en doorgang naar de riante achtertuin met garage bereikbaar via de zijkant van de achtertuin. De stenen garage is voorzien van een zadelkap waardoor er extra veel bergruimte te creëren is.
1e verdieping:
Overloop; slaapkamer aan de achterzijde van de woning; ruime slaapkamer aan de voorzijde (voorheen 2 kamers); badkamer met douche, toilet en wastafel. Vanuit de overloop en slaapkamer is er toegang tot de bergvliering middels vlizotrappen.
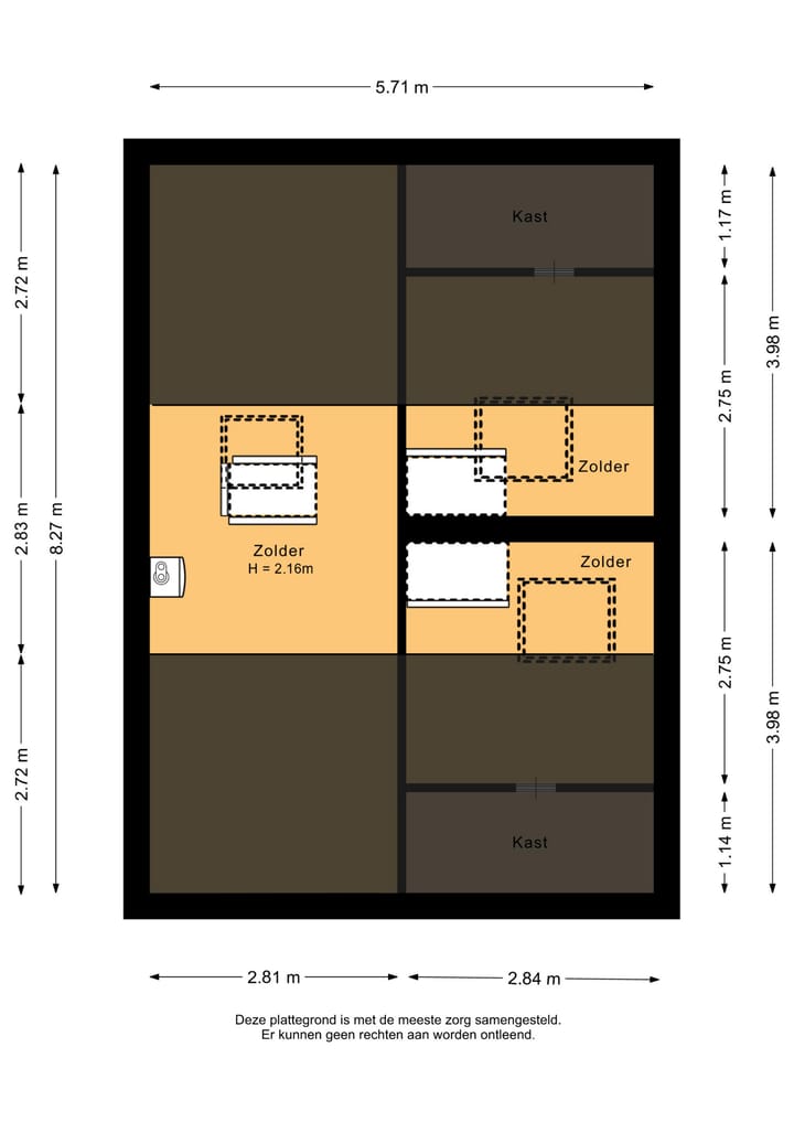
Zolderverdieping:
De zolder is opgedeeld in 3 aparte ruimtes met elke een eigen toegang met vlizotrap. De zolder is voorzien van dakvensters.
Bijzonderheden:
- Eigen grond;
- Hoekwoning met ruimer perceel;
- Ruime garage met puntdak;
- Aanvullende isolatie zoals, vloer- en gevelisolatie heeft plaatsgevonden;
- Zeer gunstige ligging bij de vele voorzieningen;
- Gelegen nabij recreatiepark Delftse Hout
- Kindvriendelijke omgeving
- Scholen en winkelvoorzieningen op korte (loop of fiets) afstand
- Voorzien van dubbele beglazing;
- Woning dient intern verbouwd te worden;
- Verwarming middels CV combiketel;
- extern goed onderhouden, intern dient de woning verbouwd te worden voor enkele bewoning;
- Ruseler & Van Herk Makelaars verkoopvoorwaarden zijn van toepassing;
- Oplevering in overleg.
Alle verstrekte informatie moet beschouwd worden als een uitnodiging tot het doen van een bod of om in onderhandeling te treden. Wij behartigen de belangen van de verkopende partij. Neem uw eigen NVM-aankoopmakelaar mee.
"Deze informatie is door ons met de nodige zorgvuldigheid samengesteld. Onzerzijds wordt echter geen enkele aansprakelijkheid aanvaard voor enige onvolledigheid, onjuistheid of anderszins, dan wel de gevolgen daarvan. Alle opgegeven maten en oppervlakten zijn indicatief. Van toepassing zijn de NVM voorwaarden".
Gebruiksoppervlakte woningen
De Meetinstructie is gebaseerd op de NEN2580. De Meetinstructie is bedoeld om een meer eenduidige manier van meten toe te passen voor het geven van een indicatie van de gebruiksoppervlakte. De Meetinstructie sluit verschillen in meetuitkomsten niet volledig uit, door bijvoorbeeld interpretatieverschillen, afrondingen of beperkingen bij het uitvoeren van de meting.
Kenmerken
Overdracht
- Aangeboden sinds
- Aanvaarding
- In overleg
- Vraagprijs
- € 525.000 kosten koper
- Vraagprijs per m²
- € 5.585
- Status
- Verkocht onder voorbehoud
Bouw
- Soort woonhuis
- Eengezinswoning, hoekwoning
- Soort bouw
- Bestaande bouw
- Bouwjaar
- 1930
- Soort dak
- Zadeldak bedekt met pannen
Oppervlakten en inhoud
- Gebruiksoppervlakten
- Wonen
- 94 m²
- Overige inpandige ruimte
- 16 m²
- Externe bergruimte
- 20 m²
- Perceel
- 233 m²
- Inhoud
- 407 m³
Indeling
- Aantal kamers
- 4 kamers (3 slaapkamers)
- Aantal badkamers
- 1 badkamer en 1 apart toilet
- Badkamervoorzieningen
- Douche, toilet, en wastafel
- Aantal woonlagen
- 2 woonlagen en een vliering
Energie
- Energielabel
- D
- Isolatie
- Dubbel glas, muurisolatie en vloerisolatie
- Verwarming
- Cv-ketel
- Warm water
- Cv-ketel
- Cv-ketel
- Gas gestookt combiketel uit 2004, eigendom
Kadastrale gegevens
- PIJNACKER G 1537
- Kadastrale kaart
- Oppervlakte
- 233 m²
- Eigendomssituatie
- Volle eigendom
Buitenruimte
- Ligging
- Aan rustige weg, in woonwijk en vrij uitzicht
- Tuin
- Achtertuin, voortuin en zijtuin
- Achtertuin
- 119 m² (12,50 meter diep en 9,50 meter breed)
- Ligging tuin
- Gelegen op het noordoosten bereikbaar via achterom
Bergruimte
- Schuur/berging
- Vrijstaande stenen berging
- Voorzieningen
- Elektra
Garage
- Soort garage
- Parkeerplaats en vrijstaande stenen garage
- Capaciteit
- 1 auto
- Voorzieningen
- Vliering en elektra
Parkeergelegenheid
- Soort parkeergelegenheid
- Op eigen terrein en openbaar parkeren
Foto's 45
Plattegronden 5
© 2001-2025 funda

















































