Dit huis op Funda: https://www.funda.nl/detail/koop/delft/huis-laan-van-overvest-1-c/43078050/

Omschrijving
Praktische 5-kamerwoning gelegen in een van de leukste straten van Delft
Welkom bij deze charmante en efficiënt ingedeelde 5-kamerwoning, gelegen aan de geliefde en karaktervolle Laan van Overvest – een van de leukste straten van Delft.
Deze woning biedt comfort én een verrassend ruime indeling, met alle voorzieningen van de binnenstad op zeer korte loopafstand.
Gebouwd in 1961 is deze woning niet alleen sfeervol, maar ook comfortabel en relatief energiezuinig. De gebruikersoppervlakte bedraagt ca. 71 m² en het geheel ligt op een ruim perceel van 149 m² eigen grond. De woning beschikt daarnaast over een royale achtertuin met achterom en een praktische houten berging van circa 12 m².
Indeling woning
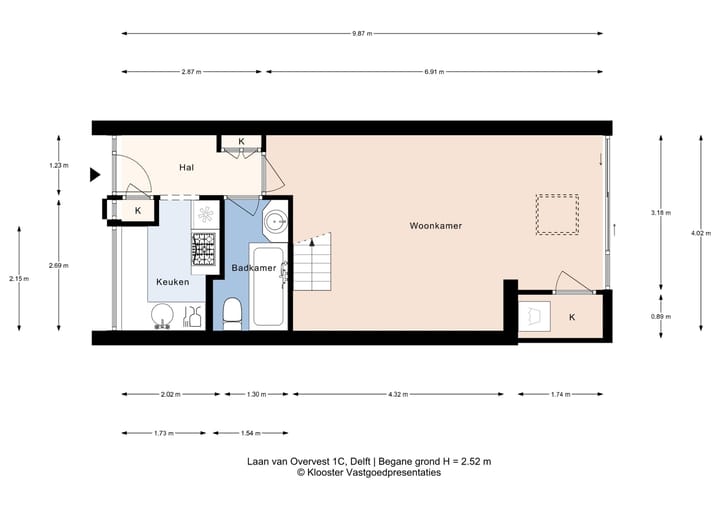
Begane grond:
Hal/ entree met meterkast. Keuken met inbouwapparatuur en cv-installatie. Baskamer met ligbad, toilet en wastafel. Woonkamer met aparte wasruimte en deur naar royale tuin met berging gericht op het zuidoosten.
1e etage
Overloop en 4 slaapkamers. Toegang naar bergzolder.
Kenmerken woning:
• Bouwjaar 1961
• 5 kamers, waaronder 4 slaapkamers en een extra werk-/hobbykamer
• Gebruiksoppervlakte wonen: ca. 71 m²
• Perceeloppervlakte: 149 m² eigen grond
• Grotendeels dubbel glas
• Remeha Cv-ketel uit 2009
• Energielabel E
• Royale achtertuin met veel privacy en zon
• Houten berging van ca. 12 m² in de tuin
• Mogelijkheid tot parkeren op eigen grond
Toplocatie in Delft
De woning ligt aan een rustige groene, kortbij het water van de Spoorsingel, in een van de leukste buurten van Delft. Binnen enkele minuten sta je in de historische binnenstad, met winkels, horeca, cultuur en het station. Ook scholen, sportvoorzieningen en uitvalswegen (A4/A13) zijn uitstekend bereikbaar.
Nieuwsgierig geworden?
Neem contact op voor een bezichtiging en ontdek zelf het comfort, de ruimte en de fijne ligging van deze woning.
Kenmerken
Overdracht
- Laatste vraagprijs
- € 425.000 kosten koper
- Vraagprijs per m²
- € 5.903
- Status
- Verkocht
Bouw
- Soort woonhuis
- Eengezinswoning, hoekwoning
- Soort bouw
- Bestaande bouw
- Bouwjaar
- 1961
- Soort dak
- Zadeldak bedekt met asbest
Oppervlakten en inhoud
- Gebruiksoppervlakten
- Wonen
- 72 m²
- Externe bergruimte
- 12 m²
- Perceel
- 149 m²
- Inhoud
- 255 m³
Indeling
- Aantal kamers
- 5 kamers (4 slaapkamers)
- Aantal badkamers
- 1 badkamer
- Badkamervoorzieningen
- Ligbad, toilet, en wastafel
- Aantal woonlagen
- 3 woonlagen
- Voorzieningen
- Natuurlijke ventilatie
Energie
- Energielabel
- E
- Isolatie
- Dakisolatie, grotendeels dubbelglas en muurisolatie
- Verwarming
- Cv-ketel
- Warm water
- Cv-ketel
- Cv-ketel
- Remeha (gas gestookt combiketel uit 2009, eigendom)
Kadastrale gegevens
- DELFT F 7545
- Kadastrale kaart
- Oppervlakte
- 149 m²
- Eigendomssituatie
- Volle eigendom
Buitenruimte
- Ligging
- Aan rustige weg, beschutte ligging en in centrum
- Tuin
- Achtertuin en voortuin
- Achtertuin
- 38 m² (9,00 meter diep en 4,00 meter breed)
- Ligging tuin
- Gelegen op het zuidoosten bereikbaar via achterom
Bergruimte
- Schuur/berging
- Vrijstaande houten berging
- Voorzieningen
- Elektra
Parkeergelegenheid
- Soort parkeergelegenheid
- Betaald parkeren, op eigen terrein en parkeervergunningen
Foto's 43
© 2001-2025 funda










































