Dit huis op Funda: https://www.funda.nl/detail/koop/delft/huis-vermeerstraat-29/43129064/

Omschrijving
Delft - Vrijenban
Vraagprijs € 475.000,-- k.k.
Heeft u interesse in deze woning? Laat het ons weten via de knop "Neem contact op".
Tuinliefhebbers opgelet! Te koop in een van de leukste straatjes van Delft: een
tussenwoning met SUPER achtertuin met berging. De woning is gelegen in een fraaie en rustige straat in een woonwijk net buiten het centrum. De bereikbaarheid ten opzichte van de snelweg en het openbaar vervoer is goed. Het station ligt op fietsafstand. Alle centrumvoorzieningen (winkels, scholen, speeltuinen, huisarts) zijn op korte afstand gelegen.
Indeling:
Begane grond: woningentree, hal met meterkast, toilet met fonteintje, ruime woonkamer met openslaande deuren naar de achtertuin, keuken in de uitbouw, deur naar de achtertuin. Diepe tuin met achterom en vrijstaande houten berging.
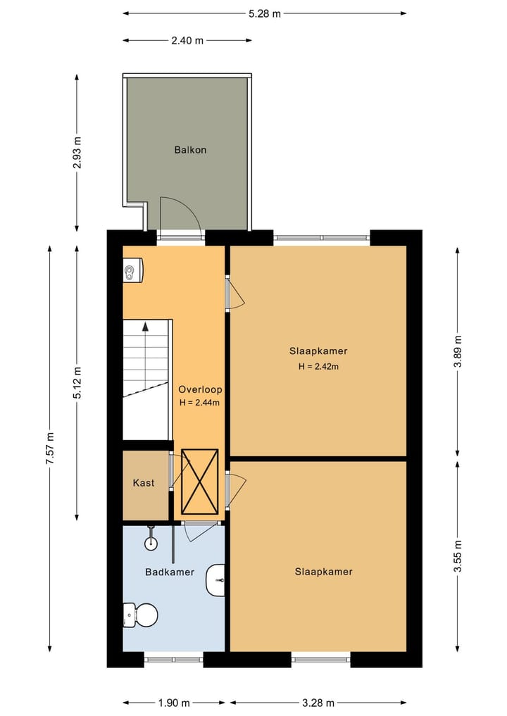
Eerste verdieping: overloop, deur naar het balkon, 2 slaapkamers, badkamer met douche, toilet en wastafel, wasmachine ruimte/berging.
Luik naar bergvliering met vlizotrap.
Afmetingen:
- Woonkamer: totaal ca. 30.00 m²
- Keuken: totaal ca. 6.00 m²
- Badkamer: totaal ca. 4.00 m²
- Slaapkamer 1: totaal ca. 12.00 m²
- Slaapkamer 2: totaal ca. 13.00 m²
- Balkon: totaal ca. 7.00 m²
- Berging: totaal ca. 6.00 m²
- Tuin: totaal ca. 90.00 m²
Bijzonderheden:
- Projectnotaris van toepassing;
- Eeuwigdurende zelfbewoningsplicht;
- Anti speculatiebeding van toepassing voor 2 jaar;
- Deze woning komt uit de verhuur
Bij aankoop van deze woning zal de oplevering binnen 6 weken plaatsvinden. Indien u over wilt gaan tot een optie of aankoop van de woning dient u aan te tonen dat de koopsom van de woning voor u financieel haalbaar is. Dit kan aangetoond worden door bijvoorbeeld afgifte van een uitgebracht advies door een daartoe deskundige en erkende financiële instelling of adviseur.
Plattegronden en afmetingen zijn indicatief.
Dit is een woning die u koopt op de vrije markt. Verbouwen of tussentijds een extra financiering voor een verbouwing afsluiten, dat regelt u zelf zonder aanvullende voorwaarden.
Wanneer u weer wilt verhuizen en de woning verkoopt, kunt u zelf een verkoopmakelaar uitzoeken die de woning voor u verkoopt op de vrije markt waarbij u zelf de verkoopprijs bepaalt.
U mag de woning niet verhuren of op andere wijze in gebruik geven aan anderen, dit geldt ook voor opvolgende eigenaren als u de woning weer gaat verkopen! Bewoning of huur door een eerstegraads bloed- of aanverwant wordt als eigen bewoning beschouwd. Het is niet toegestaan om de woning binnen twee jaar na het tekenen van de akte van levering te verkopen. Dit wordt opgenomen in de koopovereenkomst en akte van levering.
Kenmerken
Overdracht
- Laatste vraagprijs
- € 475.000 kosten koper
- Vraagprijs per m²
- € 5.655
- Status
- Verkocht
- Koopmengvorm
- Is onderdeel uitpondproject
Bouw
- Soort woonhuis
- Eengezinswoning, tussenwoning
- Soort bouw
- Bestaande bouw
- Bouwjaar
- 1921
- Soort dak
- Zadeldak bedekt met pannen
Oppervlakten en inhoud
- Gebruiksoppervlakten
- Wonen
- 84 m²
- Gebouwgebonden buitenruimte
- 7 m²
- Externe bergruimte
- 6 m²
- Perceel
- 148 m²
- Inhoud
- 252 m³
Indeling
- Aantal kamers
- 3 kamers (2 slaapkamers)
- Aantal badkamers
- 1 badkamer en 2 aparte toiletten
- Badkamervoorzieningen
- Douche
- Aantal woonlagen
- 2 woonlagen en een vliering
Energie
- Energielabel
- Isolatie
- Dubbel glas
- Verwarming
- Cv-ketel
- Warm water
- Cv-ketel
- Cv-ketel
- Intergas Kombi (gas gestookt combiketel uit 2014, eigendom)
Kadastrale gegevens
- DELFT P 179
- Kadastrale kaart
- Oppervlakte
- 148 m²
- Eigendomssituatie
- Volle eigendom
Buitenruimte
- Ligging
- Aan rustige weg
- Tuin
- Achtertuin
- Achtertuin
- 90 m² (18,00 meter diep en 5,00 meter breed)
- Balkon/dakterras
- Dakterras aanwezig
Bergruimte
- Schuur/berging
- Vrijstaande houten berging
Foto's 25
© 2001-2026 funda
























