
Omschrijving
In een rustige buurt in Den Bommel mogen we u deze royale, vrijstaande woning met grote schuur/garage aanbieden. De woning is voorzien van een gezellige woon-/eetkamer, een ruime keuken, drie slaapkamers en een royale zolder. De ruime tuin is aan drie zijden van de woning gelegen.
INDELING
Begane grond:
De entreehal, met trapopgang, geeft toegang tot de keuken. Vanuit de keuken zijn de woon-/eetkamer en een hal bereikbaar. De ruime woonkamer is aan de voorzijde van de woning gelegen en voorzien van een plavuizen vloer met vloerverwarming, een sfeervolle houtkachel en een balkenplafond. De ramen zorgen voor veel natuurlijke lichtinval. Aan de achterzijde is de eetkamer gesitueerd, met openslaande deuren naar de tuin. De ruime, authentieke keuken is voorzien van veel opbergruimte, inbouwspots, een vaste kast en diverse apparatuur: kookplaat, afzuigkap, combi-oven, koelkast en vaatwasser. Vanuit de keuken is een hal bereikbaar die toegang geeft tot het toilet, de tuin en de bijkeuken.
Eerste verdieping:
De overloop geeft toegang tot de drie slaapkamers, een kantoor en de badkamer. De ruime slaapkamers zijn voorzien van een laminaatvloer en één of twee vaste kasten. De ramen zorgen voor veel lichtinval. De zeer royale badkamer is geheel betegeld en voorzien van een ligbad, een inloopdouche, twee wastafels, een toilet, inbouwspots en vloerverwarming.
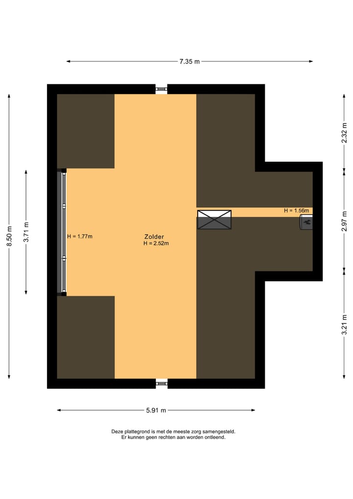
Zolder:
De ruime zolder is vanaf de overloop bereikbaar middels een vlizotrap. De zolder, met CV-ketel, is vergroot middels een dakkapel.
Tuin & Schuur/Garage:
De royale tuin is aan drie zijden van de woning gelegen. De tuin is voorzien van bestrating, siergrind, een groot gazon en allerlei borders met struiken en bomen. De zeer grote schuur/garage is vanaf de achterzijde van het perceel bereikbaar. Het pand bestaat uit een hele grote schuur en een aparte garage, met ruimte voor drie voertuigen.
Bijzonderheden:
– Oplevering: in overleg
– Vrijstaande woning met zeer grote schuur/garage
– Hout CV haard
– Waterontharder
– Vloerverwarming in de woonkamer, keuken en hal
– Vloerverwarming in de badkamer
– 15 zonnepanelen
Kenmerken
Overdracht
- Oorspronkelijke vraagprijs
- € 675.000 kosten koper
- Laatste vraagprijs
- € 650.000 kosten koper
- Vraagprijs per m²
- € 4.114
- Status
- Verkocht
Bouw
- Soort woonhuis
- Eengezinswoning, vrijstaande woning
- Soort bouw
- Bestaande bouw
- Bouwjaar
- 1958
- Soort dak
- Zadeldak bedekt met pannen
Oppervlakten en inhoud
- Gebruiksoppervlakten
- Wonen
- 158 m²
- Overige inpandige ruimte
- 278 m²
- Perceel
- 1.020 m²
- Inhoud
- 2.498 m³
Indeling
- Aantal kamers
- 5 kamers (3 slaapkamers)
- Aantal badkamers
- 1 badkamer en 1 apart toilet
- Badkamervoorzieningen
- Dubbele wastafel, inloopdouche, ligbad, en toilet
- Aantal woonlagen
- 2 woonlagen en een zolder
- Voorzieningen
- Glasvezelkabel, mechanische ventilatie, rookkanaal, en zonnepanelen
Energie
- Energielabel
- E
- Isolatie
- Dubbel glas
- Verwarming
- Cv-ketel, houtkachel en gedeeltelijke vloerverwarming
- Warm water
- Cv-ketel
- Cv-ketel
- Nefit ( combiketel uit 2016)
Kadastrale gegevens
- DEN BOMMEL B 2864
- Kadastrale kaart
- Oppervlakte
- 1.020 m²
- Eigendomssituatie
- Volle eigendom
Buitenruimte
- Ligging
- In woonwijk
- Tuin
- Achtertuin, voortuin en zijtuin
- Achtertuin
- 285 m² (19,00 meter diep en 15,00 meter breed)
- Ligging tuin
- Gelegen op het zuiden bereikbaar via achterom
Bergruimte
- Schuur/berging
- Aangebouwde stenen berging
Garage
- Soort garage
- Aangebouwde stenen garage
- Capaciteit
- 3 auto's
Parkeergelegenheid
- Soort parkeergelegenheid
- Op eigen terrein
Foto's 52
© 2001-2025 funda



















































