
Omschrijving
Op de 7e verdieping van serviceflat De Pettelaer gelegen - op het zuidwesten georiënteerd - 4-kamerappartement met balkons en inpandige berging.
Vraagprijs van € 435.000,-- is een 'vanaf prijs'
Bouwjaar: 1974
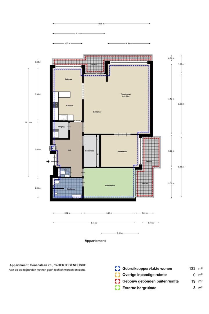
Netto gebruiksopp.: 123 m² (wonen) en 19 m² (balkon)
Bruto inhoud: 379 m³
Kadastraal bekend: ’s-Hertogenbosch sectie N nummer 1159-A 47
Staat van onderhoud: goed
Aantal kamers: 4 (waarvan 1 slaapkamer)
Verwarming: centraal geregeld (blokverwarming)
Balkons: zuidwestzijde ( 19 m²)
Energielabel: B-label
Aanvaarding: in overleg
Servicekosten: € 1.042 p/mnd. (exclusief toeslag 2e bewoner, voorschot verwarming, water, elektra en maaltijden/dinerkosten peil 2024).
Dit ruim bemeten serviceappartement is buitengewoon fraai gesitueerd op de 7e verdieping en biedt een schitterend uitzicht op het direct aan het appartementengebouw grenzend recreatiegebied de Zuiderplas, vestingeiland de Pettelaarse Schans en beschermd natuurgebied het Bossche Broek. Ideaal om er rechtstreeks vanuit het appartementengebouw opuit te trekken, te wandelen, te fietsen of te genieten op het terras van nabijgelegen restaurant Moeke op het vestingeiland.
De Senecalaan is op een kleine twee kilometer afstand gesitueerd van het Bourgondische hart van de historische Bossche binnenstad. Uitstekende infrastructuur en daardoor uitermate goed bereikbaar met zowel eigen als ook openbaar vervoer.
De Pettelaer positioneert en onderscheidt zich als een serviceflat voor vitale senioren. Zelfstandig en veilig wonen staat centraal. Het wooncomfort wordt ondersteund door een servicepakket waarvan de inhoud zorgvuldig is afgestemd op de behoefte van de bewoners. De Pettelaer is geen zorginstelling maar mocht op enig moment zorg nodig zijn dan is deze snel en kwalitatief goed beschikbaar. De receptie is het aanspreekpunt voor problemen en noodgevallen. De alarminstallatie in het appartement is overdag verbonden met de receptie, buiten kantooruren en in het weekend met de nachtdienst. De huismeester staat graag klaar voor technische ondersteuning. Het is onbezorgd en aangenaam wonen op De Pettelaer. De actieve bewoners organiseren gezellige en interessante bijeenkomsten op gebied van kunst, cultuur en ontspanning.
De Pettelaer beschikt over een overdekte entree met bellentableau en videofoon-/intercominstallatie, receptie, lounge met diverse zitjes, postvakken/brievenbussen en toegang tot een gemeenschappelijke fietsenberging. Een tweetal moderne liften brengt u vlot naar de juiste verdieping. Op iedere woonlaag een gaanderij met zitruimte en toegang tot de privé-appartementen, bergingen en een algemene ruimte annex logeer-/gastenkamer. Op de twee bovenste verdiepingen (13e en 14e) bevinden zich gemeenschappelijke ruimtes waaronder een groot en gezellig ingericht restaurant, een goed geoutilleerde keuken, een biljartruimte en een riant dakterras. Tot slot nog een ontspanningsruimte inclusief pantry. Vanuit alle hiervoor genoemde ruimtes kunt u genieten van het panoramisch uitzicht over ’s-Hertogenbosch en wijde omgeving.
Het appartement
Het hierbij aangeboden appartement behoort qua woonoppervlakte en indeling tot een van de meest gewilde woningtype. Het appartement is uitermate geschikt voor één- dan wel tweepersoonshouden. De ligging op het zuidwesten in combinatie met de verdiepingshoogte en het uitzicht, is werkelijk uniek. Het is - zonder te overdrijven - een voorrecht om op deze mooie plek te mogen wonen. Iedere dag opnieuw genieten van dit mooie appartement, het schitterende uitzicht en de geboden servicefaciliteiten. Kopers kiezen bewust voor Serviceflat De Pettelaer om er veilig en onbezorgd te wonen, als het even kan tot in lengte van jaren.
Het appartement is voorzien van (nieuwe) goed geïsoleerde, aluminium buitenkozijnen, ramen en deuren. Elektrisch bedienbare zonneschermen aan zowel de zuid- als ook aan de westzijde. Woonkamer, werkkamer, garderobe en hal met eikenhouten parketvloer. De wanden en de plafonds gestukadoord en voorzien van schilderij-ophangsysteem.
De indeling is als volgt: entree met naastgelegen service-/doorgeefkast, ruime hal, toiletruimte met wandcloset en fonteintje. Door middel van een houten deur met glas in roeden toegang tot de royaal bemeten woonkamer. Brede schuifpui naar een op het zuiden gelegen buitenruimte. Apart zitgedeelte met aangrenzend balkon (eveneens op het zuiden georiënteerd). De woonkamer staat in open verbinding met de aangrenzende woonkeuken. Hier bevindt zich een moderne U-vormige (witte) keukeninrichting bestaande uit kastruimte en laden, carrousel hoekkasten, granieten werkblad met geïntegreerde rvs-spoelbak, 4-pits inductie kookplaat, rvs afzuigkap, oven, aparte magnetron en vaatwasser, iets verhoogd gedeelte met een drietal kastjes en tenslotte nog een wandkast.
Direct grenzend aan de woonkamer treffen we een, door middel van dubbele houten deuren met glas in roeden gescheiden, werkkamer, compleet met openslaande deur naar een op het westen gesitueerd balkon.
Fijne ruime slaapkamer, eveneens met een openslaande deur naar een op het westen gelegen balkon. De moderne badkamer is rechtstreeks vanuit de slaapkamer bereikbaar en voorzien van een royale inloopdouche met zitje en thermostatische mengkraan, een wastafelmeubel, wandcloset en een design-/handdoekenradiator.
Vanuit de hal bereikbare afzonderlijke garderoberuimte en een praktische berging (annex meterkast). Dan is er nog een separate, aan de binnengaanderij gelegen, berging.
De staat van onderhoud aan binnen- en buitenzijde van zowel het gehele appartementengebouw als van het individuele appartement is zonder meer goed.
Wij nodigen serieus in dit serviceappartement geïnteresseerden hierbij van harte uit voor een persoonlijke kennismaking.
Kenmerken
Overdracht
- Servicekosten
- € 1.042 per maand
- Laatste vraagprijs
- € 435.000 kosten koper
- Vraagprijs per m²
- € 3.537
- Status
- Verkocht
- Bijdrage VvE
- € 1.042,00 per maand
Bouw
- Soort appartement
- Portiekflat (service flat)
- Soort bouw
- Bestaande bouw
- Bouwjaar
- 1974
- Soort dak
- Plat dak
Oppervlakten en inhoud
- Gebruiksoppervlakten
- Wonen
- 123 m²
- Gebouwgebonden buitenruimte
- 19 m²
- Externe bergruimte
- 3 m²
- Inhoud
- 379 m³
Indeling
- Aantal kamers
- 4 kamers (1 slaapkamer)
- Aantal badkamers
- 1 badkamer en 1 apart toilet
- Badkamervoorzieningen
- Douche en wastafelmeubel
- Aantal woonlagen
- 14 woonlagen
- Voorzieningen
- Buitenzonwering en schuifpui
- Gelegen op
- 7e woonlaag
Energie
- Energielabel
- B
- Verwarming
- Blokverwarming
- Warm water
- Centrale voorziening
Kadastrale gegevens
- 'S-HERTOGENBOSCH N 1159
- Kadastrale kaart
- Eigendomssituatie
- Volle eigendom
Buitenruimte
- Balkon/dakterras
- Balkon aanwezig
Bergruimte
- Schuur/berging
- Inpandig
Parkeergelegenheid
- Soort parkeergelegenheid
- Betaald parkeren, openbaar parkeren en parkeervergunningen
VvE checklist
- Inschrijving KvK
- Ja
- Jaarlijkse vergadering
- Ja
- Periodieke bijdrage
- Ja (€ 1.042,00 per maand)
- Reservefonds aanwezig
- Ja
- Onderhoudsplan
- Ja
- Opstalverzekering
- Ja
Foto's 59
© 2001-2025 funda


























































