Dit huis op Funda: https://www.funda.nl/detail/koop/den-bosch/huis-oeverhuyze-12/43046009/

Omschrijving
Splinternieuw, duurzaam en tot in de puntjes afgewerkt. Deze twee-onder-één-kapwoning in het nieuwbouwproject Oeverhuyze, onderdeel van de karakteristieke kastelenbuurt Haverleij, biedt alles wat je van modern wonen mag verwachten. De woning is in 2023 opgeleverd en beschikt over een royale uitbouw, vijf volwaardige slaapkamers, een diepe tuin met vrij uitzicht, zonnig dakterras, ruime berging en een eigen oprit. Verdeeld over drie woonlagen, volledig recht opgetrokken wanden en een consequente afwerking: hier is iedere vierkante meter optimaal benut.
Dankzij de recente bouw is de woning volledig voorbereid op de toekomst. Met Energielabel A+++, een warmtepomp, vloerverwarming én -koeling in het hele huis, HR++ beglazing, tien stuks zonnepanelen en een volledig gasloze installatie woon je hier niet alleen comfortabel, maar ook bijzonder energiezuinig.
Het eigentijdse kasteel Oeverhuyze is uitgevoerd in een fraaie Windsor-stijl, met oog voor detail en een statige uitstraling. Het complex beschikt over een groot speelveld in het centrale hof, voldoende parkeergelegenheid en een unieke ligging direct aan de oevers van de Maas.
Inhoud ca. 497 m3, woonopp. ca. 140 m2, perceelopp. ca. 278 m2, bouwjaar 2023.
Begane grond:
Binnenkomst via de voortuin in de hal met de meterkast, toiletruimte en de trapopgang. De fraaie glazen deur biedt toegang tot de ruime, uitgebouwde living met een mooie PVC-vloer met vloerverwarming én -koeling. Aan de voorzijde is de keuken gesitueerd met een luxe keukeninrichting in witte kleurstelling. Het wandmeubel in parallelopstelling beschikt over veel werk- en bergruimte en natuurlijk diverse hoogwaardige inbouwapparatuur: Bora inductiekookplaat met geïntegreerde afzuiging, Quooker, vaatwasser, hoge koel/vries-combinatie en een combi-oven/magnetron. Aan de achterzijde zijn de zit- en eethoek gesitueerd. Hier leiden de dubbele openslaande deuren naar de zonnige achtertuin. De praktische trapkast zorgt voor extra provisie- en bergruimte. De tuin is lekker diep en grenst aan de achtergelegen natuur. Door de ligging op het zuidoosten kun je hier volop van de zon genieten. De tuin is aangelegd met een groot terras, gazon en plantenborders in cortenstalen vakken. Automatische druppel-besproeiing zorgt voor extra comfort. Vanuit de voortuin is er nog toegang tot de (fiets)berging. Hierin bevindt zich reeds de voorbereiding voor een eventuele laadpaal.
1e Verdieping:
Op deze verdieping bevinden zich drie volwaardige slaapkamers, waarvan één slaapkamer is ingericht als garderobekamer. Ook hier is gekozen voor dezelfde PVC-vloer als op de begane grond. De badkamer is mooi betegeld in een rustige kleurstelling en luxe ingericht met een ruime inloopdouche met regen- en handdouche, 2e zwevend toilet, designradiator en een wastafelmeubel met twee waskommen. Een raam zorgt voor daglichttoetreding.
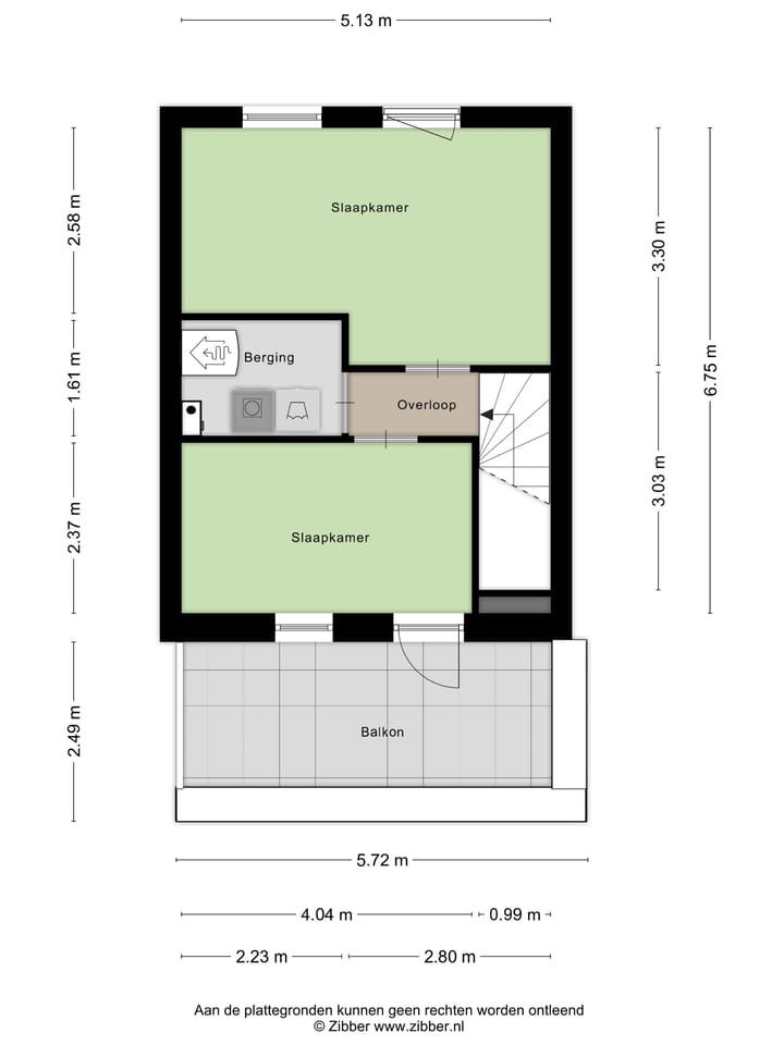
2e Verdieping:
Deze verdieping telt nog eens 2 royale slaapkamers. De slaapkamer aan de achterzijde strekt zich uit over de volle breedte, de slaapkamer aan de voorzijde heeft toegang naar het dakterras met leuk uitzicht over het binnenhof van het kasteel. Daarnaast bevindt zich op deze verdieping nog de technische ruimte met de aansluitingen voor de wasapparatuur en de installaties. Ook deze verdieping heeft een mooi afwerkingsniveau.
Deze fraaie kasteelwoning is zeer consequent en perfect afgewerkt, biedt veel ruimte en comfort en is zo te betrekken. Ideaal gelegen nabij de Maas in een leuk fietsgebied en nabij diverse voorzieningen zoals een supermarkt, basisschool, kinderdagverblijf, bushalte, golfbaan Haverleij, prachtige natuurgebieden, uitvalswegen en het Engelermeer. En dit alles op slechts 15 minuten van het gezellige Bourgondische centrum en een paar autominuten van winkelcentrum De Helftheuvel. Een zeer aantrekkelijk object voor eenieder, die op zoek is naar zorgeloos wonen op een prachtige, rustige locatie.
Kenmerken
Overdracht
- Laatste vraagprijs
- € 645.000 kosten koper
- Vraagprijs per m²
- € 4.607
- Status
- Verkocht
Bouw
- Soort woonhuis
- Eengezinswoning, 2-onder-1-kapwoning
- Soort bouw
- Bestaande bouw
- Bouwjaar
- 2023
- Soort dak
- Plat dak
Oppervlakten en inhoud
- Gebruiksoppervlakten
- Wonen
- 140 m²
- Gebouwgebonden buitenruimte
- 10 m²
- Externe bergruimte
- 6 m²
- Perceel
- 278 m²
- Inhoud
- 497 m³
Indeling
- Aantal kamers
- 6 kamers (5 slaapkamers)
- Aantal badkamers
- 1 badkamer en 1 apart toilet
- Badkamervoorzieningen
- Douche, dubbele wastafel, en toilet
- Aantal woonlagen
- 3 woonlagen
- Voorzieningen
- Mechanische ventilatie en zonnepanelen
Energie
- Energielabel
- Isolatie
- Dubbel glas, HR-glas en volledig geïsoleerd
- Verwarming
- Gehele vloerverwarming en warmtepomp
- Warm water
- Elektrische boiler
Kadastrale gegevens
- 'S-HERTOGENBOSCH R 3696
- Kadastrale kaart
- Oppervlakte
- 278 m²
- Eigendomssituatie
- Volle eigendom
Buitenruimte
- Ligging
- In woonwijk en vrij uitzicht
- Tuin
- Achtertuin en voortuin
- Achtertuin
- 101 m² (14,97 meter diep en 8,49 meter breed)
- Ligging tuin
- Gelegen op het zuidoosten
- Balkon/dakterras
- Dakterras aanwezig
Bergruimte
- Schuur/berging
- Vrijstaande houten berging
Parkeergelegenheid
- Soort parkeergelegenheid
- Op eigen terrein
Foto's 42
© 2001-2026 funda









































