Dit huis op Funda: https://www.funda.nl/detail/koop/den-dungen/huis-poeldonk-14/43810849/

Omschrijving
Dit leuke huis aan de Poeldonk biedt verrassend veel ruimte, en de achtertuin is een echt paradijs, gelegen in het groen en met veel privacy!
Bij binnenkomst in de hal, wordt u geleid naar de ruime woonkamer. De woonkamer is voorzien van een stijlvolle PVC-vloer en heeft veel lichtinval door de grote raampartijen aan zowel de voor- als achterzijde. De recent vernieuwde schuifpui (2021) biedt direct toegang tot de tuin. De keuken is uitgerust met diverse inbouwapparatuur van Miele, zoals een vaatwasser, koffiemachine, 4-pits inductiekookplaat, afzuigkap, magnetron (Siemens) en koelkast. Vanuit de keuken komt u in de hal, die toegang biedt tot de badkamer, het toilet en de bijkeuken. De badkamer is voorzien van een jacuzzi-ligbad, douche en wastafel. Er is ook een apart toilet. De bijkeuken beschikt over een praktische kastenwand met veel opbergruimte. Hier bevinden zich tevens de wasmachine, droger en CV-installatie. De hal en bijkeuken zijn voorzien van een mooie houtlook tegelvloer. De aluminium deur naar de tuin is in 2024 vervangen.
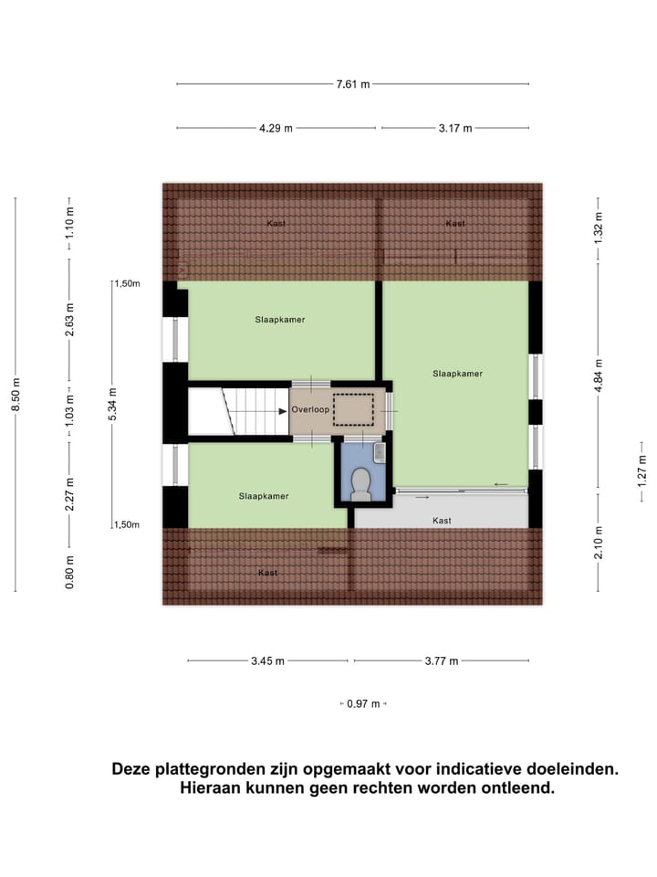
Eerste verdieping:
Deze verdieping herbergt drie ruime slaapkamers en een apart toilet. Het dak van de grote slaapkamer is in 2008 akoestisch geïsoleerd. Tevens zijn toen alle slaapkamerramen vervangen en voorzien van dubbele beglazing. En er zijn geluiddempende ventilatie units geplaatst op elke slaapkamer. De eerste verdieping is voorzien van vloerbedekking.
Vlizozolder:
Op zolder is er veel opbergruimte beschikbaar.
Tuin:
De tuin is een echte parel. De vogels weten deze tuin goed te vinden. De tuin is ruim en biedt veel privacy, ideaal voor kinderen, huisdieren en tuinliefhebbers. Achterin de tuin bevindt zich een fijne overkapping. Aan de woning is een zitgedeelte gecreëerd waar u altijd droog zit.
Berging:
De berging is perfect voor het opbergen van tuinspullen en fietsen. Deze is zowel bereikbaar via de oprit als vanuit de achtertuin.
Ligging:
Den Dungen, gelegen in de gemeente Sint-Michielsgestel, ligt ten zuidoosten van 's-Hertogenbosch. Dit charmante dorp heeft een directe verbinding met het nabijgelegen Maaskantje en is uitstekend bereikbaar. Binnen slechts vijf minuten rijdt u naar de A2, en het gezellige centrum van 's-Hertogenbosch ligt op slechts 10 minuten afstand. De bakker, slager en supermarkt bevinden zich in de nabijheid, en er zijn maar liefst twee gezellige restaurants en een theehuis op loopafstand.
Het dorp is rustig en groen, maar ligt tegelijkertijd dicht bij de Zuid-Willemsvaart, aan de rand van het dorp. Dit maakt het een ideale plek voor wie houdt van de rust van het platteland, maar ook snel de levendigheid van de stad wil opzoeken. Den Dungen biedt de perfecte balans tussen natuur, bereikbaarheid en gezelligheid, en is de ideale plek voor een rustige levensstijl met alle voordelen van de stad binnen handbereik.
Kortom, Den Dungen biedt de ideale combinatie van rust, natuur en bereikbaarheid – een perfecte plek om te wonen en volop te genieten van het leven.
Bijzonderheden:
* 6 zonnepanelen (2020);
* Rolluiken bij de bijkeuken en grote slaapkamer;
* Schuurtje gebouwd in 2022;
* Dak opgetrokken in 2000, plat dak vernieuwd in 2019;
* Dak gedeeltelijk extra geïsoleerd;
* Vernieuwde schuifpui en achterdeur (aluminium);
* Geweldige tuin met veel privacy;
* Praktisch schuurtje;
* Parkeren op eigen terrein.
Kenmerken
Overdracht
- Laatste vraagprijs
- € 539.000 kosten koper
- Vraagprijs per m²
- € 4.991
- Status
- Verkocht
Bouw
- Soort woonhuis
- Eengezinswoning, vrijstaande woning
- Soort bouw
- Bestaande bouw
- Bouwjaar
- 1910
- Soort dak
- Zadeldak bedekt met pannen
Oppervlakten en inhoud
- Gebruiksoppervlakten
- Wonen
- 108 m²
- Gebouwgebonden buitenruimte
- 13 m²
- Externe bergruimte
- 13 m²
- Perceel
- 345 m²
- Inhoud
- 388 m³
Indeling
- Aantal kamers
- 4 kamers (3 slaapkamers)
- Aantal badkamers
- 1 badkamer en 2 aparte toiletten
- Badkamervoorzieningen
- Douche, jacuzzi, wastafel, en wastafelmeubel
- Aantal woonlagen
- 2 woonlagen
- Voorzieningen
- Schuifpui en zonnepanelen
Energie
- Energielabel
- Isolatie
- Dakisolatie, dubbel glas en muurisolatie
- Verwarming
- Cv-ketel
- Warm water
- Cv-ketel
- Cv-ketel
- Nefit (gas gestookt uit 2014, eigendom)
Kadastrale gegevens
- SINT-MICHIELSGESTEL G 946
- Kadastrale kaart
- Oppervlakte
- 198 m²
- SINT-MICHIELSGESTEL G 340
- Kadastrale kaart
- Oppervlakte
- 147 m²
- Eigendomssituatie
- Volle eigendom
Buitenruimte
- Tuin
- Achtertuin
- Achtertuin
- 284 m² (21,00 meter diep en 13,50 meter breed)
- Ligging tuin
- Gelegen op het noordoosten bereikbaar via achterom
Bergruimte
- Schuur/berging
- Aangebouwde houten berging
- Voorzieningen
- Elektra
Parkeergelegenheid
- Soort parkeergelegenheid
- Op eigen terrein
Foto's 36
© 2001-2026 funda



































