Omschrijving

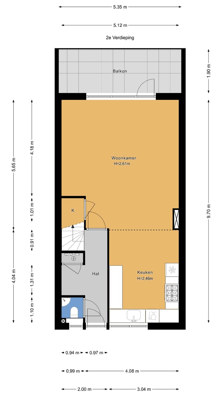
GROOT (99M2) 5-KAMER DUBBEL BOVENHUIS MET 4 SLAAPKAMERS, AIRCO, ENERGIELABEL C, EIGEN FIETSENBERGING, ZONNIG TERRAS EN EEUWIGDUREND AFGEKOCHTE ERFPACHT. Rustig gelegen 5-kamer dubbel bovenhuis in het kindvriendelijke Houtwijk. Gelegen op fietsafstand van het strand van Kijkduin. Daarnaast zijn ook diverse scholen (waaronder The International School of The Hague), het openbaar vervoer en uitvalswegen A4, A12 en A13 zeer goed bereikbaar. Toegang via trap naar 2e verdieping, entree, hal met meterkast, toilet en meterkast. Ruime wooneetkamer (ca. 5.65 x 5.12m) met kast onder de trap en deur naar het terras. Ruime open keuken (ca. 4.04 x 3.04m) in hoekopstelling met 6-pits Boretti kooktoestel, afzuigkap, oven, koelkast en vaatwasser. Royaal terras (ca. 5.12 x 1.90m) gunstig gelegen op de middag/avondzon.. Trap naar bovenverdieping alwaar ruime overloop met vaste kast. Ruime badkamer (ca. 2.90 x 2.05m) voorzien van douche, dubbele wastafel, toilet en wasmachine-aansluiting. Grote achterslaapkamer (ca. 3.67 x 3.28m). Grote 2e slaapkamer (ca. 3.07 x 2.96m). 3e slaapkamer (ca. 2.96 x 1.96m). 4e slaapkamer (ca. 3.49 x 1.87m). Eigen fietsenberging (ca. 3.44 x 1.96m) met elektra op de begane grond. Eigenschappen: - eeuwigdurend afgekochte erfpacht, geen canonbetaling - elektra 6 groepen + 2 x a.l.s. - deels voorzien van dubbel glas - C.V.-combiketel Remeha HR 2021 - energielabel C - voorzien van 2 x airco - bouwkundig keuringsrapport aanwezig van 14 juni 2023 Vereniging van Eigenaren: - bijdrage € 192,53/m - inclusief collectieve opstalverzekering - V.v.E.-reserve € 251.479,96 110/3.154 aandeel - onderhoudsplan aanwezig - professioneel bestuur - de V.v.E. is voornemens nieuw dubbel glas HR++ te plaatsen. De biedingen verlopen via het platform van Eerlijk Bieden te vinden op hooghlanden.nl.

Kenmerken

Overdracht

Oorspronkelijke vraagprijs
€ 375.000 kosten koper
Laatste vraagprijs
€ 365.000 kosten koper
Vraagprijs per m²
€ 3.687
Status
Verkocht
Bijdrage VvE
€ 192,53 per maand

Bouw

Soort appartement
Maisonnette (appartement)
Soort bouw
Bestaande bouw
Bouwjaar
1980
Soort dak
Zadeldak bedekt met pannen
Keurmerken
Bouwkundige Keuring

Oppervlakten en inhoud

Gebruiksoppervlakten
Wonen
99 m²
Gebouwgebonden buitenruimte
10 m²
Externe bergruimte
7 m²
Inhoud
310 m³

Indeling

Aantal kamers
5 kamers (4 slaapkamers)
Aantal badkamers
1 badkamer en 1 apart toilet
Badkamervoorzieningen
Douche, dubbele wastafel, en toilet
Aantal woonlagen
2 woonlagen
Voorzieningen
Airconditioning, mechanische ventilatie, en natuurlijke ventilatie
Gelegen op
2e woonlaag

Energie

Energielabel
Isolatie
Gedeeltelijk dubbel glas
Verwarming
Cv-ketel
Warm water
Cv-ketel
Cv-ketel
Remeha HR (gas gestookt combiketel uit 2021, eigendom)

Kadastrale gegevens

DEN HAAG M 5988
Kadastrale kaart
Eigendomssituatie
Gemeentelijke erfpacht
Lasten
Eeuwigdurend afgekocht

Buitenruimte

Ligging
Aan rustige weg, aan water en in woonwijk
Tuin
Zonneterras
Zonneterras
10 m² (5,12 meter diep en 1,90 meter breed)
Ligging tuin
Gelegen op het zuidwesten
Balkon/dakterras
Balkon aanwezig

Bergruimte

Schuur/berging
Box
Voorzieningen
Elektra

Parkeergelegenheid

Soort parkeergelegenheid
Betaald parkeren, openbaar parkeren en parkeervergunningen

VvE checklist

Inschrijving KvK
Ja
Jaarlijkse vergadering
Ja
Periodieke bijdrage
Ja (€ 192,53 per maand)
Reservefonds aanwezig
Ja
Onderhoudsplan
Ja
Opstalverzekering
Ja

Foto's 28

  • Foto 1 van Albert Schweitzerlaan 229
  • Foto 2 van Albert Schweitzerlaan 229
  • Foto 3 van Albert Schweitzerlaan 229
  • Foto 4 van Albert Schweitzerlaan 229
  • Foto 5 van Albert Schweitzerlaan 229
  • Foto 6 van Albert Schweitzerlaan 229
  • Foto 7 van Albert Schweitzerlaan 229
  • Foto 8 van Albert Schweitzerlaan 229
  • Foto 9 van Albert Schweitzerlaan 229
  • Foto 10 van Albert Schweitzerlaan 229
  • Foto 11 van Albert Schweitzerlaan 229
  • Foto 12 van Albert Schweitzerlaan 229
  • Foto 13 van Albert Schweitzerlaan 229
  • Foto 14 van Albert Schweitzerlaan 229
  • Foto 15 van Albert Schweitzerlaan 229
  • Foto 16 van Albert Schweitzerlaan 229
  • Foto 17 van Albert Schweitzerlaan 229
  • Foto 18 van Albert Schweitzerlaan 229
  • Foto 19 van Albert Schweitzerlaan 229
  • Foto 20 van Albert Schweitzerlaan 229
  • Foto 21 van Albert Schweitzerlaan 229
  • Foto 22 van Albert Schweitzerlaan 229
  • Foto 23 van Albert Schweitzerlaan 229
  • Foto 24 van Albert Schweitzerlaan 229
  • Foto 25 van Albert Schweitzerlaan 229
  • Foto 26 van Albert Schweitzerlaan 229
  • Foto 27 van Albert Schweitzerlaan 229
  • Foto 28 van Albert Schweitzerlaan 229

© 2001-2025 funda