
Omschrijving
Deze fijne benedenwoning is gelegen in de gezellige en zeer populaire Ampèrestraat midden in het Valkenboskwartier. Dit 4-kamer appartement heeft een royale, zonnige achtertuin en 2 slaapkamers en is in goede staat van onderhoud.
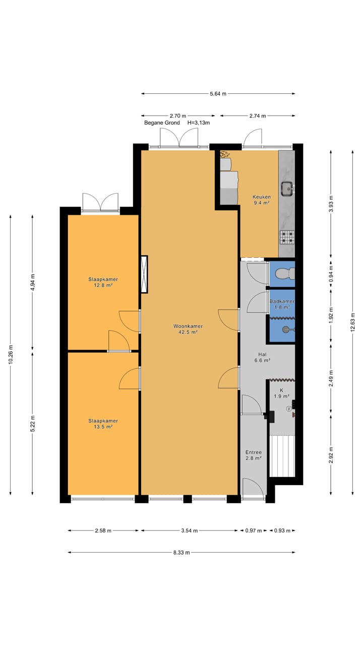
Indeling; entree, vestibule met laminaatvloer, doorloop naar een royale hal met een ruime nis en een vaste kast onder de portiektrap. In deze trapkast is tevens de groepenkast voor de elektra (6 groepen met 2 aardlekschakelaars). Verder is er vanuit de hal toegang tot het separate toilet met een duoblok en een separate douche gelegenheid.
De zeer lichte, doorgebroken woon-eetkamer is mede dankzij de lengte van ruim 12.60m van ruime maatvoering. Dit gevoel wordt versterkt door de hoge, strak gestuukte plafonds en de moderne laminaatvloer. Aan de voorzijde van de woonkamer zijn kunststof kozijnen met dubbele beglazing met uitzicht op de straat. Aan de achterzijde vindt u houten kozijnen met dubbel glas en openslaande deuren met toegang tot de ruime achtertuin met stenen berging.
Vanuit de woonkamer is er toegang tot de beide slaapkamers. Beide slaapkamers zijn van zeer ruime maatvoering. De slaapkamer aan de voorzijde is voorzien van kunststof kozijnen met dubbel glas, en de achterslaapkamer heeft houten stolpdeuren met enkel glas en toegang naar de tuin.
De keuken is gelegen aan de achterzijde van de woning. Door de keuken naar de woon-eetkamer te verplaatsen is er eventueel de mogelijkheid om een derde slaapkamer te creëren. De keuken is thans uitgevoerd met een keukenblok met onder- en bovenkasten in zachtgroene kleurstelling en is voorzien van diverse inbouwapparatuur zoals een 5-pits gaskookplaat, afzuigkap, koelkast en combi-oven. De aanwezige vaatwasser is kapot en zal niet meer worden gerepareerd. Verder vindt u in de keuken de opstelplaats voor de CV-combiketel (Intergas HRe) van nog geen vijf jaar oud, alsmede de wasmachineaansluiting. Vanuit de keuken is er wederom toegang tot de achtertuin.
De woning maakt een verzorgde indruk waarbij de basis goed te noemen is.
Samengevat: bent u op zoek naar een fijne benedenwoning met 2 slaapkamers en een ruime achtertuin, op korte loopafstand van de winkels in de Fahrenheitstraat en de Weimarstraat? Dan is deze woning in de Ampèrestraat, met alle denkbare voorzieningen om de hoek, zeker een bezichtiging waard!
Aanvullende informatie;
- Gelegen op eigen grond
- Actieve VvE, 3 leden, maandbijdrage € 150,-. MVGM vastgoed doet de administratie. , MJOP Collectieve opstalverzekering en KvK inschrijving aanwezig.
- In 2021 is er op de 1e verdieping brand geweest met schade tot gevolg. De drie woningen in deze VvE zijn hierdoor volledig hersteld met betere en modernere staat van onderhoud tot gevolg.
- Energielabel D, deels voorzien van houten kozijnen met enkel glas, deels voorzien van kunststof kozijnen met dubbele beglazing.
- Kijk voor de exacte maatvoering (NEN 2580) naar de officiële meetstaat en plattegrond
- Verkoopvoorwaarden van ons kantoor zijn van toepassing
- Biedingen welke worden gedaan zonder de woning te hebben gezien, worden mede vanwege de Wet WWFT, niet in behandeling genomen
- Deze woning is betrokken in een nalatenschap waardoor ook de zogenaamde “niet zelf bewoningsclausle” zal worden opgenomen in de koopovereenkomst. Vrije notariskeuze voor koper mits een notaris die actief is in werkgebied Haaglanden.
De koopovereenkomst wordt conform het NVM-model opgemaakt met de daarbij behorende clausules die gebruikelijk zijn voor een woning uit deze bouwperiode.
Kenmerken
Overdracht
- Laatste vraagprijs
- € 450.000 kosten koper
- Vraagprijs per m²
- € 4.639
- Status
- Verkocht
- Bijdrage VvE
- € 150,00 per maand
Bouw
- Soort appartement
- Benedenwoning (appartement)
- Soort bouw
- Bestaande bouw
- Bouwperiode
- 1906-1930
- Specifiek
- Beschermd stads- of dorpsgezicht
- Soort dak
- Plat dak
Oppervlakten en inhoud
- Gebruiksoppervlakten
- Wonen
- 97 m²
- Externe bergruimte
- 3 m²
- Inhoud
- 404 m³
Indeling
- Aantal kamers
- 4 kamers (2 slaapkamers)
- Aantal badkamers
- 1 badkamer en 1 apart toilet
- Badkamervoorzieningen
- Douche
- Aantal woonlagen
- 1 woonlaag
- Voorzieningen
- TV kabel
- Gelegen op
- Begane grond
Energie
- Energielabel
- D
- Isolatie
- Dubbel glas
- Verwarming
- Cv-ketel
- Warm water
- Cv-ketel
- Cv-ketel
- Intergas HRE (gas gestookt combiketel uit 2020, eigendom)
Kadastrale gegevens
- 'S-GRAVENHAGE AM 7003
- Kadastrale kaart
- Eigendomssituatie
- Volle eigendom
Buitenruimte
- Ligging
- Aan rustige weg en in woonwijk
- Tuin
- Achtertuin
- Achtertuin
- 59 m² (9,54 meter diep en 6,15 meter breed)
- Ligging tuin
- Gelegen op het noordoosten
Bergruimte
- Schuur/berging
- Vrijstaande stenen berging
Parkeergelegenheid
- Soort parkeergelegenheid
- Betaald parkeren, openbaar parkeren, parkeergarage en parkeervergunningen
VvE checklist
- Inschrijving KvK
- Ja
- Jaarlijkse vergadering
- Ja
- Periodieke bijdrage
- Ja (€ 150,00 per maand)
- Reservefonds aanwezig
- Ja
- Onderhoudsplan
- Ja
- Opstalverzekering
- Ja
Foto's 30
© 2001-2025 funda





























