
Omschrijving
Ontzettend leuk, warm en gezellig dubbel bovenhuis met 3 slaapkamers, 2 balkons, open keuken en in 2017 Turn Key opgeleverd. Locatie is gewoon prima te noemen, midden in de Valkenboskwartier met het Stadsdeelkantoor en de Albert Heijn bijna om de hoek, de grote hoeveelheid aan winkels in de Fahrenheitstraat zijn op paar minuten aan te fietsen.
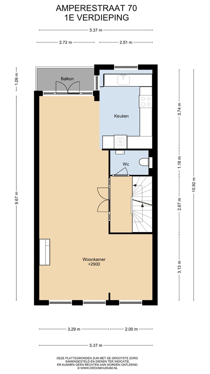
Indeling: entree en trap naar 1e etage, overloop met toilet en dubbele deuren naar de zeer lichte woon/eetkamer met open haard, prima balkon aan de achterzijde en een bijgetrokken voorzijkamer, de strakke en luxe semi open keuken is geplaatst aan de achterzijde met natuurlijk de bekende ingebouwde Siemens apparaten geïnstalleerd.
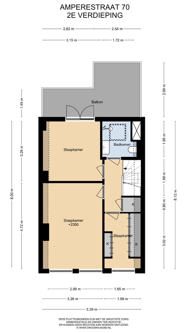
2e etage: overloop met kast waar de cv installatie is geplaatst alsmede de wasmachine aansluiting zit , 3 prima slaapkamers (waarvan er nu 1 in gebruik is als kastenkamer), heerlijke badkamer met veel licht, een grote inloopdouche (met regendouchekop), toilet en wastafel met meubel, via de achterkamer is er toegang tot het lekker zonnig dakterras (Z) voor de zomerborrels met barbecue!
Details:
- eigen grond
- kleine VvE met 2 leden, 3/5e aandeel, bijdrage € 60,- p/m
- zeer sfeervol en warm appartement, prima onderhouden, zo te betrekken
- fraaie houten vloerdelen door gehele appartement
- dubbel glas rondom
- CV combi Remeha Avanta 2017
- uitgebreide groepenkast
- ouderdoms- en materialen clausules van toepassing
- Gemeentelijke beschermd stadsgezicht
Kenmerken
Overdracht
- Laatste vraagprijs
- € 475.000 kosten koper
- Vraagprijs per m²
- € 4.798
- Status
- Verkocht
- Bijdrage VvE
- € 60,00 per maand
Bouw
- Soort appartement
- Bovenwoning (appartement)
- Soort bouw
- Bestaande bouw
- Bouwperiode
- 1906-1930
- Soort dak
- Plat dak
Oppervlakten en inhoud
- Gebruiksoppervlakten
- Wonen
- 99 m²
- Gebouwgebonden buitenruimte
- 15 m²
- Inhoud
- 347 m³
Indeling
- Aantal kamers
- 5 kamers (3 slaapkamers)
- Aantal badkamers
- 1 badkamer en 1 apart toilet
- Badkamervoorzieningen
- Inloopdouche, ligbad, en toilet
- Aantal woonlagen
- 2 woonlagen
- Gelegen op
- 1e woonlaag
Energie
- Energielabel
- D
- Verwarming
- Cv-ketel
- Warm water
- Cv-ketel
- Cv-ketel
- Remeha (gas gestookt combiketel uit 2017)
Kadastrale gegevens
- 'S GRAVENHAGE AM 6719
- Kadastrale kaart
- Eigendomssituatie
- Volle eigendom
Buitenruimte
- Ligging
- Aan rustige weg en in woonwijk
- Balkon/dakterras
- Dakterras aanwezig en balkon aanwezig
Parkeergelegenheid
- Soort parkeergelegenheid
- Openbaar parkeren en parkeervergunningen
VvE checklist
- Inschrijving KvK
- Ja
- Jaarlijkse vergadering
- Ja
- Periodieke bijdrage
- Ja (€ 60,00 per maand)
- Reservefonds aanwezig
- Ja
- Onderhoudsplan
- Nee
- Opstalverzekering
- Ja
Foto's 35
© 2001-2025 funda


































