
Omschrijving
Deze sfeervolle dubbele bovenwoning op de 1e en 2e verdieping combineert ruimte, licht en een geweldige ligging. De diepe woonkamer springt direct in het oog dankzij de hoge plafonds en grote raampartijen. Met vijf slaapkamers en drie balkons – waarvan één op het zonnige zuiden, biedt deze woning volop mogelijkheden.
De ligging is perfect: binnen een kwartier fietsen sta je in het hart van Den Haag of bij het Centraal Station. Voor boodschappen en gezellig winkelen kun je terecht in de nabijgelegen Fahrenheitstraat en Weimarstraat.
Indeling:
Begane grond:
- Entree met trapopgang naar de eerste etage;
Eerste etage:
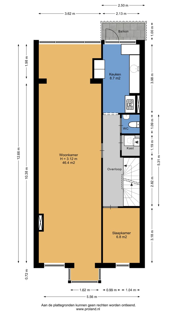
- Overloop met toegang tot woonkamer, keuken, toilet, slaapkamer, bergruimte en trapopgang naar 2e etage;
- Royale, diepe woonkamer met fraaie parketvloer, gekenmerkt door grote raampartijen aan de voor- en achterzijde en het hoge plafond;
- Lichte keuken met toegang tot balkon;
- Slaapkamer gelegen aan de voorzijde van ca. 7 m2;
- Geheel betegeld separaat toilet met fonteintje;
- Bergruimte met opstelplaats cv-installatie (Vaillant, 2013) en wasmachine-aansluiting.
Tweede etage:
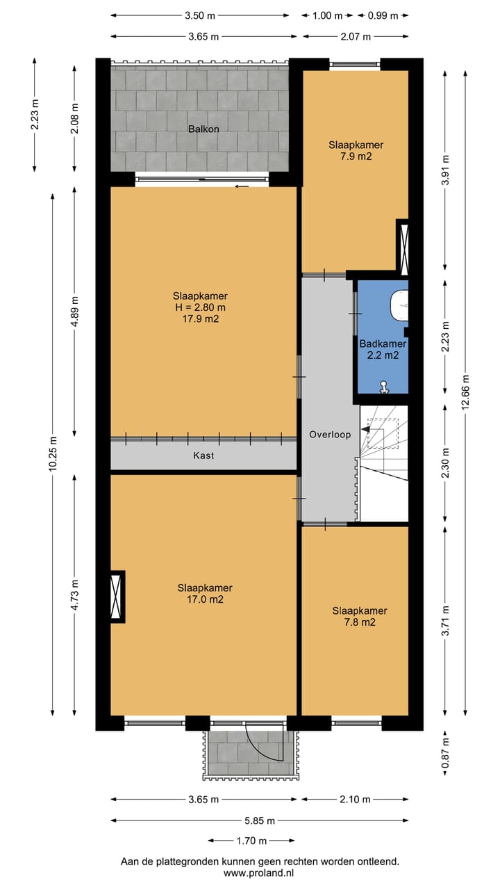
- Vanaf de overloop zijn alle slaapkamers en badkamer toegankelijk;
- Ruime (hoofd)slaapkamer gelegen aan de achterzijde van ca. 18 m2 voorzien van vaste kast en biedt toegang tot balkon gelegen op het noorden;
- Tweede slaapkamer gelegen aan de achterzijde van ca. 8 m2;
- Aan de voorzijde bevinden zich de derde slaapkamer ca. 17 met toegang tot het balkon op het zuiden en een vierde slaapkamer van ca. 8 m2;
- Badkamer voorzien van licht tegelwerk, douche en wastafel.
Bijzonderheden:
- Gebruiksoppervlakte wonen: ca. 146 m2;
- Bouwjaar: ca. 1906;
- Gelegen op eigen grond;
- De woning is een beschermd stads- dorpsgezicht;
- Energielabel C;
- Verwarming en warmwater middels cv-installatie (Vaillant, 2013);
- Dak vervangen in 2022 en schilderwerk aan de achterzijde vernieuwd in september 2024, planning schilderwerk voorzijde planning september 2025;
- De Vereniging van Eigenaren is actief, in eigen beheer, maandelijkse bijdrage € 300,-. De hoogte van de bijdrage is op dit moment vastgesteld om de kosten van het schilderwerk van de voorzijde te kunnen dekken, mogelijke verlaging na uitvoering van de werkzaamheden. De beslissing ligt bij de eigenaren op het moment van besluit;
- Oplevering: voorkeur februari 2025.
Interesse in dit huis? U kunt een eigen NVM-aankoopmakelaar inschakelen. Uw NVM-aankoopmakelaar komt op voor uw belang en kunt u tijd, geld en zorgen besparen. Adressen van collega NVM- aankoopmakelaars vindt u op Funda.
Deze informatie is geheel vrijblijvend, uitsluitend voor geadresseerde bestemd en niet bedoeld als aanbod. Ten aanzien van de juistheid van de vermelde informatie kan door de verkopend makelaar en haar opdrachtgever geen aansprakelijkheid worden aanvaard, noch kan aan de vermelde informatie enig recht worden ontleend.
Kenmerken
Overdracht
- Laatste vraagprijs
- € 519.000 kosten koper
- Vraagprijs per m²
- € 3.555
- Status
- Verkocht
- Bijdrage VvE
- € 300,00 per maand
Bouw
- Soort appartement
- Bovenwoning (appartement)
- Soort bouw
- Bestaande bouw
- Bouwjaar
- 1906
- Specifiek
- Beschermd stads- of dorpsgezicht
- Soort dak
- Plat dak bedekt met bitumineuze dakbedekking
- Keurmerken
- Energie Prestatie Advies
Oppervlakten en inhoud
- Gebruiksoppervlakten
- Wonen
- 146 m²
- Gebouwgebonden buitenruimte
- 11 m²
- Inhoud
- 540 m³
Indeling
- Aantal kamers
- 7 kamers (5 slaapkamers)
- Aantal badkamers
- 1 badkamer en 1 apart toilet
- Badkamervoorzieningen
- Douche en wastafel
- Aantal woonlagen
- 2 woonlagen
- Voorzieningen
- Mechanische ventilatie, schuifpui, en TV kabel
- Gelegen op
- 1e woonlaag
Energie
- Energielabel
- C
- Isolatie
- Dubbel glas
- Verwarming
- Cv-ketel
- Warm water
- Cv-ketel
- Cv-ketel
- Vaillant (gas gestookt combiketel uit 2013, eigendom)
Kadastrale gegevens
- 'S-GRAVENHAGE AM 7349
- Kadastrale kaart
- Eigendomssituatie
- Volle eigendom
Buitenruimte
- Ligging
- Aan rustige weg en in woonwijk
- Balkon/dakterras
- Balkon aanwezig
Parkeergelegenheid
- Soort parkeergelegenheid
- Betaald parkeren en openbaar parkeren
VvE checklist
- Inschrijving KvK
- Ja
- Jaarlijkse vergadering
- Ja
- Periodieke bijdrage
- Ja (€ 300,00 per maand)
- Reservefonds aanwezig
- Ja
- Onderhoudsplan
- Nee
- Opstalverzekering
- Ja
Foto's 46
© 2001-2025 funda













































