
Omschrijving
Ja hoor, ook in Den Haag hebben we bijzondere woonobjecten en dan ook nog eens in het o zo gezellige Zeeheldenkwartier. Het betreft hier een begane grond appartement van maar liefst ca 147m2 !!! en met een plafondhoogte van ca 4m!! Deze woning maakt onderdeel uit van een voormalige pakhuis welke verscholen ligt achter de straat en via een poort te bereiken is. Het is in 2008 verbouwd tot een complex met met 6 royale appartementen
Het leuke aan deze woning is dat je niet gehouden bent aan de indeling die er nu inzit en de lichte binnenwand constructies met veel glas zo kunt wijzigen naar eigen inzicht. Thans beschikt dit appartement over 4 slaapkamers, een kleine badkamer en een super riante woonkamer.
Enige pluspunten:
- Voormalig pakhuis
- Industriële uitstraling
- Ruimte is eenvoudig anders indeelbaar
- Energielabel C
Indeling:
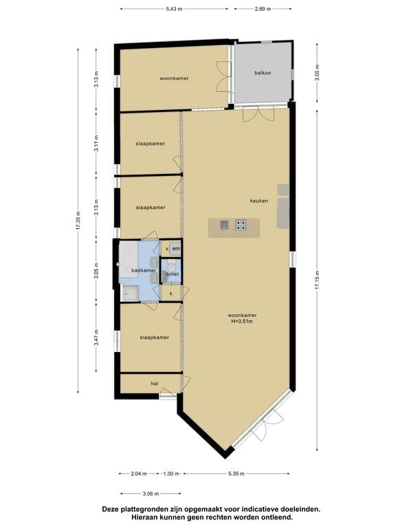
Via een poort in de straat kom je bij de entree van het complex. Royale centrale entree met trappenhuis. Entree appartement met hal/ bergruimte: zeer riante woonkamer ca. 17x5.35 met een kasseien vloer; openslaande deuren aan de voorzijde; in het midden geplaatste open keuken met ingebouwde apparatuur en aan de achterzijde openslaande deuren naar de patio/buitenruimte ca. 3x2.89 bereikbaar via openslaande deuren van de woonkamer en achterliggende slaapkamer; 4 slaapkamers met daglicht via bovenlichten ca. 3.47x3.06, 3.13x3.06, 3.11x3.06 en 5.43x3.13; tussenhalletje naar toilet en badkamer bereikbaar vanuit een tweetal slaapkamers ca. 3.05x2.05 met ligbad, douche, dubbele wastafel en ruimte voor wasmachine/droger.
Voor verdere maatvoering verwijzen wij naar de plattegrond.
Bijzonderheden:
- Bouwjaar 1887
- Woonoppervlakte ca. 147m2
- VVE bijdrage € 263,92per maand. Verdeeld in € 178,92 en € 85,-- onderhoud en overpadvergoeding poort.
- VVE is ver gevorderd met een vergunningsaanvraag voor dakterrassen voor iedere woning op het grote hoofddak. De bezwaarschriftenprocedure is reeds afgerond. Aanleg en aanpassingskosten van de constructie zijn voor de nieuwe eigenaar
- Energielabel C
- Projectnotaris: Lont & Lalmahomed Notarissen Den Haag
- Niet-bewoningsclausule door eigenaar van toepassing. As is, where is.
- De woning komt uit de huursector.
- In verband met het bouwjaar van de woning zal ongeacht de kwaliteit een ouderdoms- en materialenclausule in de NVM koopakte worden opgenomen
- Oplevering per direct
MEER INFORMATIE?
Op onze website staat de meest complete informatie over de woning. Hier kunt u ook een bezichtigingsafspraak aanvragen waarbij u het digitale woningdossier met aanvullende documenten ontvangt.
KAN IK DIT BETALEN?
Als extra service maken wij graag GRATIS EN VRIJBLIJVEND een hypotheek berekening door een van onze onafhankelijk hypotheekadviseurs. Wij kennen geen lange wachttijden waardoor vaak nog dezelfde dag een afspraak ingepland kan worden. Uiteindelijk kunnen wij indien gewenst de gehele financieringsaanvraag verzorgen.
----------------------------------------------------------------------------------------------------------------------------------------------
Deze informatie is door ons met de nodige zorgvuldigheid samengesteld. Onzerzijds wordt echter geen enkele aansprakelijkheid aanvaard voor enige onvolledigheid, onjuistheid of anderszins, dan wel de gevolgen daarvan. Alle opgegeven maten en oppervlakten zijn indicatief.
Kenmerken
Overdracht
- Laatste vraagprijs
- € 550.000 kosten koper
- Vraagprijs per m²
- € 3.741
- Status
- Verkocht
- Bijdrage VvE
- € 178,92 per maand
Bouw
- Soort appartement
- Benedenwoning (appartement)
- Soort bouw
- Bestaande bouw
- Bouwjaar
- 1887
- Specifiek
- Beschermd stads- of dorpsgezicht
- Soort dak
- Plat dak bedekt met bitumineuze dakbedekking
Oppervlakten en inhoud
- Gebruiksoppervlakten
- Wonen
- 147 m²
- Gebouwgebonden buitenruimte
- 10 m²
- Inhoud
- 607 m³
Indeling
- Aantal kamers
- 5 kamers (4 slaapkamers)
- Aantal badkamers
- 1 badkamer en 1 apart toilet
- Badkamervoorzieningen
- Douche, dubbele wastafel, en ligbad
- Aantal woonlagen
- 1 woonlaag
- Gelegen op
- Begane grond
Energie
- Energielabel
- Isolatie
- Gedeeltelijk dubbel glas
- Verwarming
- Cv-ketel
- Warm water
- Cv-ketel
- Cv-ketel
- Remeha Calenta (gas gestookt combiketel, eigendom)
Kadastrale gegevens
- 'S-GRAVENHAGE O 8537
- Kadastrale kaart
- Eigendomssituatie
- Volle eigendom
Buitenruimte
- Ligging
- Aan rustige weg en in woonwijk
- Tuin
- Patio/atrium
- Patio/atrium
- 9 m² (3,00 meter diep en 2,89 meter breed)
- Ligging tuin
- Gelegen op het zuidwesten
Bergruimte
- Schuur/berging
- Inpandig
Parkeergelegenheid
- Soort parkeergelegenheid
- Openbaar parkeren en parkeervergunningen
VvE checklist
- Inschrijving KvK
- Ja
- Jaarlijkse vergadering
- Ja
- Periodieke bijdrage
- Ja (€ 178,92 per maand)
- Reservefonds aanwezig
- Ja
- Onderhoudsplan
- Ja
- Opstalverzekering
- Ja
Foto's 32
© 2001-2026 funda































