
Omschrijving
In de groene, kindvriendelijke wijk Waldeck, in een kleinschalig appartementencomplex gelegen goed onderhouden maisonnette woning met vrij uitzicht. De woning heeft 4 kamers, een zonnig balkon, een (fietsen)berging en een eigen parkeerplaats in de afgesloten parkeergarage onder het complex.
Waldeck is een groene, rustige woonomgeving met alle voorzieningen binnen handbereik. Het is een prettige buurt en in de wijk vindt u diverse speelpleintjes waar kinderen heerlijk buiten kunnen spelen. U kunt fietsen naar de duinen en het strand. Ook zijn diverse winkels zoals het winkelcentrum De Savornin Lohmanplein en winkelcentrum Houtwijk op korte afstand te bereiken. Evenals de recreatiegebieden Ockenburgh, De Uithof en Madestein. Kortom alles binnen handbereik zoals: winkels, sportfaciliteiten, scholen, The International School, aansluitingen voor het openbaar vervoer (tramlijn 2 en 3 en buslijnen 21 en 26 op loopafstand) en uitvalswegen.
Indeling:
Begane grond:
- Gesloten entree met brievenbussen en bellentableau met trap naar de 2e verdieping;
2e verdieping:
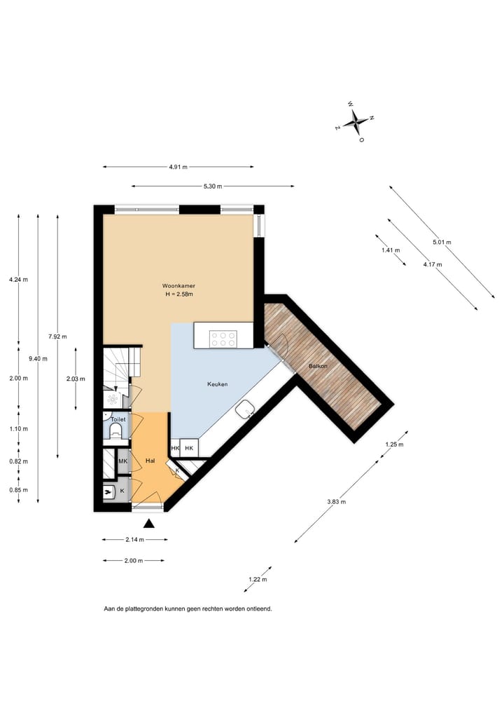
- Galerij met eigen entree, hal met meterkast, bergkast met opstelplaats voor de cv-ketel, trapkast, toilet met fonteintje en trap naar de 3e verdieping;
- Ruime en lichte woonkamer met riante open keuken en toegang tot het balkon;
- De open keuken is voorzien van kookeiland met een 6-pits gaskookplaat, 2 ovens, afzuigkap, koelkast en vaatwasser;
- Heerlijk ruim balkon (ca. 5,01 x 1,25 m) gelegen op het Noordwesten.
3e verdieping:
- Overloop met toegang tot alle vertrekken;
- Ruime ouderslaapkamer (ca. 4,29 x 2,69 m) gelegen aan de achterzijde van de woning;
- De 2e slaapkamer (ca. 4,25 x 2,15 m) is tevens gelegen aan de achterzijde van de woning;
- De 3e slaapkamer (ca. 3,41 x 2,06 m) is voorzien van een ruime bergkast;
- De badkamer (ca. 2,92 x 2,15/1,60 m) met ligbad, wastafelmeubel, 2e toilet en wasmachineaansluiting.
Bijzonderheden:
- Bouwjaar 1982;
- Gebruiksoppervlakte wonen: ca. 86 m²;
- Erfpacht uitgegeven voor onbepaalde tijd (voorwaarden 1977), de canon bedraagt thans € 1,13 per jaar, herziening canon per 01-11-2030, grondwaarde € 5.275,20;
- Actieve Vereniging van Eigenaren, maandelijkse bijdrage € 175,- voor de woning, berging en parkeerplaats;
- Gedeeltelijk voorzien van dubbel glas, gedeeltelijk voorzien van enkel glas met voorzetramen;
- Verwarming en warm water middels cv-ketel, Vaillant, bouwjaar 2012;
- Energielabel C;
- Oplevering in overleg.
Kenmerken
Overdracht
- Laatste vraagprijs
- € 325.000 kosten koper
- Vraagprijs per m²
- € 3.779
- Status
- Verkocht
- Bijdrage VvE
- € 175,00 per maand
Bouw
- Soort appartement
- Maisonnette (appartement)
- Soort bouw
- Bestaande bouw
- Bouwjaar
- 1982
- Soort dak
- Zadeldak bedekt met pannen
- Keurmerken
- Energie Prestatie Advies
Oppervlakten en inhoud
- Gebruiksoppervlakten
- Wonen
- 86 m²
- Gebouwgebonden buitenruimte
- 6 m²
- Externe bergruimte
- 6 m²
- Inhoud
- 279 m³
Indeling
- Aantal kamers
- 4 kamers (3 slaapkamers)
- Aantal badkamers
- 1 badkamer en 1 apart toilet
- Badkamervoorzieningen
- Ligbad, toilet, en wastafelmeubel
- Aantal woonlagen
- 2 woonlagen
- Voorzieningen
- Glasvezelkabel en TV kabel
- Gelegen op
- 3e woonlaag
Energie
- Energielabel
- C
- Isolatie
- Gedeeltelijk dubbel glas en voorzetramen
- Verwarming
- Cv-ketel
- Warm water
- Cv-ketel
- Cv-ketel
- Vaillant (gas gestookt combiketel uit 2012, eigendom)
Kadastrale gegevens
- LOOSDUINEN H 6259
- Kadastrale kaart
- Eigendomssituatie
- Gemeentelijke erfpacht
- Lasten
- € 1,13 per jaar
Buitenruimte
- Ligging
- In woonwijk en vrij uitzicht
Bergruimte
- Schuur/berging
- Vrijstaande houten berging
Garage
- Soort garage
- Parkeerkelder en parkeerplaats
Parkeergelegenheid
- Soort parkeergelegenheid
- Op afgesloten terrein, op eigen terrein en openbaar parkeren
VvE checklist
- Inschrijving KvK
- Ja
- Jaarlijkse vergadering
- Ja
- Periodieke bijdrage
- Ja (€ 175,00 per maand)
- Reservefonds aanwezig
- Ja
- Onderhoudsplan
- Ja
- Opstalverzekering
- Ja
Foto's 57
© 2001-2025 funda
























































