
Omschrijving
Goudreinetstraat 77, Vruchtenbuurt
Luxe, royaal en zeer fraai gerenoveerd 5-kamer dubbel bovenhuis (ca. 100 m²) voorzien van lichte woon-/eetkamer met half open keuken, 3 slaapkamers, balkon en separate (fietsen)berging. EIGEN GROND.
Gelegen in de gezellige Vruchtenbuurt met op loopafstand van winkels aan de Vlierboom- en Appelstraat en het De Savornin Lohmanplein, alsmede openbaar vervoer, diverse scholen, sportfaciliteiten, strand, zee en duinen.
INDELING
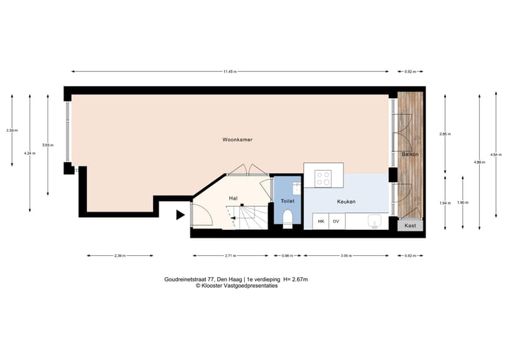
Via het typische ‘’Haags portiek’’ entree van het appartement op de 1e verdieping, hal voorzien van eiken houten vloer doorgelegd in de gehele woning, meterkast en verruimd modern toilet met fonteinmeubeltje.
Via zwart stalen deuren toegang tot de lichte, ruime en doorgebroken woon-/ eetkamer met luxe half open keuken voorzien van RVS-spoelbak met Quooker, inbouwapparatuur van het merk Siemens zoals een oven, combi-oven, koel-/ vriescombinatie (3-laden) en vaatwasser, kookeiland met BORA-systeem, beide zijn voorzien van een granieten aanrechtblad in marmerlook.
Via openslaande deuren en keukendeur toegang tot het zonnige balkon, gelegen over de gehele breedte op het noordwesten met nieuwe vloer en balkonkast.
2e VERDIEPING
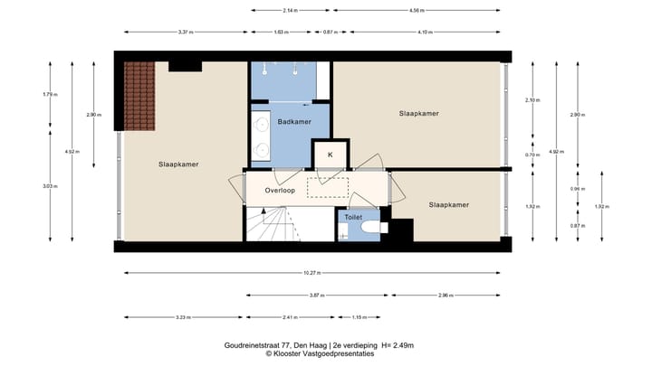
Overloop, 2e separaat modern toilet met fontein en vaste kast met wasmachine- aansluiting.
Ruime tussengelegen luxe badkamer voorzien van 2 inloop(stort)douches, dubbel wastafelmeubel en designradiator.
Lichte voorslaapkamer gelegen over de gehele breedte van de woning en twee achterslaapkamers, allen voorzien van een dakkapel.
Vanuit de Bosbesstraat toegang tot de separate fietsenberging, bereikbaar via afgesloten deur.
Voor de afmetingen van de kamers verwijzen wij u naar de plattegronden.
BIJZONDERHEDEN
Het appartement is gelegen op eigen grond.
Aanvaarding in overleg.
Rioolheffing 2024 € 184,75.
30/333ste en 1/333ste (berging) aandeel in de gemeenschap
Actieve Vereniging van Eigenaren, bijdrage € 105,01 per maand.
Elektra 10 groepen met aardlekschakelaar.
Verwarming middels c.v.-combiketel, merk Remeha Calenta, bouwjaar 2024.
Warmwatervoorziening middels c.v.-combiketel.
De onderhoudssituatie van het sanitair en de keuken is uitstekend.
De onderhoudssituatie binnen is uitstekend en buiten is goed.
Het gehele appartement is voorzien van kunststof kozijnen met HR++ glas.
Verkoper heeft de woning nooit zelf feitelijk gebruikt.
Koper is vrij in notariskeuze, echter wel in regio Haaglanden.
De lood- /asbest- en ouderdomsclausules zijn van toepassing.
Bouwjaar ca. 1936.
Woonoppervlakte ca. 100 m².
De inhoud van het appartement is ca. 365 m³.
Model NVM-koopakte van toepassing.
NABIJ
Winkels aan Vlierboom- en Appelstraat en het De Savornin Lohmanplein.
Bosjes van Pex, Landgoed Meer en Bos, duinen, strand en zee, Badplaats Kijkduin en Haven van Scheveningen en diverse restaurants.
Openbaar vervoer en uitvalswegen via Hubertustunnel en Westlandroute.
Nabij Europese en/of International School of The Hague, basisscholen en diverse sportfaciliteiten.
KADASTRALE INFORMATIE
Gemeente : Loosduinen
Sectie : I
Nummer : 6886
Appartementsindex : - 9 en -16 (berging)
De Meetinstructie is gebaseerd op de NEN2580. De Meetinstructie is bedoeld om een meer eenduidige manier van meten toe te passen voor het geven van een indicatie van de gebruiksoppervlakte. De Meetinstructie sluit verschillen in meetuitkomsten niet volledig uit, door bijvoorbeeld interpretatieverschillen,afrondingen of beperkingen bij het uitvoeren van de meting.
Interesse in dit huis? Schakel direct uw eigen NVM-aankoopmakelaar in.
Uw NVM-aankoopmakelaar komt op voor uw belang en bespaart u tijd, geld en zorgen.
Adressen van collega NVM-aankoopmakelaars in Haaglanden vindt u op Funda.
#####################################
Luxurious, spacious and very beautifully renovated 5-room double upper house (approx. 100 m²) with bright living/dining room with semi-open kitchen, 3 bedrooms, balcony and separate (bicycle) storage. FREEHOLD.
Located in the cozy Vruchtenbuurt, within walking distance of shops on Vlierboom- and Appelstraat and De Savornin Lohmanplein, as well as public transport, various schools, sports facilities, beach, sea and dunes.
LAYOUT
Via the typical ''Hague porch'' entrance to the apartment on the 1st floor, hall with oak wooden floor throughout the entire house, meter cupboard and spacious modern toilet with wash basin.
Through black steel doors access to the bright, spacious and open living/dining room with luxurious semi-open kitchen with stainless steel sink with Quooker, built-in appliances from the Siemens brand such as an oven, combi oven, fridge freezer (3 drawers) and dishwasher, cooking island with BORA system, both have a granite countertop in marble look.
Access to the sunny balcony via French doors and kitchen door, located over the entire width facing northwest with new floor and balcony cupboard.
SECOND FLOOR
Landing, 2nd separate modern toilet with wash basin and fixed cupboard with connection for the washing machine.
Spacious intermediate luxury bathroom with 2 walk-in showers, double washbasin and design radiator.
Bright front bedroom located across the entire width of the house and two rear bedrooms, all with a dormer window.
From Bosbesstraat access to the separate bicycle shed, accessible via a locked door.
- For the dimensions of the rooms please refer to the floor plans.
SPECIAL FEATURES
The property is freehold.
Acceptance in agreement.
Sewage charges 2024 € 184.75.
30/333th and 1/333th (storage) share in the community.
Active Owners Association, contribution € 105.01 monthly.
Electricity 10 groups with circuit breaker.
Central heating system, brand Remeha Calenta, model 2024.
Hot water supply by central heating system.
The condition of the bathroom and the kitchen is excellent.
The condition of the interior is excellent and the exterior good.
The apartment has synthetic window frames with HR++ glazing.
Seller has the apartment itself never actually used, therefore the non-occupancy clause applies.
The buyer is free in his choice of notary, but in the Haaglanden region.
The lead-/asbestos and age clauses will be applied.
Built in 1936.
Living surface approx. 100 m².
The volume of the apartment approx. 365 m³.
NVM model deed applicable.
NEAR
Shops at Vlierboom- and Appelstraat and De Savornin Lohmanplein.
Bosjes van Pex, Landgoed Meer en Bos, dunes, beach and sea, Boulevard of Kijkduin and Harbor of Scheveningen and various restaurants.
Public transport and main roads via Hubertustunnel and Westlandroute.
Close to the European and/or International School of The Hague, primary schools and various sports facilities.
The measurement instruction is based on NEN2580. The measurement instruction is intended to apply a more uniform way of measuring for giving an indication of the use surface. The measurement instruction can not completely close differences in measurement results, for example by differences in interpretation, rounding or limitations in the performance of the measurement.
Kenmerken
Overdracht
- Laatste vraagprijs
- € 549.000 kosten koper
- Vraagprijs per m²
- € 5.490
- Status
- Verkocht
- Bijdrage VvE
- € 105,01 per maand
Bouw
- Soort appartement
- Bovenwoning (dubbel bovenhuis)
- Soort bouw
- Bestaande bouw
- Bouwjaar
- 1936
- Soort dak
- Zadeldak bedekt met pannen
Oppervlakten en inhoud
- Gebruiksoppervlakten
- Wonen
- 100 m²
- Gebouwgebonden buitenruimte
- 4 m²
- Externe bergruimte
- 4 m²
- Inhoud
- 365 m³
Indeling
- Aantal kamers
- 5 kamers (3 slaapkamers)
- Aantal badkamers
- 1 badkamer en 2 aparte toiletten
- Badkamervoorzieningen
- Inloopdouche en wastafelmeubel
- Aantal woonlagen
- 2 woonlagen
- Gelegen op
- 2e woonlaag
Energie
- Energielabel
- C
- Isolatie
- Dubbel glas en HR-glas
- Verwarming
- Cv-ketel
- Warm water
- Cv-ketel
- Cv-ketel
- Remeha Calenta (gas gestookt combiketel uit 2024, eigendom)
Kadastrale gegevens
- LOOSDUINEN I 6886
- Kadastrale kaart
- Eigendomssituatie
- Volle eigendom
- LOOSDUINEN I 6886
- Kadastrale kaart
- Eigendomssituatie
- Volle eigendom
Buitenruimte
- Ligging
- Aan rustige weg en in woonwijk
- Balkon/dakterras
- Balkon aanwezig
Bergruimte
- Schuur/berging
- Aangebouwde stenen berging
Parkeergelegenheid
- Soort parkeergelegenheid
- Betaald parkeren en parkeervergunningen
VvE checklist
- Inschrijving KvK
- Ja
- Jaarlijkse vergadering
- Ja
- Periodieke bijdrage
- Ja (€ 105,01 per maand)
- Reservefonds aanwezig
- Ja
- Onderhoudsplan
- Ja
- Opstalverzekering
- Ja
Foto's 29
© 2001-2025 funda




























