
Omschrijving
RUIM 2-KAMER APPARTEMENT (BEL ETAGE) VAN CA. 74M2, IN KLASSIEK STADSPAND EN ZEER CENTRAAL GELEGEN T.O.V. WINKELS EN OPENBAAR VERVOER.
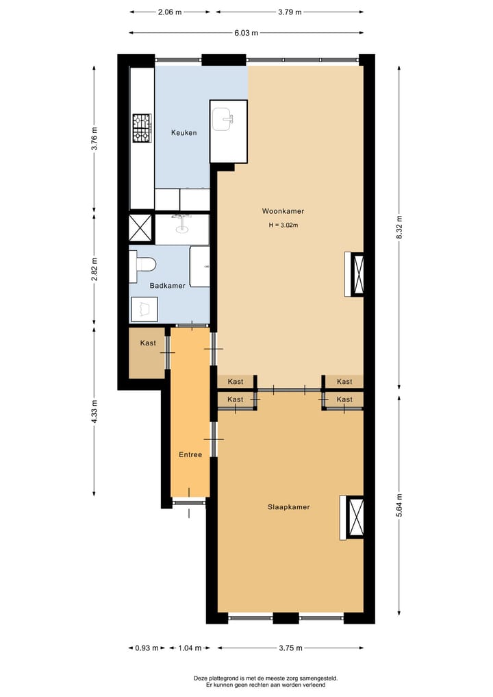
INDELING:
Entree, ruime gang met garderoberuimte, lichte voorkamer (thans in gebruik als slaapkamer) in verbinding met ruime, eveneens lichte, achterkamer middels suiteseparatie met schuifdeuren met glas in lood en vaste kasten. Aan de achterkamer grenst de halfopen, recentelijk vernieuwde keuken met diverse apparatuur. Ruime moderne badkamer met inloopdouche, wastafelmeubel en toilet.
LIGGING:
Dit mooie appartement is gelegen aan de rand van de wijk Duinoord en de Bomenbuurt. De Fahrenheitstraat en de Reinkenstraat, beide met een keur aan winkels, supermarkten en leuke lunchrooms op loopafstand.
In de directe omgeving zijn scholen, medische voorzieningen en goede openbaar vervoerverbindingen.
Uitstekende aansluiting op de uitvalswegen naar Rotterdam, Utrecht en Amsterdam.
BIJZONDERHEDEN:
- Eigen grond;
- Gunstig energielabel B;
- Actieve VvE, bijdrage € 87,75 per maand;
- 11/40 aandeel in de gemeenschap;
- Lichte woning;
- Geheel voorzien van dubbele beglazing;
- De originele suiteseparatie met schuifdeuren is bewaard gebleven;
- Rijksbeschermd stadsgezicht Duinoord;
- Ouderdoms-/materialenclausule van toepassing;
- verkoopvoorwaarden zijn van toepassing, op te vragen bij de verkopend makelaar.
INTERESSE? MAAK DAN SNEL EEN AFSPRAAK!
Ons advies is om bij het kopen van uw nieuwe woning uw eigen NVM makelaar mee te nemen.
TOELICHTINGSCLAUSULE NEN2580
De Meetinstructie is gebaseerd op de NEN2580. De Meetinstructie is bedoeld om een meer eenduidige manier van meten toe te passen voor het geven van een indicatie van de gebruiksoppervlakte. De Meetinstructie sluit verschillen in meetuitkomsten niet volledig uit, door bijvoorbeeld interpretatieverschillen, afrondingen of beperkingen bij het uitvoeren van de meting.
KOOPOVEREENKOMST PAS RECHTSGELDIG NA ONDERTEKENING
Een mondelinge overeenstemming tussen de particuliere verkoper en de particuliere koper is niet rechtsgeldig. Met andere woorden: er is geen koop. Er is pas sprake van een rechtsgeldige koop als de particuliere verkoper en de particuliere koper de koopovereenkomst hebben ondertekend. Dit vloeit voort uit artikel 7:2 Burgerlijk Wetboek. Een bevestiging van de mondelinge overeenstemming per e-mail of een toegestuurd concept van de koopovereenkomst wordt overigens niet gezien als een 'ondertekende koopovereenkomst'
“Deze informatie is door ons met de nodige zorgvuldigheid samengesteld. Onzerzijds wordt echter geen enkele aansprakelijkheid aanvaard voor enige onvolledigheid, onjuistheid of anderszins, dan wel de gevolgen daarvan. Alle opgegeven maten en oppervlakten zijn indicatief.”
Kenmerken
Overdracht
- Oorspronkelijke vraagprijs
- € 425.000 kosten koper
- Laatste vraagprijs
- € 400.000 kosten koper
- Vraagprijs per m²
- € 5.405
- Status
- Verkocht
- Bijdrage VvE
- € 87,75 per maand
Bouw
- Soort appartement
- Bovenwoning (bel-etage met open portiek)
- Soort bouw
- Bestaande bouw
- Bouwjaar
- 1906
- Specifiek
- Beschermd stads- of dorpsgezicht en gedeeltelijk gestoffeerd
Oppervlakten en inhoud
- Gebruiksoppervlakten
- Wonen
- 74 m²
- Inhoud
- 276 m³
Indeling
- Aantal kamers
- 2 kamers (1 slaapkamer)
- Aantal badkamers
- 1 badkamer
- Badkamervoorzieningen
- Douche, toilet, en wastafelmeubel
- Aantal woonlagen
- 3 woonlagen
- Gelegen op
- 2e woonlaag
Energie
- Energielabel
- B
- Isolatie
- Dubbel glas
- Verwarming
- Cv-ketel
- Warm water
- Cv-ketel
- Cv-ketel
- Vaillant (gas gestookt combiketel uit 2016, eigendom)
Kadastrale gegevens
- 'S-GRAVENHAGE N 7692
- Kadastrale kaart
- Eigendomssituatie
- Volle eigendom
- 'S-GRAVENHAGE N 7692
- Kadastrale kaart
- Eigendomssituatie
- Volle eigendom
Buitenruimte
- Ligging
- In woonwijk
Parkeergelegenheid
- Soort parkeergelegenheid
- Betaald parkeren en openbaar parkeren
VvE checklist
- Inschrijving KvK
- Nee
- Jaarlijkse vergadering
- Ja
- Periodieke bijdrage
- Ja (€ 87,75 per maand)
- Reservefonds aanwezig
- Ja
- Onderhoudsplan
- Nee
- Opstalverzekering
- Ja
Foto's 25
© 2001-2025 funda
























