
Omschrijving
Sfeervolle en zeer duurzame 3-kamer maisonnette met zonnig balkon, zonnepanelen en hoogwaardige afwerking in het groene Houtwijk
Ben je op zoek naar een instapklare woning op een rustige, groene én centrale locatie in Den Haag? Deze fraai gerenoveerde gasloze 3-kamer maisonnette (2021) in de geliefde wijk Houtwijk is absoluut een bezichtiging waard!
De woning is gelegen in een kindvriendelijke en groene omgeving, op loopafstand van tram 2 en 3, winkels en andere voorzieningen. Het strand van Kijkduin, recreatiegebieden Madestein en Ockenburgh zijn eenvoudig bereikbaar per fiets, binnen circa 10 minuten.
Dankzij de gunstige ligging nabij uitvalswegen en internationale scholen (zoals de International School of The Hague) is dit appartement perfect voor starters, stellen of kleine gezinnen die comfortabel willen wonen met alles binnen handbereik.
________________________________________
Indeling:
Via de afgesloten entree met brievenbussen en bellentableau bereik je via het trappenhuis de tweede verdieping. Daar bevindt zich de entree van het appartement aan de galerijzijde.
Binnenkomst in de hal met meterkast (12 groepen), toilet met fonteintje en trapopgang. De lichte en modern afgewerkte woonkamer is voorzien van een visgraatvloer (2021) in VTwonen-stijl en biedt toegang tot een zonnig balkon op het zuidoosten — ideaal voor je ochtendkoffie of borrel in de avondzon.
De in 2021 gerealiseerde open keuken in praktische L-opstelling is uitgerust met hoogwaardig inbouwapparatuur, waaronder:
• 4-pits inductieplaat(Bora) met geïntegreerde afzuiging
• Quooker (kokend waterkraan)
• Oven en combimagnetron
• Koelkast en vriezer
• Vaatwasser
• Kookeiland/bar in L-vorm
• 4 ruime opberglades
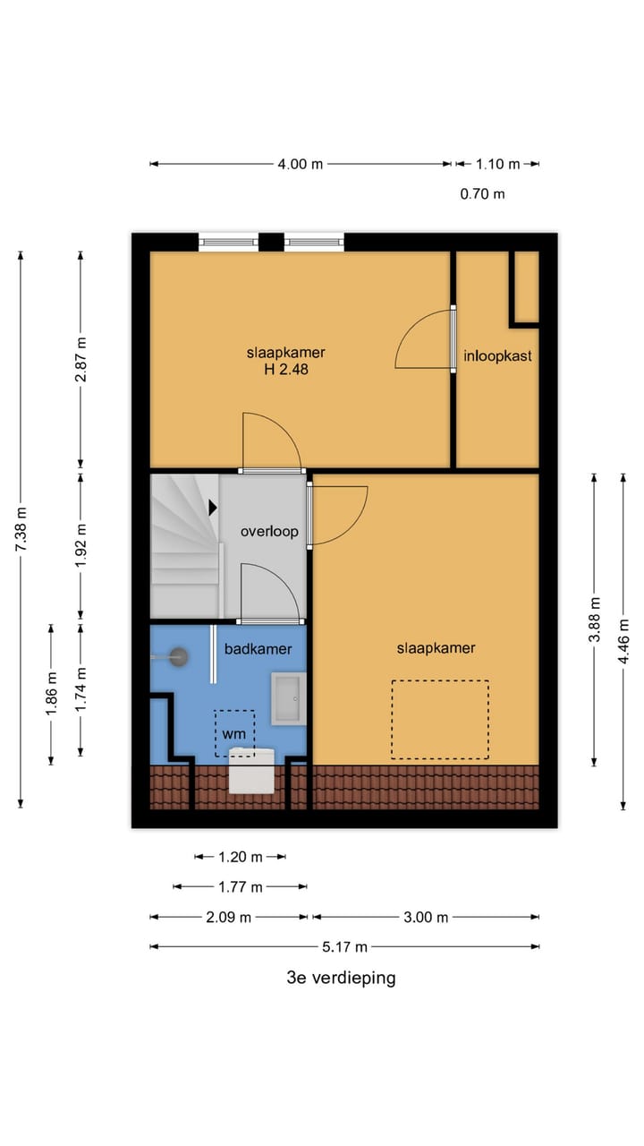
Op de bovenverdieping vind je twee goed bemeten slaapkamers. De master bedroom aan de voorzijde is voorzien van een Velux dakraam met uitzicht over het groen. De moderne badkamer (vernieuwd in 2020) beschikt over een inloop-regendouche, stijlvol wastafelmeubel en een aansluiting voor de wasmachine.
De tweede slaapkamer aan de achterzijde wordt momenteel gebruikt als werkkamer en biedt extra comfort dankzij een ruime bergruimte, ideaal als inloopkast.
________________________________________
Bijzonderheden:
• Woonoppervlakte ca. 71 m² (conform BBMI-meetrapport)
• Energielabel C
• 5 zonnepanelen (eigen bezit)
• Erfpacht is voortdurend tot december 2033, huidige canon € 1,13 per jaar (wordt niet geïnd)
• Actieve VvE, maandbijdrage € 183,99 ( €140 VvE + €43,99 Water + lening Zonnepanelen)
• Collectieve opstalverzekering via VvE
• Eigen (fietsen)berging op de begane grond
• Zonnig balkon op het zuidoosten
• Houten kozijnen met dubbel glas, deels HR++
• Moderne keuken (2021) met hoogwaardige apparatuur
• Moderne badkamer vernieuwd in 2020
• (Groot deel van de) inboedel ter overname mogelijk: o.a. bed met 4-seizoenendekbed, bank, barkrukken, was-droogcombinatie, tv-meubel, tv, vitrinekast, stoel, etc.
________________________________________
Kortom:
Een duurzaam, instapklaar en uitstekend onderhouden appartement op een fijne en groene locatie. Ideaal voor wie comfort zoekt met strand, stad en natuur binnen handbereik.
Interesse?
Neem snel contact met ons op voor een bezichtiging of schakel je eigen aankoopmakelaar in.
________________________________________
Charming and Highly Sustainable 2-Bedroom Maisonette with Sunny Balcony, Solar Panels, and High-End Finishes in Leafy Houtwijk
Are you looking for a turnkey home in a quiet, green, and central location in The Hague? This beautifully renovated and gas-free 2-bedroom maisonette (2021) in the popular Houtwijk neighborhood is definitely worth a visit!
The property is situated in a family-friendly and lush environment, within walking distance of tram lines 2 and 3, shops, and other amenities. The beach of Kijkduin, as well as the recreational areas of Madestein and Ockenburgh, are easily accessible by bike—just around 10 minutes.
Thanks to its convenient location near major roads and international schools (such as the International School of The Hague), this apartment is perfect for first-time buyers, couples, or small families seeking comfortable, sustainable living with everything within reach.
________________________________________
Layout
Through the secured main entrance with mailboxes and intercom system, you reach the second floor via the staircase, where the apartment entrance is located on the gallery side.
Upon entering, there is a hallway with a modern electrical panel (12 circuits), a toilet with washbasin, and stairs leading to the upper floor. The bright, stylishly finished living room features a herringbone floor (2021) in VTwonen style and offers access to a sunny southeast-facing balcony — ideal for your morning coffee or an evening drink in the sun.
The open-plan kitchen, newly installed in 2021, is designed in a practical L-shape and equipped with high-end built-in appliances, including:
• 4-zone induction cooktop (Bora) with integrated extractor
• Quooker boiling water tap
• Oven and combination microwave
• Fridge and freezer
• Dishwasher
• L-shaped island/bar
• 4 spacious drawers
Upstairs you'll find two well-sized bedrooms. The master bedroom at the front features a Velux skylight with a pleasant green view. The modern bathroom, renovated in 2020, is fitted with a walk-in rain shower, elegant vanity unit, and a washing machine connection.
The second bedroom at the rear is currently used as a home office and offers additional comfort with a generous storage area — perfect for a walk-in wardrobe.
________________________________________
Key Features:
• Living area approx. 71 m² (according to BBMI measurement report)
• Energy label C
• 5 solar panels (owned)
• Fully gas-free: all-electric heating and cooking
• Leasehold until December 2033, current annual ground rent €1.13 (not collected)
• Active Homeowners’ Association (VvE), monthly contribution €183.99 ( €140 VvE + water and loan solar panels)
• Collective building insurance via VvE
• Private (bike) storage on the ground floor
• Sunny southeast-facing balcony
• Wooden window frames with double glazing (partially HR++)
• Modern kitchen (2021) with premium appliances
• Modern bathroom renovated in 2020
• Large part of the furniture available for acquisition: including bed with 4-season duvet, sofa, bar stools, washer-dryer, TV unit, TV, display cabinet, chair, etc.
________________________________________
In short:
A sustainable, move-in ready, and well-maintained apartment in a lovely green neighborhood. Perfect for those who value comfort and convenience with the beach, city, and nature all just minutes away.
Interested?
Contact us today to schedule a viewing — or bring your own purchasing agent along.
Kenmerken
Overdracht
- Laatste vraagprijs
- € 289.000 kosten koper
- Vraagprijs per m²
- € 4.070
- Status
- Verkocht
- Bijdrage VvE
- € 140,00 per maand
Bouw
- Soort appartement
- Maisonnette (appartement)
- Soort bouw
- Bestaande bouw
- Bouwjaar
- 1985
- Specifiek
- Gestoffeerd
- Soort dak
- Plat dak bedekt met bitumineuze dakbedekking
Oppervlakten en inhoud
- Gebruiksoppervlakten
- Wonen
- 71 m²
- Gebouwgebonden buitenruimte
- 8 m²
- Externe bergruimte
- 5 m²
- Inhoud
- 218 m³
Indeling
- Aantal kamers
- 3 kamers (2 slaapkamers)
- Aantal badkamers
- 1 badkamer en 1 apart toilet
- Badkamervoorzieningen
- Douche en wastafelmeubel
- Aantal woonlagen
- 2 woonlagen
- Voorzieningen
- Natuurlijke ventilatie en TV kabel
- Gelegen op
- 2e woonlaag
Energie
- Energielabel
- C
- Isolatie
- Dubbel glas en HR-glas
- Verwarming
- Elektrische verwarming
- Warm water
- Elektrische boiler
Kadastrale gegevens
- 'S-GRAVENHAGE M 3391
- Kadastrale kaart
- Eigendomssituatie
- Gemeentelijke erfpacht
Buitenruimte
- Ligging
- Aan rustige weg en in woonwijk
- Balkon/dakterras
- Balkon aanwezig
Bergruimte
- Schuur/berging
- Inpandig
- Voorzieningen
- Elektra
Parkeergelegenheid
- Soort parkeergelegenheid
- Openbaar parkeren
VvE checklist
- Inschrijving KvK
- Ja
- Jaarlijkse vergadering
- Ja
- Periodieke bijdrage
- Ja (€ 140,00 per maand)
- Reservefonds aanwezig
- Ja
- Onderhoudsplan
- Ja
- Opstalverzekering
- Ja
Foto's 47
© 2001-2025 funda














































