
Omschrijving
Mozartlaan 172 8e etage
Dit volledig gerenoveerde appartement aan de Mozartlaan combineert modern comfort met een uitstekende ligging in een rustige en groene buurt. Perfect voor degenen die op zoek zijn naar een instapklare woning!
Gemeenschappelijke hal met brievenbussen, bellentableau en intercom, tussenhal met trappenhuis en liften.
Trap of lift naar 8e etage.
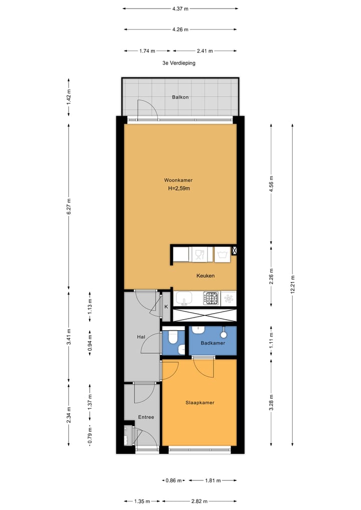
Indeling:
Entree woning, vestibule, gang met vaste kast en toilet.
Lichte woon/eetkamer (ca. 4.45 x 7.55m) en deur naar het balkon.
Nieuwe keuken met inductie kookplaat, vaatwasser, koel/vrieskast en combi oven.
Nieuwe badkamer (ca. 1.80 x 1.1m) voorzien van wastafel en douche.
Slaapkamer (ca. 3.3 x 2.8m) aan de voorzijde.
Zeer zonnig balkon (ca. 4.45 x 1.38m) over de gehele breedte van de woning.
Wat maakt dit appartement bijzonder?
51 m², praktisch ingedeeld met een lichte woonkamer en een aparte slaapkamer.
Moderne afwerking, inclusief een strakke keuken met inbouwapparatuur en een luxe badkamer.
Nieuwe laminaat vloer.
Gelegen in de wijk Waldeck, vlakbij winkels, openbaar vervoer en op fietsafstand van strand en duinen.
Ruim balkon met vrij uitzicht en veel natuurlijk lichtinval.
Parkeren op eigen terrein.
- eigen grond
- nieuwe groepenkast
- C.V. middels blokverwarming met meters
- warmwater middels eigen boiler
- actieve V.v.E € 213,- per maand.
- Notaris Caminada Rijswijk projectnotaris
Kenmerken
Overdracht
- Laatste vraagprijs
- € 245.000 kosten koper
- Vraagprijs per m²
- € 4.712
- Status
- Verkocht
- Bijdrage VvE
- € 213,00 per maand
Bouw
- Soort appartement
- Galerijflat (appartement)
- Soort bouw
- Bestaande bouw
- Bouwjaar
- 1966
Oppervlakten en inhoud
- Gebruiksoppervlakten
- Wonen
- 52 m²
- Gebouwgebonden buitenruimte
- 6 m²
- Externe bergruimte
- 4 m²
- Inhoud
- 165 m³
Indeling
- Aantal kamers
- 2 kamers (1 slaapkamer)
- Aantal woonlagen
- 1 woonlaag
Energie
- Energielabel
- C
- Verwarming
- Blokverwarming
- Warm water
- Geiser
Kadastrale gegevens
- LOOSDUINEN H 6050
- Kadastrale kaart
- Eigendomssituatie
- Volle eigendom
VvE checklist
- Inschrijving KvK
- Ja
- Jaarlijkse vergadering
- Ja
- Periodieke bijdrage
- Ja (€ 213,00 per maand)
- Reservefonds aanwezig
- Ja
- Onderhoudsplan
- Ja
- Opstalverzekering
- Ja
Foto's 30
© 2001-2025 funda





























