
Omschrijving
Piet Heinplein 104, 2518 BV, Den Haag (Zeeheldenkwartier)
Optimaal genieten van het Haagse stadsleven kan vanuit dit comfortabele 2-kamer appartement. Winkels, restaurants, musea, openbaar vervoer, gezellige stadspleinen en parken zijn op korte loopafstand. Het appartement ligt aan de Anna Paulownastraat. In de onderbouw is een privé berging. In het complex zijn parkeerplaatsen te huur (indien beschikbaar).
Indeling:
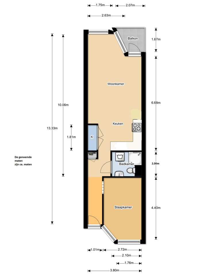
Centrale entree, hal met lift.
Entree appartement: ruime gang met meterkast. Lichte woon-eetkamer (ca. 6.70x3.80) met zonnig balkon (ca. 2.00x1.60). Open keuken met apparatuur. Slaapkamer (ca. 4.60x2.70). Moderne badkamer met douche, vaste wastafel, wc en aansluiting wasmachine/droger.
Bijzonderheden:
- eigen grond
- actieve VvE. Bijdrage € 172,- per maand INCLUSIEF gas, water, opstal verzekering, en gemeenschappelijk onderhoud
- voorschot stookkosten € 95,- per maand
- oplevering in overleg
- woonoppervlakte ca. 51m2
- notariskeuze ligt bij koper, mits een Haags notariskantoor
- ouderdoms- en materialenclausule is van toepassing
- elektra 5 groepen
- niet-bewoond clausule van toepassing
Interesse in dit huis? Schakel direct uw eigen NVM-aankoopmakelaar in.
Uw NVM-aankoopmakelaar komt op voor uw belang en bespaart u tijd, geld en zorgen.
Adressen van collega NVM-aankoopmakelaars in Haaglanden vindt u op Funda.
Uw eigen woning nog niet verkocht? Bel ons kantoor voor een vrijblijvend persoonlijk verkoopadvies waarin wij de mogelijkheden kunnen bespreken.
Deze informatie is door ons met de nodige zorgvuldigheid samengesteld. Onzerzijds wordt echter geen enkele aansprakelijkheid aanvaard voor enige onvolledigheid, onjuistheid of anderszins, dan wel de gevolgen daarvan. Alle opgegeven maten en oppervlakten zijn indicatief.
English summary;
On the side of the Anna Paulownastraat, very well maintained 2 room apartment on the 4th floor with storage and view over the Royal Stables. Within walking distance from the city center, shops, restaurants and public transport.
Lay-out:
Central entrance with elevator. Entrance apartment: spacious hall with utility closet. Light living/dining room (approx. 6.70x3.80m) with sunny balcony (approx. 2.00x1.60m). Open kitchen with appliances. Bedroom (approx. 4.60x2.70m). Modern bathroom with shower, wash basin, toilet en connection for washing machine/dryer.
- Active Homeowners Association (VVE) € 267,- per month INCLUDING gas, water, heating, outside maintanence and buidlinginsurance
- Freehold
Kenmerken
Overdracht
- Laatste vraagprijs
- € 295.000 kosten koper
- Vraagprijs per m²
- € 5.784
- Status
- Verkocht
- Bijdrage VvE
- € 172,00 per maand
Bouw
- Soort appartement
- Galerijflat (appartement)
- Soort bouw
- Bestaande bouw
- Bouwjaar
- 1980
- Specifiek
- Beschermd stads- of dorpsgezicht
- Soort dak
- Plat dak bedekt met bitumineuze dakbedekking
Oppervlakten en inhoud
- Gebruiksoppervlakten
- Wonen
- 51 m²
- Gebouwgebonden buitenruimte
- 3 m²
- Externe bergruimte
- 5 m²
- Inhoud
- 140 m³
Indeling
- Aantal kamers
- 2 kamers (1 slaapkamer)
- Aantal badkamers
- 1 badkamer
- Badkamervoorzieningen
- Douche, toilet, en wastafel
- Aantal woonlagen
- 1 woonlaag
- Voorzieningen
- Natuurlijke ventilatie, TV kabel, en zonnecollectoren
- Gelegen op
- 4e woonlaag
Energie
- Energielabel
- B
- Verwarming
- Blokverwarming
- Warm water
- Centrale voorziening en zonnecollectoren
Kadastrale gegevens
- 'S-GRAVENHAGE O 8115
- Kadastrale kaart
- Eigendomssituatie
- Volle eigendom
Buitenruimte
- Ligging
- Aan rustige weg, aan vaarwater, in centrum, in woonwijk en vrij uitzicht
- Balkon/dakterras
- Balkon aanwezig
Bergruimte
- Schuur/berging
- Inpandig
- Voorzieningen
- Elektra
Parkeergelegenheid
- Soort parkeergelegenheid
- Betaald parkeren, openbaar parkeren en parkeervergunningen
VvE checklist
- Inschrijving KvK
- Ja
- Jaarlijkse vergadering
- Ja
- Periodieke bijdrage
- Ja (€ 172,00 per maand)
- Reservefonds aanwezig
- Ja
- Onderhoudsplan
- Ja
- Opstalverzekering
- Ja
Foto's 22
© 2001-2025 funda





















