
Omschrijving
In het mooie en groene Benoordenhout gelegen 3-kamer topappartement met 1 of 2 slaapkamers (77 m2 woonoppervlak). Het appartement verkeert in gedateerde staat en beschikt over een balkon over de volle breedte op het zuidoosten. De woning is fraai gelegen en aan de voorzijde heeft men vanuit het appartement vrij uitzicht over een plantsoen met veel groen. Ook is er nog een eigen berging in de kelder.
Op loop- en fietsafstand zijn diverse voorzieningen, zoals de winkels aan de Van Hoytemastraat, een buurtsuper en winkels aan het Willem Royaardsplein. Ook diverse parken/landgoederen zoals Landgoed Clingendael, Arendsdorp, Oostduin en het Sint Hubertuspark en de uitvalswegen en openbaar vervoer bevinden zich nabij. Op korte afstand van het levendige centrum van Den Haag met de diverse horeca, winkels en musea.
Indeling:
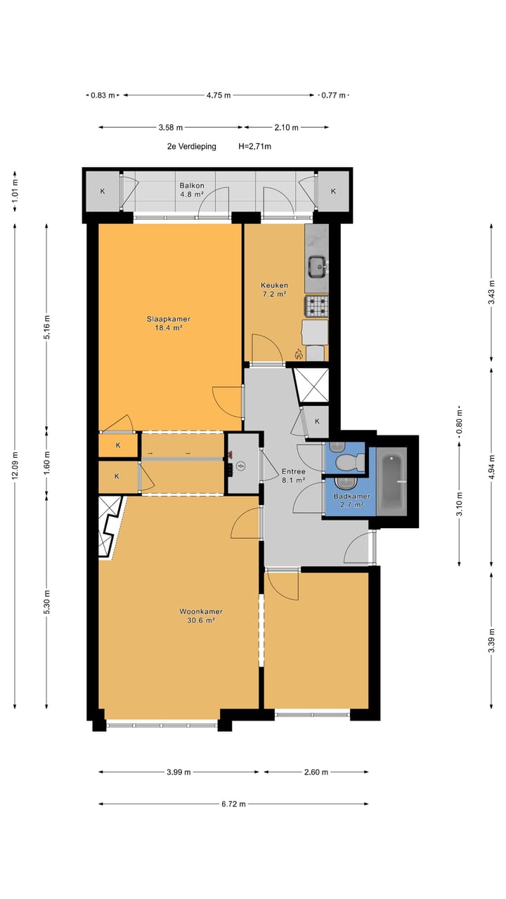
Gesloten entree op straatniveau, trap naar de 2e (top)verdieping, entree, gang met visgraat parket, meterkast (2 stoppen zonder aardlekschakelaar), gedateerde badkamer met ligbad en wastafel, apart toilet, garderobekast, oorspronkelijke keuken met wasmachineaansluiting, Vaillant combiketel (d.d. 1996) en deur naar balkon met 2 balkonkasten, achterslaapkamer met enkele deur naar balkon, suiteseparatie met schuifdeuren naar woonkamer, gemetselde schouw, toog naar voorzijkamer.
Berging in de kelder.
Aanvullende informatie:
- eigen grond
- 77 m2 gebruiksoppervlakte
- achter v.v. houten kozijnen met enkel glas, voorzijde heeft aluminium kozijnen met dubbel glas
- energielabel E
- actieve VvE bijdrage € 134,-- per maand, opstalverzekering, MJOP
- 2 slaapkamers, 1 badkamer, 1 balkon en privéberging
- oplevering kan snel, de woning staat leeg
- voldoende parkeergelegenheid, middels vergunning of betaling
- een ouderdoms- en materialenclausulen en verkoper niet bewoningsclausule zullen worden opgenomen in de NVM-koopovereenkomst
Kenmerken
Overdracht
- Laatste vraagprijs
- € 385.000 kosten koper
- Vraagprijs per m²
- € 5.000
- Status
- Verkocht
- Bijdrage VvE
- € 134,00 per maand
Bouw
- Soort appartement
- Portiekflat (appartement)
- Soort bouw
- Bestaande bouw
- Bouwjaar
- 1956
- Specifiek
- Beschermd stads- of dorpsgezicht
Oppervlakten en inhoud
- Gebruiksoppervlakten
- Wonen
- 77 m²
- Overige inpandige ruimte
- 2 m²
- Gebouwgebonden buitenruimte
- 5 m²
- Externe bergruimte
- 7 m²
- Inhoud
- 263 m³
Indeling
- Aantal kamers
- 3 kamers (1 slaapkamer)
- Aantal badkamers
- 1 badkamer en 1 apart toilet
- Badkamervoorzieningen
- Ligbad en wastafel
- Aantal woonlagen
- 1 woonlaag
- Gelegen op
- 3e woonlaag
Energie
- Energielabel
- E
- Isolatie
- Gedeeltelijk dubbel glas
- Verwarming
- Cv-ketel
- Warm water
- Cv-ketel
- Cv-ketel
- Gas gestookt combiketel, eigendom
Kadastrale gegevens
- 'S-GRAVENHAGE X 4701
- Kadastrale kaart
- Eigendomssituatie
- Volle eigendom
Buitenruimte
- Ligging
- Aan rustige weg, in bosrijke omgeving, in woonwijk en vrij uitzicht
- Balkon/dakterras
- Balkon aanwezig
Bergruimte
- Schuur/berging
- Inpandig
Parkeergelegenheid
- Soort parkeergelegenheid
- Betaald parkeren en parkeervergunningen
VvE checklist
- Inschrijving KvK
- Ja
- Jaarlijkse vergadering
- Ja
- Periodieke bijdrage
- Ja (€ 134,00 per maand)
- Reservefonds aanwezig
- Ja
- Onderhoudsplan
- Ja
- Opstalverzekering
- Ja
Foto's 17
© 2001-2025 funda
















