
Omschrijving
Rustenburg / Oostbroek. Royaal 4 kamer appartement (74m²) op de 1e etage met vrij uitzicht over de Soestdijksekade en op het Zuiderpark. Deze ruime woning is o.a. voorzien van een riante woonkamer met veel lichtinval, moderne keuken met inbouwapparatuur, 2 grote slaapkamers en een keurige badkamer. Bovendien is de achterzijde voorzien van kunststof kozijnen met dubbel glas, de Vereniging van Eigenaren actief met een meerjarenonderhoudsplan en de erfpacht eeuwigdurend afgekocht!
Gunstige ligging t.o.v. winkels (Apeldoornselaan / Dierenselaan en winkelcentrum Leyenburg), openbaar vervoer, scholen en het Zuiderpark.
Indeling:
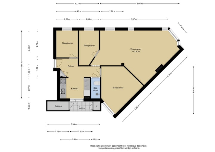
Woningentree op de 1e etage via open portiek; hal met meterkast; ruime centrale hal; woonkamer ca. 10.15x3.51/4.92 met veel lichtinval; half open keuken ca. 3.01x2.01 voorzien van 4-pits gaskookplaat, afzuigkap, koelkast, vriezer, vaatwasser en toegang tot het balkon aan de achterzijde; 1e slaapkamer aan de voorzijde ca. 4.05x3.5; 2 slaapkamers aan de voorzijde ca. 2.20s2.73 en 2.03x2.73; wit betegelde badkamer ca. 0.95x2.7 met douche en toilet;
Voor uitgebreide maatvoering verwijzen wij u naar de plattegrond
Bijzonderheden:
- Verwarming via cv-ketel
- Volledig voorzien van kozijnen met dubbel glas
- Woonoppervlakte ca. 74 m²
- Actieve VvE: bijdrage € 100,- per maand
- Meerjarenonderhoudsplan is beschikbaar
- Erfpacht is eeuwigdurend afgekocht
- In verband met het bouwjaar van de woning zal ongeacht de kwaliteit van de woning in de NVM koopovereenkomst een ouderdomsclausule worden opgenomen
- Oplevering per direct
Deze informatie is door ons met de nodige zorgvuldigheid samengesteld. Onzerzijds wordt echter geen enkele aansprakelijkheid aanvaard voor enige onvolledigheid, onjuistheid of anderszins, dan wel de gevolgen daarvan. Alle opgegeven maten en oppervlakten zijn indicatief.
Interesse in dit huis? Schakel direct uw eigen NVM-aankoopmakelaar in.
Uw NVM-aankoopmakelaar komt op voor uw belang en bespaart u tijd, geld en zorgen.
Adressen van collega NVM-aankoopmakelaars in Haaglanden vindt u op Funda.
Bij de heruitgifte d.d. 16-10-1995 is de erfpachtcanon eeuwigdurend afgekocht. Dit is op 24-5-2004 notarieel vastgelegd.
Kenmerken
Overdracht
- Laatste vraagprijs
- € 249.500 kosten koper
- Vraagprijs per m²
- € 3.372
- Status
- Verkocht
- Bijdrage VvE
- € 100,00 per maand
Bouw
- Soort appartement
- Bovenwoning (appartement)
- Soort bouw
- Bestaande bouw
- Bouwjaar
- 1930
Oppervlakten en inhoud
- Gebruiksoppervlakten
- Wonen
- 74 m²
- Gebouwgebonden buitenruimte
- 5 m²
- Inhoud
- 276 m³
Indeling
- Aantal kamers
- 4 kamers (3 slaapkamers)
- Aantal badkamers
- 1 badkamer
- Badkamervoorzieningen
- Douche en toilet
- Aantal woonlagen
- 1 woonlaag
- Gelegen op
- 2e woonlaag
Energie
- Energielabel
- Isolatie
- Dubbel glas
- Verwarming
- Cv-ketel
- Warm water
- Cv-ketel
Kadastrale gegevens
- 'S-GRAVENHAGE AL 4852
- Kadastrale kaart
- Eigendomssituatie
- Gemeentelijke erfpacht
- Lasten
- Eeuwigdurend afgekocht
Buitenruimte
- Ligging
- Aan park, aan rustige weg, aan vaarwater, aan water en vrij uitzicht
Parkeergelegenheid
- Soort parkeergelegenheid
- Betaald parkeren, openbaar parkeren en parkeervergunningen
VvE checklist
- Inschrijving KvK
- Ja
- Jaarlijkse vergadering
- Ja
- Periodieke bijdrage
- Ja (€ 100,00 per maand)
- Reservefonds aanwezig
- Ja
- Onderhoudsplan
- Ja
- Opstalverzekering
- Ja
Foto's 36
© 2001-2026 funda



































