
Omschrijving
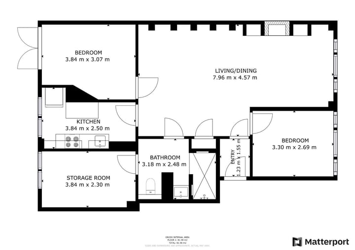
Gelegen in Den Haag ligt dit prachtige appartement aan de Troelstrakade. Het appartement heeft een woonoppervlakte van 76 m2 en is gebouwd in 1935.
Uniek wonen in Den Haag. Dat kan goed in deze buurt. Troelstrakade 363 is gelegen in de buurt Moerwijk-Noord. Dit is een kindvriendelijke buurt met relatief veel gezinnen. De buurt heeft naar verhouding veel jonge inwoners van tussen de 25 en 44 jaar. Verder is het een betrekkelijk rustige buurt gekeken naar de bevolkingsdichtheid.
De woning is redelijk tot goed bereikbaar met veel voorzieningen in de buurt. Gesitueerd op fietsafstand van het centrum van Den Haag, loopafstand van een supermarkt. Daarnaast is de dichtstbijzijnde uitvalsweg in de nabije omgeving op slechts 7 minuten rijden.
Wat u verder wilt weten;
* Woonoppervlakte netto 76m2
* Energielabel G
* Actieve VvE € 118,06 per maand
* Gelegen op erfpachtgrond; € 126,06 jaarlijkse canon (fiscaal aftrekbaar)
* Grondwaarde € 10.450,-
* Bouwjaar 1935
Kenmerken
Overdracht
- Laatste vraagprijs
- € 280.000 kosten koper
- Vraagprijs per m²
- € 3.684
- Status
- Verkocht
- Bijdrage VvE
- € 118,06 per maand
Bouw
- Soort appartement
- Portiekflat (appartement)
- Soort bouw
- Bestaande bouw
- Bouwjaar
- 1935
Oppervlakten en inhoud
- Gebruiksoppervlakten
- Wonen
- 76 m²
- Inhoud
- 245 m³
Indeling
- Aantal kamers
- 4 kamers (3 slaapkamers)
- Aantal badkamers
- 1 badkamer
- Badkamervoorzieningen
- Douche en toilet
- Aantal woonlagen
- 1 woonlaag
- Gelegen op
- 5e woonlaag
Energie
- Energielabel
- G
- Verwarming
- Cv-ketel
Kadastrale gegevens
- DEN HAAG AC 2660
- Kadastrale kaart
- Eigendomssituatie
- Gemeentelijke erfpacht
- Lasten
- € 126,06 per jaar
Buitenruimte
- Ligging
- Aan drukke weg
- Balkon/dakterras
- Balkon aanwezig
Parkeergelegenheid
- Soort parkeergelegenheid
- Betaald parkeren en openbaar parkeren
VvE checklist
- Inschrijving KvK
- Ja
- Jaarlijkse vergadering
- Nee
- Periodieke bijdrage
- Ja (€ 118,06 per maand)
- Reservefonds aanwezig
- Nee
- Onderhoudsplan
- Nee
- Opstalverzekering
- Ja
Foto's 17
© 2001-2025 funda
















