
Omschrijving
In het levendige en populaire Valkenboskwartier gelegen lichte en zeer ruime (ca. 170 m²) 7/8 kamer bovenwoning op de 1e, 2e en 3e (top)etage met 5 slaapkamers, 2 badkamers, voor-, achterbalkon en dakterras gelegen op het zuidoosten. De woning is in 2019 volledig gerenoveerd en in 2022 is de dakopbouw gerealiseerd. Energielabel B!
De woning is gelegen op eigen grond en bevindt zich op loopafstand van diverse populaire eetcafés en winkelstraten zoals de Fahrenheitstraat, Weimarstraat en de Reinkenstraat. Uitstekende verbinding ten opzichte van het openbaarvervoer naar Den Haag CS, Den Haag HS en het strand van Scheveningen. Tevens op fietsafstand van de jachthaven van Scheveningen en het centrum van Den Haag.
(see English below)
Indeling:
entree op straatniveau: hal met meterkaste en trap naar de
1e etage:
overloop met modern toilet en fonteintje en berging met wasmachineaansluiting en c.v. opstelplaats
riant L- vormige en doorgebroken woon-/eetkamer met erker, visgraten eikenvloer en
modernen open keuken met spoeleiland, vaatwasser (2024), 5-pits gaskookplaat, wasemkap,
koel-/vriescombinatie, oven en combi-/oven ca. 1307 x 590/369
voorzijkamer ca. 259 x 206 momenteel in gebruik als garderobe en bergruimte
trap naar
2e etage:
overloop met modern toilet met fonteintje
ruime voorkamer ca. 431 x 271 met voorbalkon en inloopkast ca. 388 x 198
moderne badkamer met dubbele inloopdouche, separaat ligbad en wastafelmeubel ca. 373 x 231
achterzijkamer ca. 461 x 198
achterkamer ca. 391 x 373 met openslaande deuren naar achterbalkon ca. 373 x 169
trap naar de
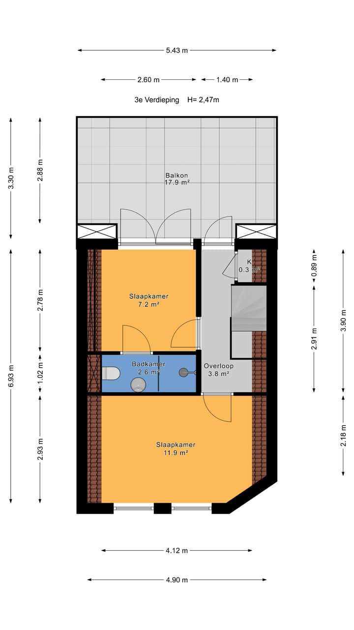
3e (top)etage:
overloop met kast met mechanische ventilatie
ruime voorkamer ca. 412 x 293 met airconditioning
achterkamer ca. 278 x 260 met luxe badkamer met inloopdouche, toilet en wastafel ca. 260 x 102
openslaande deuren naar zonnig dakterras ca. 543 x 330
Bijzonderheden:
- aantrekkelijk gelegen ruim en licht 3-laags appartement met 5 slaapkamers, 2 badkamers, voor- en achterbalkon en zonnig dakterras (ZO)
- de woning is in 2019 volledig gerenoveerd en in 2022 is de dakopbouw gerealiseerd
- bouwjaar 1908
- woonoppervlakte ca. 170 m²
- energielabel B
- kunststof kozijnen met dubbele beglazing
- alarm- en tado verwarmingssysteem aanwezig
- c.v. gas met warmwatervoorziening (Intergas 2018) en airconditioning (2022)
- elektra 10 groepen met aardlekschakelaar
- Rijks beschermd stadsgezicht
- Vereniging van Eigenaren is actief, bijdrage is € 130,- per maand, inclusief opstalverzekering
- eigen grond
- de zgn. “ouderdoms- en asbestclausules” zullen in de koopakte worden opgenomen
- de aanbiedingsvoorwaarden van dit kantoor zijn van toepassing
Wij verzoeken u vriendelijk bezichtigingsaanvragen online in te dienen via onze website, Funda of per e-mail.
--------------------------------------------------------------------------------------------------------------------------
In the lively and popular Valkenboskwartier situated bright and very spacious (approx. 170 m²) 7/8-room upper apartment located over the 1st, 2nd, and 3rd (top)floor featuring 5 bedrooms, 2 bathrooms, front and rear balconies, and a southeast-facing sunny rooftop terrace. The property was fully renovated in 2019, and a roof extension was completed in 2022. Energy label B!
The apartment is situated on freehold land and is within walking distance of various popular cafés and shopping streets such as Fahrenheitstraat, Weimarstraat, and Reinkenstraat. Excellent public transport connections provide easy access to Den Haag Central Station, Den Haag HS, and the beach at Scheveningen. Also within cycling distance of the Scheveningen marina and The Hague city centre.
Layout:
Entrance at street level: hallway with meter cupboard and stairs to the
1st Floor:
Landing with modern toilet and small sink, and storage room with washing machine connection and central heating unit
Spacious L-shaped open-plan living and dining room with bay window, herringbone oak flooring, and
Modern open kitchen with rinsing island, dishwasher (2024), 5-burner gas stove, extractor hood, fridge/freezer combination, oven, and combi/oven approx. 1307 x 590/369
Front side room approx. 259 x 206 currently used as wardrobe and storage
Stairs to the
2nd Floor:
Landing with modern toilet and small sink
Spacious front bedroom approx. 431 x 271 with front balcony and walk-in closet approx. 388 x 198
Modern bathroom with double walk-in shower, bathtub, and double washbasin approx. 373 x 231
Rear side bedroom approx. 461 x 198
Rear bedroom approx. 391 x 373 with French doors to the rear balcony approx. 373 x 169
Stairs to the
3rd (top) Floor:
Landing with cupboard housing mechanical ventilation
Spacious front bedroom approx. 412 x 293 with air conditioning
Rear bedroom approx. 278 x 260 with luxurious en-suite bathroom featuring walk-in shower, toilet, and washbasin approx. 260 x 102
French doors leading to the sunny rooftop terrace approx. 543 x 330
Details:
- Attractively located, spacious and bright 3-level apartment with 5 bedrooms, 2 bathrooms, front and rear balconies, and a sunny rooftop terrace (SE)
- Fully renovated in 2019, with roof extension completed in 2022
- Year of construction: 1908
- Living area: approx. 170 m²
- Energy label: B
- Plastic window frames with double glazing
- Equipped with alarm and Tado heating system
- Gas central heating with hot water supply (Intergas 2018) and air conditioning (2022)
- Electrical system: 10 circuits with residual-current device
- Located in a nationally protected cityscape
- Active Homeowners Association, contribution € 130 per month including building insurance
- Freehold land
- The so-called “age” and “asbestos” clauses will be included in the deed of sale
- The offer conditions of our office apply.
If you are interested in this property, please contact your own NVM estate agent. Your NVM estate agent will look after your interests and will save you time, money and concerns.
Contact details of NVM estate agents in The Hague area are listed on Funda.
Kenmerken
Overdracht
- Laatste vraagprijs
- € 775.000 kosten koper
- Vraagprijs per m²
- € 4.559
- Status
- Verkocht
- Bijdrage VvE
- € 130,00 per maand
Bouw
- Soort appartement
- Bovenwoning (appartement)
- Soort bouw
- Bestaande bouw
- Bouwjaar
- 1908
- Specifiek
- Beschermd stads- of dorpsgezicht
- Soort dak
- Samengesteld dak bedekt met bitumineuze dakbedekking en pannen
Oppervlakten en inhoud
- Gebruiksoppervlakten
- Wonen
- 170 m²
- Gebouwgebonden buitenruimte
- 26 m²
- Inhoud
- 605 m³
Indeling
- Aantal kamers
- 8 kamers (5 slaapkamers)
- Aantal badkamers
- 2 badkamers en 2 aparte toiletten
- Badkamervoorzieningen
- Dubbele wastafel, 2 inloopdouches, ligbad, wastafelmeubel, en toilet
- Aantal woonlagen
- 3 woonlagen
- Voorzieningen
- Airconditioning, alarminstallatie, mechanische ventilatie, en TV kabel
- Gelegen op
- 1e woonlaag
Energie
- Energielabel
- B
- Isolatie
- Dakisolatie en dubbel glas
- Verwarming
- Cv-ketel
- Warm water
- Cv-ketel
- Cv-ketel
- Intergas (gas gestookt combiketel uit 2018, eigendom)
Kadastrale gegevens
- 'S-GRAVENHAGE AM 7516
- Kadastrale kaart
- Eigendomssituatie
- Volle eigendom
Buitenruimte
- Ligging
- In woonwijk en vrij uitzicht
- Tuin
- Zonneterras
- Zonneterras
- 18 m² (3,30 meter diep en 5,43 meter breed)
- Ligging tuin
- Gelegen op het zuidoosten
- Balkon/dakterras
- Balkon aanwezig
Parkeergelegenheid
- Soort parkeergelegenheid
- Betaald parkeren en parkeervergunningen
VvE checklist
- Inschrijving KvK
- Ja
- Jaarlijkse vergadering
- Ja
- Periodieke bijdrage
- Ja (€ 130,00 per maand)
- Reservefonds aanwezig
- Ja
- Onderhoudsplan
- Nee
- Opstalverzekering
- Ja
Foto's 68
© 2001-2025 funda



































































