Omschrijving

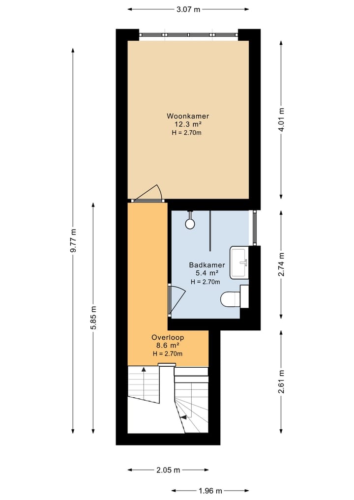
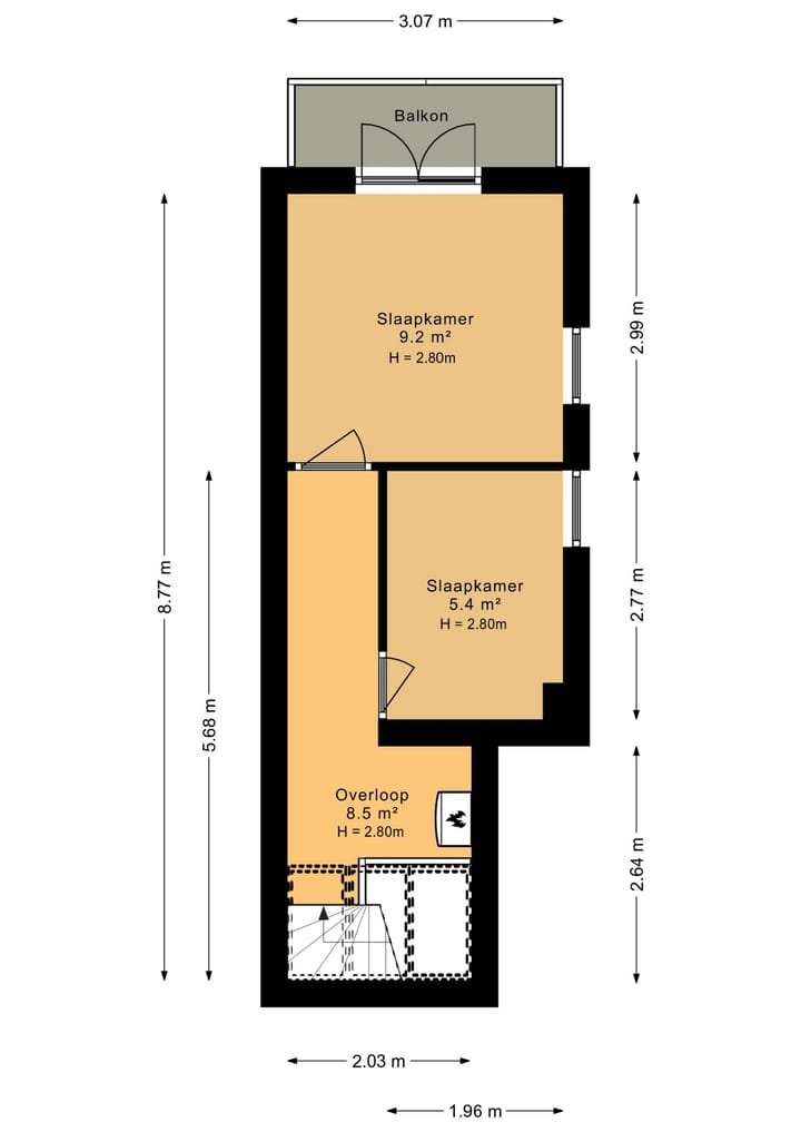
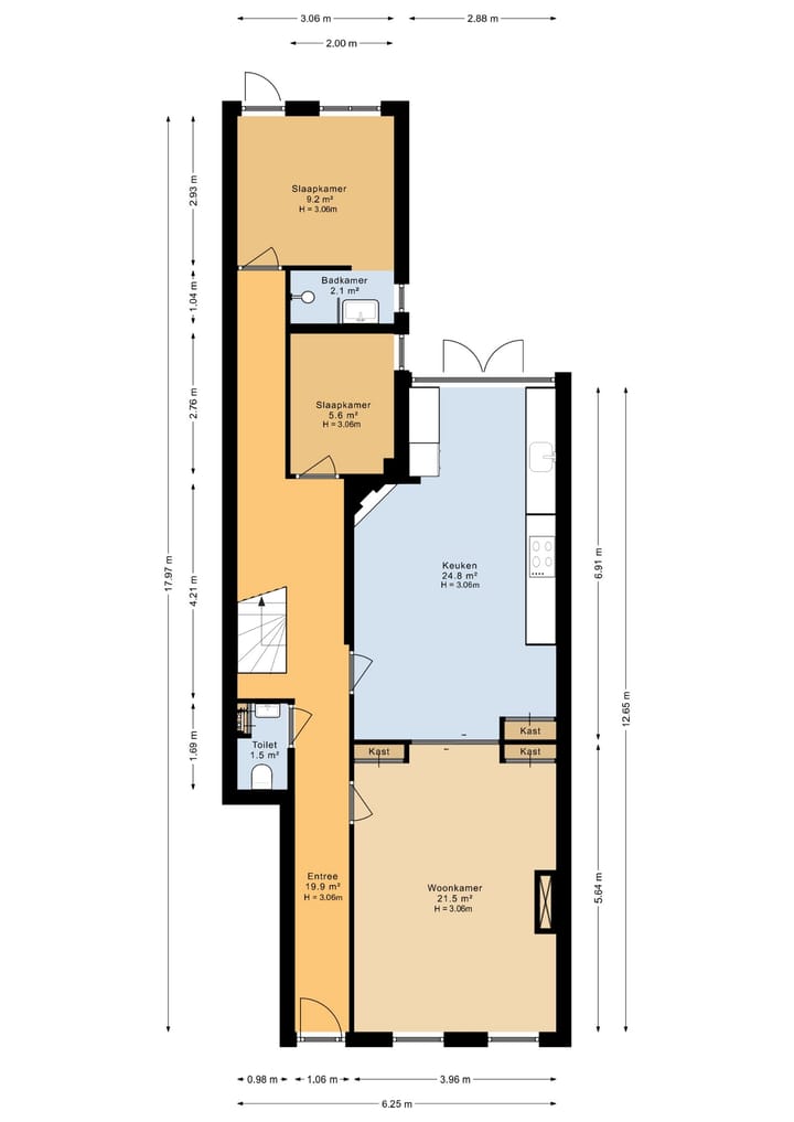
In de zeer leuke wijk Statenkwartier gelegen, geheel gerenoveerde parterre met 4 slaapkamers en 2 badkamers. De woning is vakkundig gerenoveerd met duurzame en deugdelijke materialen. Indeling: Entree, centrale hal met toilet, meterkast, woonkamer aan de voorzijde, moderne woonkeuken met alle inbouwapparatuur, openslaande deuren naar de achtertuin. Werkkamer, slaapkamer met toegang naar achtertuin en een en suite doucheruimte. 1e etage: overloop, moderne badkamer, slaapkamer. 2e etage: overloop, opstelplaats C.V.-ketel en wasmachine aansluiting, twee slaapkamer, balkon. Bijzonderheden: -Visgraatparket op de begane grond - Nieuwe technische installaties - Geheel gerenoveerd - HR 107 C.V. -ketel - Actieve V.v.E. Aanvaarding: de woning is gereed voor bewoning.

Kenmerken

Overdracht

Laatste vraagprijs
€ 949.000 kosten koper
Vraagprijs per m²
€ 6.779
Status
Verkocht
Bijdrage VvE
€ 170,00 per maand

Bouw

Soort appartement
Benedenwoning (appartement)
Soort bouw
Bestaande bouw
Bouwjaar
1917
Specifiek
Beschermd stads- of dorpsgezicht
Soort dak
Plat dak bedekt met bitumineuze dakbedekking

Oppervlakten en inhoud

Gebruiksoppervlakten
Wonen
140 m²
Inhoud
533 m³

Indeling

Aantal kamers
6 kamers (5 slaapkamers)
Aantal badkamers
2 badkamers en 1 apart toilet
Badkamervoorzieningen
Douche, dubbele wastafel, en vloerverwarming
Aantal woonlagen
3 woonlagen
Voorzieningen
Dakraam
Gelegen op
Begane grond

Energie

Energielabel
Isolatie
Dubbel glas
Verwarming
Cv-ketel

Kadastrale gegevens

DEN HAAG AK 9890
Kadastrale kaart
Eigendomssituatie
Volle eigendom

Buitenruimte

Ligging
Aan rustige weg en in woonwijk
Tuin
Achtertuin
Achtertuin
45 m² (9,00 meter diep en 5,00 meter breed)
Ligging tuin
Gelegen op het westen

Parkeergelegenheid

Soort parkeergelegenheid
Betaald parkeren en openbaar parkeren

VvE checklist

Inschrijving KvK
Ja
Jaarlijkse vergadering
Ja
Periodieke bijdrage
Ja (€ 170,00 per maand)
Reservefonds aanwezig
Ja
Onderhoudsplan
Nee
Opstalverzekering
Ja

Foto's 59

  • Foto 1 van Van Aerssenstraat 83
  • Foto 2 van Van Aerssenstraat 83
  • Foto 3 van Van Aerssenstraat 83
  • Foto 4 van Van Aerssenstraat 83
  • Foto 5 van Van Aerssenstraat 83
  • Foto 6 van Van Aerssenstraat 83
  • Foto 7 van Van Aerssenstraat 83
  • Foto 8 van Van Aerssenstraat 83
  • Foto 9 van Van Aerssenstraat 83
  • Foto 10 van Van Aerssenstraat 83
  • Foto 11 van Van Aerssenstraat 83
  • Foto 12 van Van Aerssenstraat 83
  • Foto 13 van Van Aerssenstraat 83
  • Foto 14 van Van Aerssenstraat 83
  • Foto 15 van Van Aerssenstraat 83
  • Foto 16 van Van Aerssenstraat 83
  • Foto 17 van Van Aerssenstraat 83
  • Foto 18 van Van Aerssenstraat 83
  • Foto 19 van Van Aerssenstraat 83
  • Foto 20 van Van Aerssenstraat 83
  • Foto 21 van Van Aerssenstraat 83
  • Foto 22 van Van Aerssenstraat 83
  • Foto 23 van Van Aerssenstraat 83
  • Foto 24 van Van Aerssenstraat 83
  • Foto 25 van Van Aerssenstraat 83
  • Foto 26 van Van Aerssenstraat 83
  • Foto 27 van Van Aerssenstraat 83
  • Foto 28 van Van Aerssenstraat 83
  • Foto 29 van Van Aerssenstraat 83
  • Foto 30 van Van Aerssenstraat 83
  • Foto 31 van Van Aerssenstraat 83
  • Foto 32 van Van Aerssenstraat 83
  • Foto 33 van Van Aerssenstraat 83
  • Foto 34 van Van Aerssenstraat 83
  • Foto 35 van Van Aerssenstraat 83
  • Foto 36 van Van Aerssenstraat 83
  • Foto 37 van Van Aerssenstraat 83
  • Foto 38 van Van Aerssenstraat 83
  • Foto 39 van Van Aerssenstraat 83
  • Foto 40 van Van Aerssenstraat 83
  • Foto 41 van Van Aerssenstraat 83
  • Foto 42 van Van Aerssenstraat 83
  • Foto 43 van Van Aerssenstraat 83
  • Foto 44 van Van Aerssenstraat 83
  • Foto 45 van Van Aerssenstraat 83
  • Foto 46 van Van Aerssenstraat 83
  • Foto 47 van Van Aerssenstraat 83
  • Foto 48 van Van Aerssenstraat 83
  • Foto 49 van Van Aerssenstraat 83
  • Foto 50 van Van Aerssenstraat 83
  • Foto 51 van Van Aerssenstraat 83
  • Foto 52 van Van Aerssenstraat 83
  • Foto 53 van Van Aerssenstraat 83
  • Foto 54 van Van Aerssenstraat 83
  • Foto 55 van Van Aerssenstraat 83
  • Foto 56 van Van Aerssenstraat 83
  • Foto 57 van Van Aerssenstraat 83
  • Foto 58 van Van Aerssenstraat 83
  • Foto 59 van Van Aerssenstraat 83

© 2001-2025 funda