Dit huis op Funda: https://www.funda.nl/detail/koop/den-haag/huis-bogotastraat-34/43286483/

Bogotástraat 342548 HG Den HaagHoge Veld
€ 475.000 k.k.
Omschrijving
Ruime eengezinswoning met 4 slaapkamers en 2 badkamers, energiezuinig en instapklaar
In een rustige en groene woonomgeving ligt deze lichte en energiezuinige hoekwoning met energielabel A+. De woning is gelijkvloers toegankelijk, met een comfortabele badkamer op de begane grond en zonder belemmerende drempels, wat deze woning extra aantrekkelijk maakt voor bewoners die toekomstbestendig willen wonen. Met twee badkamers, twee zonnige balkons en 10 zonnepanelen combineert deze woning ruimte, comfort én duurzaamheid. Winkels, openbaar vervoer, recreatie en uitvalswegen liggen allemaal binnen handbereik.
Highlights
+ Energielabel A+
+ Hoekwoning
+ Twee badkamers
+ 10 zonnepanelen
Indeling:
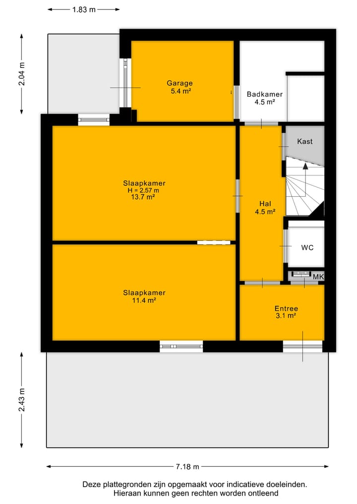
Begane grond
De woning beschikt op de begane grond over twee ruime slaapkamers, beide met een fijne lichtinval. Daarnaast bevindt zich hier een moderne badkamer met regendouche en een aparte wasruimte, ideaal voor praktisch dagelijks gebruik. Via de hal zijn ook de entree, het separate toilet, de meterkast en een diepe bergkast bereikbaar. Aan de achterzijde bevindt zich een inpandige berging, een waardevolle toevoeging voor opslag, hobby of fietsen.
Deze verdieping vormt dankzij de ruime slaapkamers én de gelijkvloerse voorzieningen een bijzonder comfortabel en toekomstbestendig leefniveau.
Eerste verdieping
De eerste verdieping is ingericht als een royale woonverdieping. De lichte woonkamer van ca. 38 m² biedt volop ruimte voor een comfortabele zithoek én een grote eettafel. De open keuken (ca. 10 m²) heeft een praktische indeling en is voorzien van een recent geplaatste keramische kookplaat. Aan de achterzijde bevindt zich een ruim balkon, perfect voor een kop koffie in de ochtend of een moment in de zon.
Tweede verdieping
Op de tweede verdieping liggen nog twee slaapkamers, ideaal als master bedroom en logeer- of kinderkamer. Ook hier is een badkamer aanwezig, voorzien van alle comfort. Vanaf de overloop heeft u toegang tot het grote dakterras, een heerlijke en zonnige buitenruimte met volop privacy.
Pluspunten
+ Energielabel A+
+ Gelijkvloerse toegankelijkheid op de begane grond
+ Verzorgde voortuin
+ Twee balkons (eerste en tweede verdieping)
+ Strak gestuukt en netjes afgewerkt
+ Vloer vernieuwd in 2021
+ Trap gerenoveerd in 2025
+ Open keuken met nieuwe keramische kookplaat
+ 1e Badkamer beneden met regendouche en aparte wasruimte
+ 2e Badkamer boven in goede staat
+ Meterkast met 2-fasenaansluiting
+ Oplevering op korte termijn mogelijk
Bijzonderheden
> Bouwjaar 2004
> Woonoppervlakte ca. 135 m² (NVM Meetinstructie)
> Inhoud ca. 478 m³
> Erfpacht, canon eeuwigdurend afgekocht
> Verwarming en warm water middels stadsverwarming (gasloos)
OMGEVING
Benieuwd naar de omgeving? Bekijk alle voorzieningen onder het kopje ‘In de buurt’!
INTERESSE?
Dan nodigen we je uit om contact met ons op te nemen. We vertellen je graag meer over deze woning en zorgen ervoor dat je overige stukken en algemene voorwaarden verkopend makelaar digitaal via jouw persoonlijke Move account kunt bekijken.
ONZE TIP
Aankopen? Schakel jouw eigen NVM-aankoopmakelaar in! De NVM-aankoopmakelaar komt op voor jouw belang en bespaart je veel tijd, geld en zorgen. Adressen van collega NVM-aankoopmakelaars vind je op Funda.
De gegeven informatie is met zorgvuldigheid opgesteld, aan de juistheid kunnen echter geen rechten worden ontleend. Alle verstrekte informatie moet beschouwd worden als een uitnodiging tot het doen van een aanbod of om in onderhandeling te treden.
Kenmerken
Overdracht
- Aangeboden sinds
- Aanvaarding
- In overleg
- Vraagprijs
- € 475.000 kosten koper
- Vraagprijs per m²
- € 3.519
- Status
- Beschikbaar
Bouw
- Soort woonhuis
- Eengezinswoning, hoekwoning
- Soort bouw
- Bestaande bouw
- Bouwjaar
- 2004
- Specifiek
- Gedeeltelijk gestoffeerd
- Soort dak
- Plat dak
Oppervlakten en inhoud
- Gebruiksoppervlakten
- Wonen
- 135 m²
- Gebouwgebonden buitenruimte
- 15 m²
- Perceel
- 82 m²
- Inhoud
- 478 m³
Indeling
- Aantal kamers
- 5 kamers (4 slaapkamers)
- Aantal badkamers
- 2 badkamers en 1 apart toilet
- Badkamervoorzieningen
- Inloopdouche, 2 wastafels, douche, ligbad, toilet, en wastafelmeubel
- Aantal woonlagen
- 3 woonlagen
- Voorzieningen
- Balansventilatie, glasvezelkabel, mechanische ventilatie, natuurlijke ventilatie, schuifpui, TV kabel, en zonnepanelen
Energie
- Energielabel
- A+
- Isolatie
- Dakisolatie, dubbel glas, muurisolatie, vloerisolatie en volledig geïsoleerd
- Verwarming
- Stadsverwarming
- Warm water
- Stadsverwarming
Kadastrale gegevens
- 'S-GRAVENHAGE AX 6816
- Kadastrale kaart
- Oppervlakte
- 82 m²
- Eigendomssituatie
- Erfpacht
- Lasten
- Eeuwigdurend afgekocht
Buitenruimte
- Ligging
- Aan rustige weg, in centrum en in woonwijk
- Tuin
- Voortuin
- Voortuin
- 14 m² (0,02 meter diep en 0,07 meter breed)
- Ligging tuin
- Gelegen op het zuiden
- Balkon/dakterras
- Balkon aanwezig
Parkeergelegenheid
- Soort parkeergelegenheid
- Openbaar parkeren
Foto's 48
Plattegronden 4
© 2001-2025 funda



















































