
De Perponcherstraat 1362518 TA Den HaagKoningsplein e.o.
€ 1.500.000 k.k.
BlikvangerSchitterend 228m2 herenhuis met 8 slaapkamers
Omschrijving
REUSACHTIG (288M2) EN UITZONDERLIJK FRAAI INWENDIG GERENOVEERD 4-LAAGS 10-KAMER HERENHUIS MET 8 SLAAPKAMERS, TUIN OP HET ZUIDWESTEN EN GELEGEN OP EEN IDEALE LOCATIE OP EIGEN GROND.
Prachtig en sfeervol 4-laags stadspand met karakteristieke voorgevel en tuin op het Zuidwesten. De woning is in 2020 high-end gerenoveerd en beschikt over 8 slaapkamers en 2 badkamers.
Locatie:
Gelegen op loopafstand van de gezellige Reinkenstraat (Duinoord), Weimarstraat (Regentessekwartier) en de Prins Hendrikstraat (Zeeheldenkwartier), hier kun je terecht voor je dagelijkse boodschappen en geniet je van een heerlijke lunch op één van de terrasjes. Ook voor kinderen is er genoeg te doen in de nabije omgeving zoals het mooie Sunny Court, het Koningsplein en de Verademing. Op fietsafstand van de binnenstad, de Internationale Zone, Scheveningse Haven, Internationale scholen, het strand en de duinen.
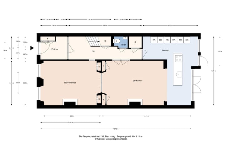
Indeling:
Entree, vestibule met meterkast, hal met vaste kast en separaat toilet.
Ruime woonkamer ensuite (ca. 11,30 x 4,05m) met fraaie schuifseparatie, vaste kasten en hoge plafonds.
Moderne open keuken (ca. 5,02 x 6,26m) met kookeiland, kookveldafzuiging, dubbele oven, koelkast, vriezer, vaatwasser en openslaande deuren naar de achtertuin.
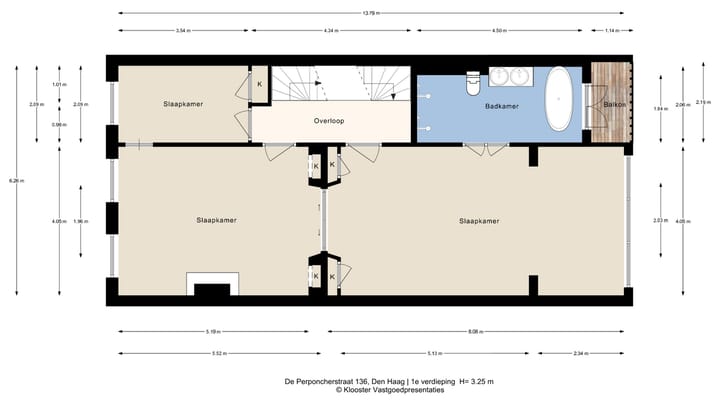
Trap naar 1e etage, alwaar overloop.
Ruime badkamer (ca. 4,50 x 2,06m) met ligbad, dubbele douche, wastafelmeubel, 2e toilet en openslaande deuren naar het balkon.
Grote achterslaapkamer (ca. 8,08 x 4,05m).
Ruime 2e slaapkamer (ca. 5,19 x 4,05m).
3e slaapkamer (ca. 3,54 x 2,09m).
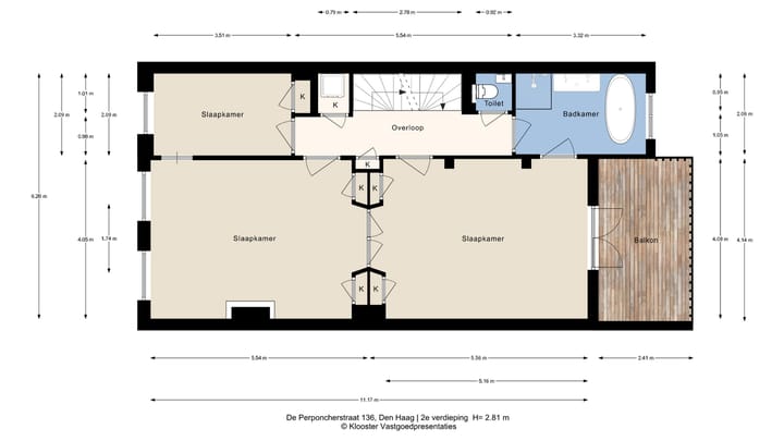
Trap naar 2e etage, alwaar overloop met wasruimte en separaat 3e toilet.
Ruime 2e badkamer (ca. 3,32 x 2,06m) met ligbad, separate douche en wastafelmeubel.
Grote 4e slaapkamer (ca. 5.56 x 4.05m) met openslaande deuren naar het dakterras.
Grote 5e slaapkamer (ca. 5.54 x 4.05m).
6e slaapkamer (ca. 3.51 x 2.09m).
Royaal dakterras (ca. 4,08 x 2,41) op het Zuidwesten.
Trap naar 3e etage, alwaar grote overloop.
Grote 7e slaapkamer (ca. 4,21 x 3.54m) met dakkapel
Grote 8e slaapkamer (ca. 4,21 x 2.84m) met dakkapel.
Ruime achtertuin op het Zuidwesten (ca. 9.19 x 6.26m) met recent nieuw geplaatste fraaie serre/overkapping.
Eigenschappen:
- woonoppervlakte ca. 288 m2
- eigen grond
- rondom dubbel glas
- C.V.-combiketel Remeha Calenta HR '20 (met 40 liter warm water vat, waarin efficiënt warm water wordt opgeslagen dat direct kan worden gebruikt)
- elektra 21 groepen + 5 x a.l.s.
- voorzien van eikenhouten visgraatvloer
- energielabel C
volgens opgave:
- voorgevel gevoegd '20
- achtergevel gevoegd '20
- riolering vervangen '20
- schilderwerk dakgoot voor- en achterzijde '20
- schilderwerk kozijnen voor- en achterzijde '20
- elektra vervangen '20
- waterleiding vervangen '20
- keuken nieuw geplaatst '20
- 2 badkamers nieuw geplaatst '20
- alle toiletten nieuw geplaatst '20
De biedingen verlopen via het platform van Eerlijk Bieden te vinden op hooghlanden.nl
Kenmerken
Overdracht
- Aangeboden sinds
- Aanvaarding
- In overleg
- Vraagprijs
- € 1.500.000 kosten koper
- Vraagprijs per m²
- € 5.208
- Status
- Beschikbaar
Bouw
- Soort woonhuis
- Herenhuis, tussenwoning
- Soort bouw
- Bestaande bouw
- Bouwjaar
- 1900
- Specifiek
- Beschermd stads- of dorpsgezicht
- Soort dak
- Mansarde dak bedekt met pannen
Oppervlakten en inhoud
- Gebruiksoppervlakten
- Wonen
- 288 m²
- Gebouwgebonden buitenruimte
- 10 m²
- Externe bergruimte
- 14 m²
- Perceel
- 162 m²
- Inhoud
- 1.110 m³
Indeling
- Aantal kamers
- 10 kamers (8 slaapkamers)
- Aantal badkamers
- 2 badkamers en 2 aparte toiletten
- Badkamervoorzieningen
- Dubbele wastafel, 2 inloopdouches, 2 ligbaden, toilet, en 2 wastafelmeubels
- Aantal woonlagen
- 4 woonlagen
- Voorzieningen
- Mechanische ventilatie, natuurlijke ventilatie, en TV kabel
Energie
- Energielabel
- Isolatie
- Dubbel glas, HR-glas en vloerisolatie
- Verwarming
- Cv-ketel
- Warm water
- Cv-ketel
- Cv-ketel
- Remeha Calenta HR (gas gestookt combiketel uit 2020, eigendom)
Kadastrale gegevens
- 'S-GRAVENHAGE W 853
- Kadastrale kaart
- Oppervlakte
- 162 m²
- Eigendomssituatie
- Volle eigendom
Buitenruimte
- Ligging
- Aan rustige weg en in woonwijk
- Tuin
- Achtertuin
- Achtertuin
- 59 m² (9,19 meter diep en 6,26 meter breed)
- Ligging tuin
- Gelegen op het zuidwesten
- Balkon/dakterras
- Balkon aanwezig
Parkeergelegenheid
- Soort parkeergelegenheid
- Betaald parkeren, openbaar parkeren en parkeervergunningen
Foto's 55
© 2001-2026 funda






















































