
Omschrijving
Heerlijk lichte en goed onderhouden 3-laagse eengezinswoning van circa 117m2 gelegen in een gezellige straat van de kindvriendelijke woonwijk Houtwijk!
Deze fijne gezinswoning beschikt o.a. over 4 slaapkamers, een royale woon-/eetkamer met halfopen keuken, een moderne badkamer, een verzorgde voortuin en een zonnige achtertuin (O) met stenen berging en achterom.
Ideaal gelegen, nabij winkels, sportvoorzieningen, scholen en het openbaar vervoer. Verder zijn de snelwegen goed bereikbaar en is de familiebadplaats Kijkduin binnen enkele autominuten te bereiken.
Indeling
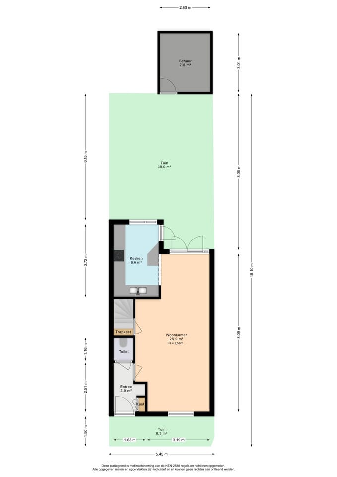
Via voortuin naar overdekte woningentree; hal met garderobe, meterkast en modern separaat toilet met fonteintje; royale en lichte woon-/eetkamer met zitgedeelte aan de voorzijde en eetgedeelte met halfopen keuken aan de achterzijde. De keuken is uitgevoerd in een crème witte kleurstelling en beschikt over een granieten aanrechtblad en diverse inbouwapparatuur. Openslaande deuren en een loopdeur geven toegang tot de verzorgde achtertuin (O) met zonwering, stenen berging en achterom.
Eerste verdieping
Overloop met trapopgang; tweetal goed bemeten slaapkamers aan de voorzijde; ruime slaapkamer aan de achterzijde; moderne badkamer met inloopdouche, wastafelmeubel, handdoekradiator, zwevend toilet en vloerverwarming.
Tweede verdieping
Ruime multifunctionele zolderruimte met wastafel, opstelplaats CV-ketel en witgoedaansluitingen; ruime slaapkamer aan de voorzijde.
Bijzonderheden
- Eeuwigdurende erfpacht met afgekochte canon;
- Bouwjaar 1982;
- Oplevering in overleg;
- Energielabel B;
- CV ketel van Remeha Tzerra uit 2024;
- Elektra: 8 groepen met aardlekschakelaars;
- Volledig voorzien van dubbele beglazing (nagenoeg geheel HR++);
- Voorzien van 6 zonnepanelen;
- Verzorgde achtertuin (O) met zonwering, stenen berging en achterom;
- Centraal gelegen op korte afstand van uitvalswegen, scholen, openbaar vervoer, het strand van Kijkduin, diverse winkelcentra en natuurgebieden;
- Algemene ouderdoms- en materialenclausule van toepassing;
- Perceeloppervlakte: 111 m2;
- Gebruiksoppervlakte: 117 m2;
- Externe bergruimte: 9 m2;
- Inhoud: 404 m3;
- Exact gemeten volgens de Meetinstructie Gebruiksoppervlakte woningen.
Deze verkoopbeschrijving is met zorg samengesteld. Alle tekst is echter informatief en bedoeld als uitnodiging om over eventuele aankoop in gesprek te komen. U kunt aan deze verkoop-beschrijving geen rechten ontlenen.
Kenmerken
Overdracht
- Laatste vraagprijs
- € 485.000 kosten koper
- Vraagprijs per m²
- € 4.145
- Status
- Verkocht
Bouw
- Soort woonhuis
- Eengezinswoning, eindwoning
- Soort bouw
- Bestaande bouw
- Bouwjaar
- 1982
- Soort dak
- Samengesteld dak
Oppervlakten en inhoud
- Gebruiksoppervlakten
- Wonen
- 117 m²
- Externe bergruimte
- 9 m²
- Perceel
- 106 m²
- Inhoud
- 404 m³
Indeling
- Aantal kamers
- 5 kamers (4 slaapkamers)
- Aantal badkamers
- 1 badkamer en 1 apart toilet
- Badkamervoorzieningen
- Inloopdouche, toilet, vloerverwarming, en wastafelmeubel
- Aantal woonlagen
- 3 woonlagen
- Voorzieningen
- Buitenzonwering, TV kabel, en zonnepanelen
Energie
- Energielabel
- B
- Isolatie
- Dubbel glas, HR-glas en volledig geïsoleerd
- Verwarming
- Cv-ketel
- Warm water
- Cv-ketel
- Cv-ketel
- Remeha Tzerra (gas gestookt combiketel uit 2024, eigendom)
Kadastrale gegevens
- LOOSDUINEN M 5561
- Kadastrale kaart
- Oppervlakte
- 106 m²
- Eigendomssituatie
- Gemeentelijk eigendom belast met erfpacht
- Lasten
- Eeuwigdurend afgekocht
Buitenruimte
- Ligging
- Aan park, aan rustige weg en in woonwijk
Bergruimte
- Schuur/berging
- Box
Parkeergelegenheid
- Soort parkeergelegenheid
- Betaald parkeren, openbaar parkeren en parkeervergunningen
Foto's 33
© 2001-2025 funda
































