Dit huis op Funda: https://www.funda.nl/detail/koop/den-haag/huis-jaarsveldstraat-226/43055018/

BlikvangerNette 5-kamer eengezinswoning met zonnige voor-en achtertuin
Omschrijving
ZEER FRAAIE INWENDIG GERENOVEERDE 5-KAMER 3-LAAGS EENGEZINSWONING MET 4 SLAAPKAMERS, 12 ZONNEPANELEN, AIRCO, ENERGIELABEL C, EIGEN GROND EN VOOR-EN ZEER ZONNIGE ACHTERTUIN.
Deze prachtige eengezinswoning is gunstig gelegen op loopafstand van openbaar vervoer, winkelcentrum Leyenburg met o.a. Jumbo en Albert Heijn, het Zuiderpark en op fietsafstand van het strand en het Centrum.
Indeling:
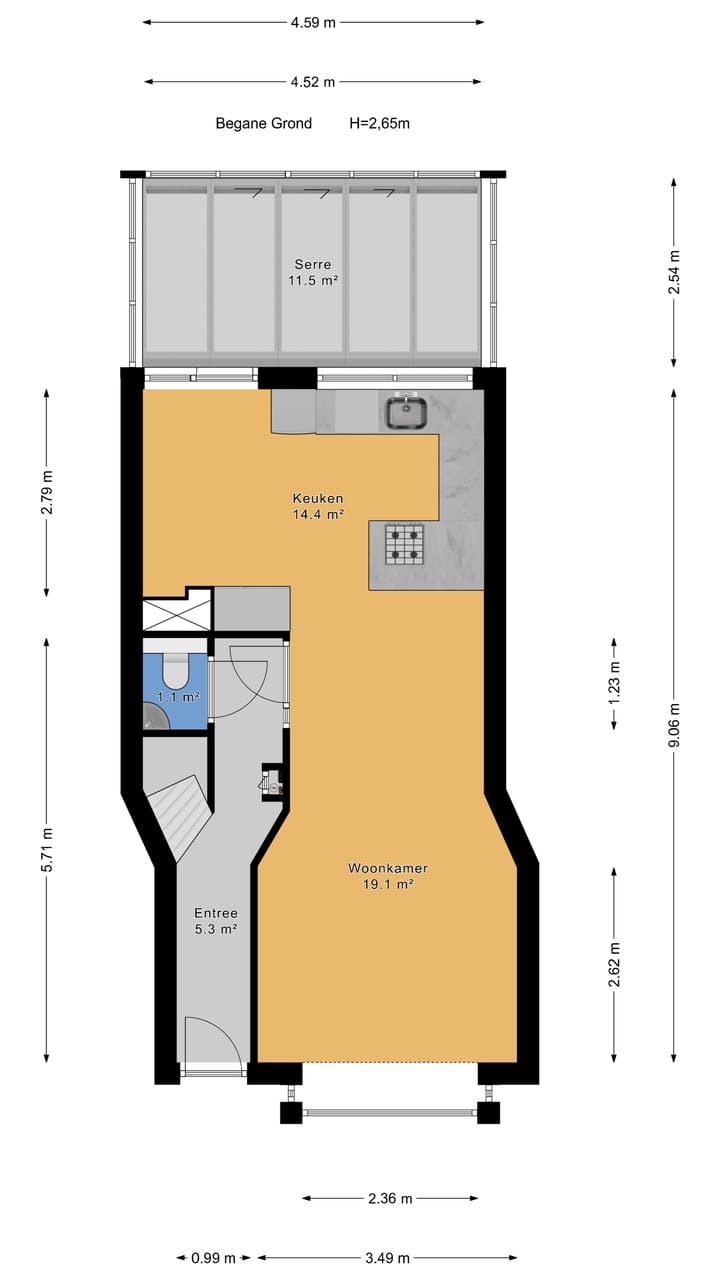
Toegang via voortuin, entree, hal met meterkast en modern toilet.
Grote wooneetkamer (ca. 5.71 x 3.49/2.36m) met grote raampartijen.
Ruime open woonkeuken (ca. 4.52 x 2.79m) voorzien van onder- en bovenkasten, 4-pits inductiekookplaat, kookveldafzuiging, oven, koelkast, vriezer, vaatwasser, Quookerkraan heet/gekoeld/bruisend en deur naar de serre.
Ruime serre (ca. 4.52 x 2.54m).
Trap naar 1e etage, alwaar overloop.
Fraaie luxe badkamer (ca. 2.19 x 1.89m) voorzien van ligbad/douche, designradiator, wastafelmeubel en 2e toilet.
Grote voorslaapkamer (ca. 4.62 x 4.05/2.61m) met vaste kast.
2e (achter)slaapkamer (ca. 3.46 x 2.60m) met vaste kast en openslaande deuren naar het balkon.
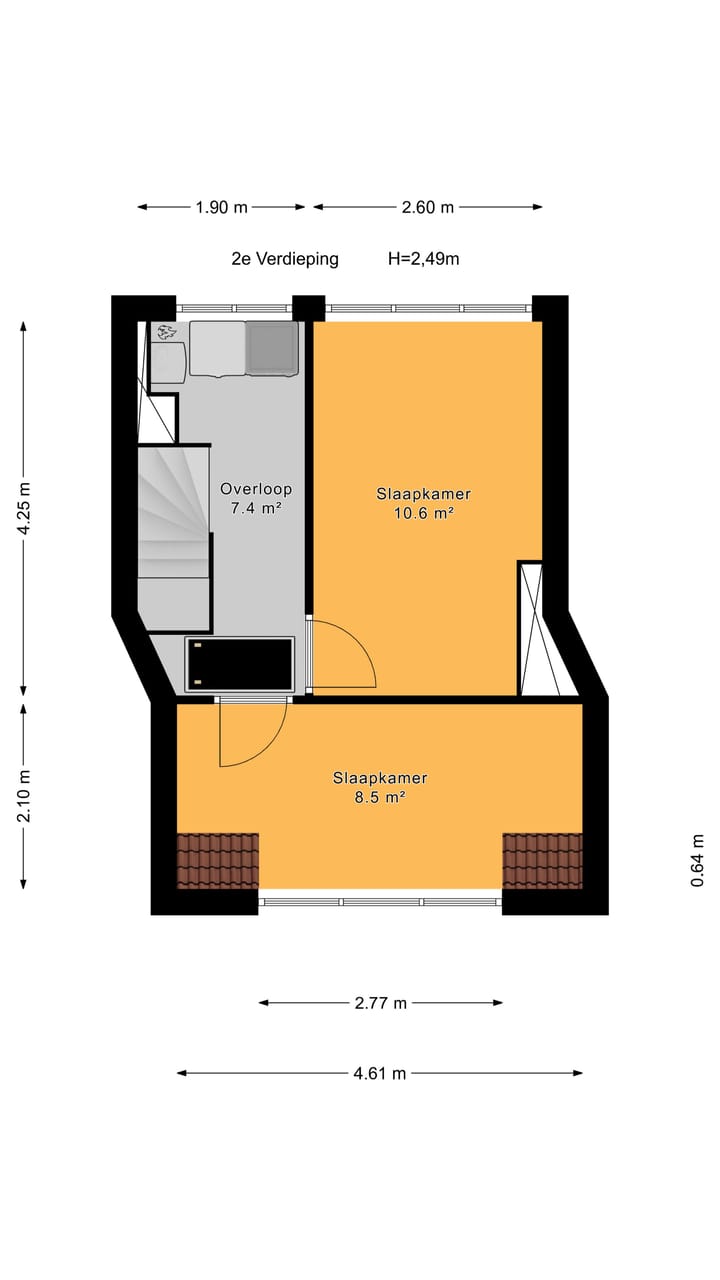
Trap naar 2e etage, alwaar overloop met was- en stookruimte.
3e ruime slaapkamer (ca. 4.25 x 2.60m) met dakkapel.
4e slaapkamer (ca. 4.61/2.77 x 2.10m) met dakkapel.
Zeer zonnige achtertuin (ca. 5.81 x 4.80m) op het Zuidoosten met stenen berging met elektra.
Kenmerken:
- eigen grond
- energielabel C
- elektra 14 gr. + 3 x a.l.s.
- grotendeels dubbel glas
- C.V.-combiketel Intergas HR '12
- 12 zonnepanelen
- 3 x airco op 1 gezamenlijke mulitisplit
- dakisolatie
- vloerisolatie
- oplevering in overleg
De biedingen verlopen via het platform van Eerlijk Bieden te vinden op hooghlanden.nl.
Kenmerken
Overdracht
- Aangeboden sinds
- Aanvaarding
- In overleg
- Vraagprijs
- € 499.500 kosten koper
- Vraagprijs per m²
- € 4.162
- Status
- Verkocht onder voorbehoud
Bouw
- Soort woonhuis
- Eengezinswoning, tussenwoning
- Soort bouw
- Bestaande bouw
- Bouwjaar
- 1939
- Soort dak
- Zadeldak bedekt met pannen
Oppervlakten en inhoud
- Gebruiksoppervlakten
- Wonen
- 120 m²
- Overige inpandige ruimte
- 1 m²
- Gebouwgebonden buitenruimte
- 4 m²
- Externe bergruimte
- 5 m²
- Perceel
- 105 m²
- Inhoud
- 438 m³
Indeling
- Aantal kamers
- 5 kamers (4 slaapkamers)
- Aantal badkamers
- 1 badkamer en 1 apart toilet
- Badkamervoorzieningen
- Douche, ligbad, toilet, en wastafelmeubel
- Aantal woonlagen
- 3 woonlagen en een vliering
- Voorzieningen
- Airconditioning en zonnepanelen
Energie
- Energielabel
- C
- Isolatie
- Dakisolatie, gedeeltelijk dubbel glas en vloerisolatie
- Verwarming
- Cv-ketel
- Warm water
- Cv-ketel
- Cv-ketel
- HR (gas gestookt combiketel uit 2012, eigendom)
Kadastrale gegevens
- LOOSDUINEN N 1468
- Kadastrale kaart
- Oppervlakte
- 105 m²
- Eigendomssituatie
- Volle eigendom
Buitenruimte
- Ligging
- Aan rustige weg en in woonwijk
- Tuin
- Achtertuin en voortuin
- Achtertuin
- 28 m² (5,81 meter diep en 4,80 meter breed)
- Ligging tuin
- Gelegen op het zuidoosten
- Balkon/dakterras
- Balkon aanwezig
Bergruimte
- Schuur/berging
- Vrijstaande stenen berging
Parkeergelegenheid
- Soort parkeergelegenheid
- Betaald parkeren, openbaar parkeren en parkeervergunningen
Foto's 36
Plattegronden 6
© 2001-2025 funda









































