Dit huis op Funda: https://www.funda.nl/detail/koop/den-haag/huis-korvethof-5/43885358/

Omschrijving
Op kindvriendelijke locatie in de wijk "De Caaien" ligt deze ruime 5-kamer eengezinswoning met twee eigen parkeerplaatsen en in de directe omgeving van station, sportfaciliteiten, scholen en winkels. Voor eenieder een ideale uitvalsbasis voor werk, sporten, shoppen en spelen.
Wat heeft deze woning u te bieden:
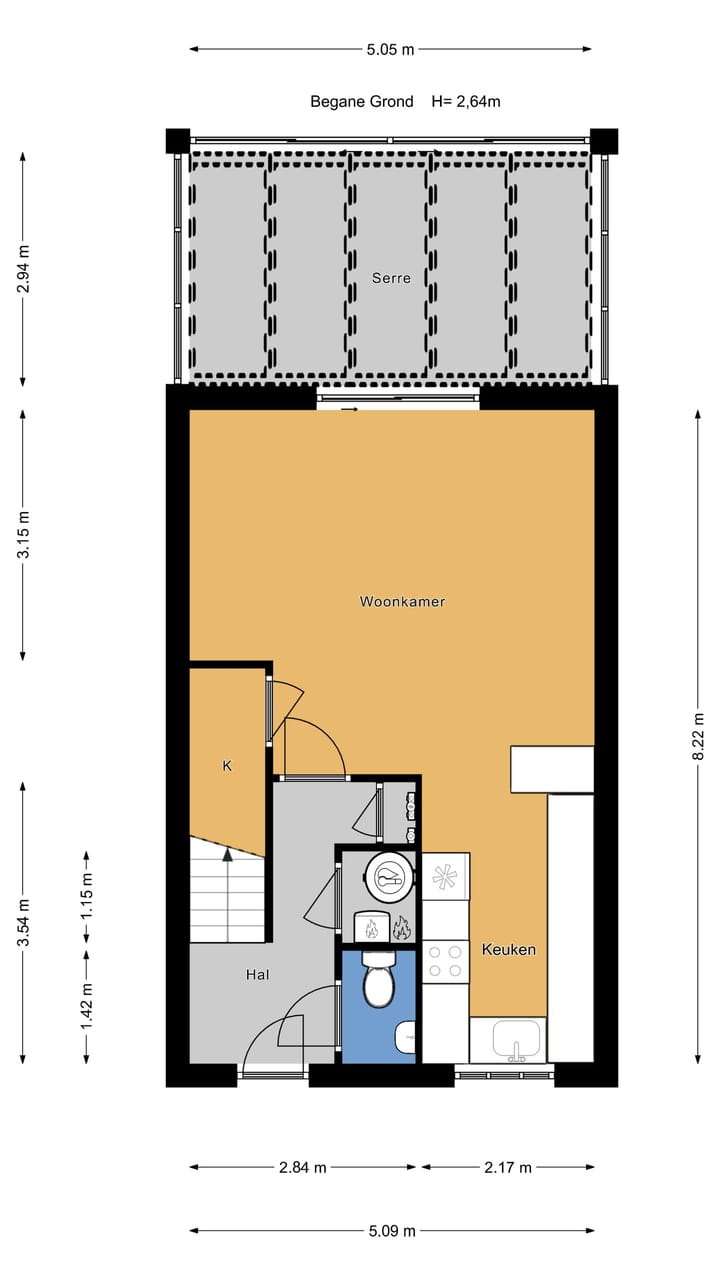
BEGANE GROND
Entree, hal met meterkast, toiletruimte, berging met opstelplaats voor warmtepomp en trapopgang naar de 1e verdieping. Vanuit deze hal komt u in de woonkamer met een schuifpui naar de serre. Hier kunt u nog langer van het buiten zijn genieten. Vanuit de serre komt u in de achtertuin gelegen op het noordoosten met waterpartij en vrijstaande berging. Er is een achterom naar de afgesloten parkeerplaats en waar zich ook de twee parkeerplaatsen bevinden.
Aan de voorzijde van de woning bevindt zich de ruime keuken in U-opstelling en is voorzien van diverse inbouwapparatuur, zoals inductiekookplaat, koel-vrieskast en oven.
EERSTE VERDIEPING
Vanaf de overloop heeft u toegang tot alle vertrekken. Er zijn drie slaapkamers, 2 aan de achterzijde en 1 aan de voorzijde van deze verdieping. Tevens aan de voorzijde de badkamer met douchehoek, wasbak en tweede toilet.
TWEEDE VERDIEPING:
De zolder biedt u de mogelijkheid een vierde slaapkamer te creëren.
ALGEMEEN
De woning wordt verwarmd en gekoeld via een energiezuinig Warmte Koude Opslag systeem middels zogenaamde lage temperatuur vloerverwarming die door alle ruimten van de woning lopen behalve de zolderverdieping Dit systeem huurt u afzonderlijk naast de woning. Daarnaast is de hele woning voorzien van houten kozijnen.
KENMERKEN
- Bouwjaar 2009;
- 123 m² woonoppervlakte;
- 125 m² perceel (volle eigendom);
- 4 slaapkamers;
- Ruime achtertuin op het noordoosten;
- Twee parkeerplaatsen op afgesloten terrein;
- VvE bijdrage parkeerplaatsen € 27,50 per maand;
- Verwarming en warm water door middel van eigen WKO systeem (huur);
- 21 zonnepanelen geplaatst in 2020 (eigendom);
Meer weten over deze woning in Den Haag? Bel of mail ons gerust voor meer informatie of voor het maken van een bezichtigingsafspraak.
Deze informatie is door ons met de nodige zorgvuldigheid samengesteld. Onzerzijds wordt echter geen enkele aansprakelijkheid aanvaard voor enige onvolledigheid, onjuistheid of anderszins, dan wel de gevolgen daarvan. Alle opgegeven maten en oppervlakten op de plattegronden zijn indicatief.
------------------------------------------------------------------------------------------------------------------------
In this child friendly location in the neighborhood ‘De Caaien’, you can find this 5-room single-family home with two private parking spots and in the direct vicinity of the station, sports facilities, schools, and shops. An ideal homebase for everyone trying to work, sport, shop, and play.
What can this property offer you:
GROUND FLOOR
Entrance, hall with meter cabinet, toilet room, storage room with the setup for a boiler, and stairwell to the first floor. From this hall, you arrive in the living room, which has sliding doors leading to the solarium. Here you can enjoy the outside for just a bit longer. From the solarium, you enter the backyard, which faces northeast, and has a water feature and a freestanding storage shed. There is a back exit leading to a secure parking lot, which includes the two private parking spots. In the front of the house is the spacious kitchen in U arrangement, which is fitted with a diverse set of appliances, like an induction cooktop, fridge-freezer combo, and oven.
FIRST FLOOR
You can access all the rooms on this floor from the landing. There are three bedrooms on this floor, two in the back and one in the front. In the front, there is also a bathroom with shower corner, washbasin, and a second toilet.
SECOND FLOOR
The attic offers you the possibility to create a fourth bedroom.
IN GENERAL
The house is being heated and cooled by an energy efficient ground-coupled heat exchanger, through the so-called low temperature underfloor heating which is fitted in all rooms of the house except the attic. This system is rented separately from the house. The entire house is also fitted with wooden windowsills.
PARTICULARITIES
- Built in 2009;
- 123 m2 living area;
- 125 m2 lot (complete ownership);
- Four bedrooms;
- Spacious backyard facing northeast;
- Two private parling spots on the secure parking lot;
- VvE contribution for the parkingspots € 27,50 per month;
- Heating and warm water supplied by own ground-coupled heat exchanger (rented);
- 21 solar panels placed in 2020 (privately owned).
Want to know more about this property in The Hague? Feel free to call or email us for more information or to schedule a viewing appointment.
This information has been carefully compiled. However, we accept no liability for any incompleteness, inaccuracy or otherwise, nor the consequences thereof. All measures and areas are indicative.
Kenmerken
Overdracht
- Laatste vraagprijs
- € 475.000 kosten koper
- Vraagprijs per m²
- € 3.831
- Status
- Verkocht
Bouw
- Soort woonhuis
- Eengezinswoning, eindwoning
- Soort bouw
- Bestaande bouw
- Bouwjaar
- 2009
- Specifiek
- Gestoffeerd
- Soort dak
- Zadeldak bedekt met pannen
Oppervlakten en inhoud
- Gebruiksoppervlakten
- Wonen
- 124 m²
- Externe bergruimte
- 8 m²
- Perceel
- 125 m²
- Inhoud
- 447 m³
Indeling
- Aantal kamers
- 5 kamers (4 slaapkamers)
- Aantal badkamers
- 1 badkamer en 1 apart toilet
- Badkamervoorzieningen
- Douche, toilet, en wastafel
- Aantal woonlagen
- 3 woonlagen
- Voorzieningen
- Dakraam, glasvezelkabel, mechanische ventilatie, schuifpui, en zonnepanelen
Energie
- Energielabel
- A+++
- Isolatie
- HR-glas en volledig geïsoleerd
- Verwarming
- Gehele vloerverwarming en warmtepomp
- Warm water
- Elektrische boiler (huur)
Kadastrale gegevens
- DEN HAAG BF 4291
- Kadastrale kaart
- Oppervlakte
- 125 m²
- Eigendomssituatie
- Volle eigendom
Buitenruimte
- Ligging
- In woonwijk
- Tuin
- Achtertuin en voortuin
- Achtertuin
- 40 m² (7,10 meter diep en 5,70 meter breed)
- Ligging tuin
- Gelegen op het noordoosten bereikbaar via achterom
Bergruimte
- Schuur/berging
- Vrijstaande houten berging
- Voorzieningen
- Elektra
Parkeergelegenheid
- Soort parkeergelegenheid
- Op afgesloten terrein en openbaar parkeren
Foto's 44
© 2001-2025 funda











































