
Oosterhesselenstraat 5902545 SL Den HaagMorgenstond-West
€ 575.000 k.k.
Blikvanger3-laags hoekeengezinswoning (158m2) met 4 slaapkamers!
Omschrijving
GROTE (158 M2) 3-LAAGS HOEKEENGEZINSWONING MET 4 SLAAPKAMERS, ENERGIELABEL A, 2 TERRASSEN, EIGEN PARKEERPLAATS EN EEUWIGDUREND AFGEKOCHTE ERFPACHT.
Gelegen op fietsafstand van het strand en het Zuiderpark ligt deze nette eengezinswoning met 4 slaapkamers. Daarnaast ligt de woning op loopafstand van winkelcentrum Leyweg waar je alle winkels kunt vinden die je nodig hebt. Daarnaast is er een goede verbinding met het openbaar vervoer en ben je binnen enkele minuten op de uitvalswegen.
Indeling:
Entree, ruime hal met meterkast, separaat toilet en ruime inpandige berging.
Grote slaapkamer (4.13 x 2.22m) aan de voorzijde.
2e grote slaapkamer (4.93 x 2.43m) aan de achterzijde.
Trap naar 1e etage.
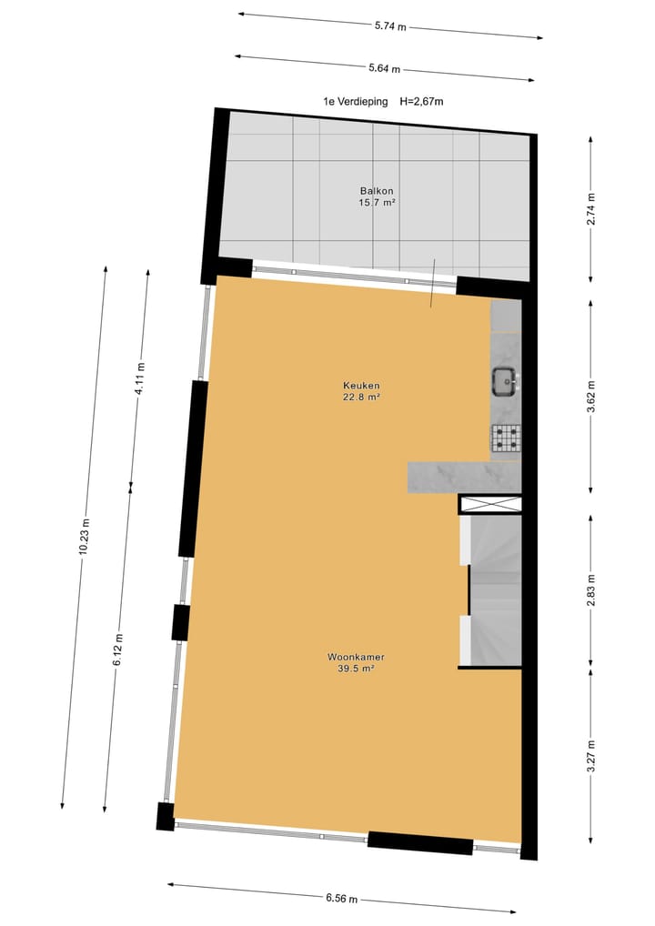
Grote wooneetkamer (ca. 10.23 x 6.56/5.64m) met deur naar het terras.
Ruime open keuken in hoekopstelling met 5-pits gaskookplaat, afzuigkap, oven, magnetron, koelkast, vriezer en vaatwasser.
Royaal en zeer zonnig terras (ca. 5.74 x 2.74m).
Trap naar 2e etage alwaar overloop met 2e toilet en toegang tot het 2e terras.
Ruime badkamer (ca. 3.27 x 2.36m) voorzien van ligbad, inloopdouche en dubbele wastafel.
3e grote slaapkamer (ca. 4.14 x 3.86m) aan de voorzijde.
4e grote slaapkamer (ca. 3.85 x 3.50m) aan de achterzijde.
Royaal en zeer zonnig 2e terras (ca. 5.77 x 1.82m).
Ruime voor- en zijtuin.
Eigen parkeerplaats direct achter de woning op afgesloten parkeerterrein met afstandsbediening.
Eigenschappen:
- oppervlakte ca. 158 m2
- eeuwigdurend afgekochte erfpacht
- elektra 7 gr. + x a.l.s.
- rondom dubbel glas
- C.V.-combiketel Remeha Calenta HR
- energielabel A
- bouwjaar 2008
Vereniging van Eigenaren voor de parkeerplaats:
- actieve V.v.E
- bijdrage € 24,79/m
- professioneel beheer
De biedingen verlopen via het platform van Eerlijk Bieden te vinden op hooghlanden.nl
Kenmerken
Overdracht
- Aangeboden sinds
- Aanvaarding
- In overleg
- Vraagprijs
- € 575.000 kosten koper
- Vraagprijs per m²
- € 3.639
- Status
- Beschikbaar
Bouw
- Soort woonhuis
- Eengezinswoning, hoekwoning
- Soort bouw
- Bestaande bouw
- Bouwjaar
- 2008
- Soort dak
- Plat dak bedekt met bitumineuze dakbedekking
Oppervlakten en inhoud
- Gebruiksoppervlakten
- Wonen
- 158 m²
- Gebouwgebonden buitenruimte
- 26 m²
- Perceel
- 121 m²
- Inhoud
- 560 m³
Indeling
- Aantal kamers
- 5 kamers (4 slaapkamers)
- Aantal badkamers
- 1 badkamer en 2 aparte toiletten
- Badkamervoorzieningen
- Douche, dubbele wastafel, en ligbad
- Aantal woonlagen
- 3 woonlagen
- Voorzieningen
- Mechanische ventilatie
Energie
- Energielabel
- A
- Isolatie
- Dakisolatie, dubbel glas, kierdichting, muurisolatie en vloerisolatie
- Verwarming
- Cv-ketel
- Warm water
- Cv-ketel
- Cv-ketel
- Remeha Calenta HR (gas gestookt combiketel, eigendom)
Kadastrale gegevens
- DEN HAAG AW 3365
- Kadastrale kaart
- Oppervlakte
- 121 m²
- Eigendomssituatie
- Gemeentelijke erfpacht
- Lasten
- Eeuwigdurend afgekocht
Buitenruimte
- Ligging
- Aan rustige weg en in woonwijk
- Tuin
- Zonneterras
- Zonneterras
- 16 m² (5,74 meter diep en 2,74 meter breed)
- Ligging tuin
- Gelegen op het zuidoosten
- Balkon/dakterras
- Balkon aanwezig
Garage
- Soort garage
- Parkeerplaats
Parkeergelegenheid
- Soort parkeergelegenheid
- Betaald parkeren, op afgesloten terrein, openbaar parkeren en parkeervergunningen
Foto's 44
Plattegronden 5
© 2001-2025 funda
















































