
Omschrijving
In de woonwijk Rustenburg-Oostbroek ligt deze eengezinswoning. De woning biedt een ruime en lichte woonkamer, drie slaapkamers en een tuin gelegen op het noordwesten waar u geniet van de avondzon. Met winkels, scholen, sportgelegenheden en openbaar vervoer binnen handbereik, biedt de woning een centrale ligging
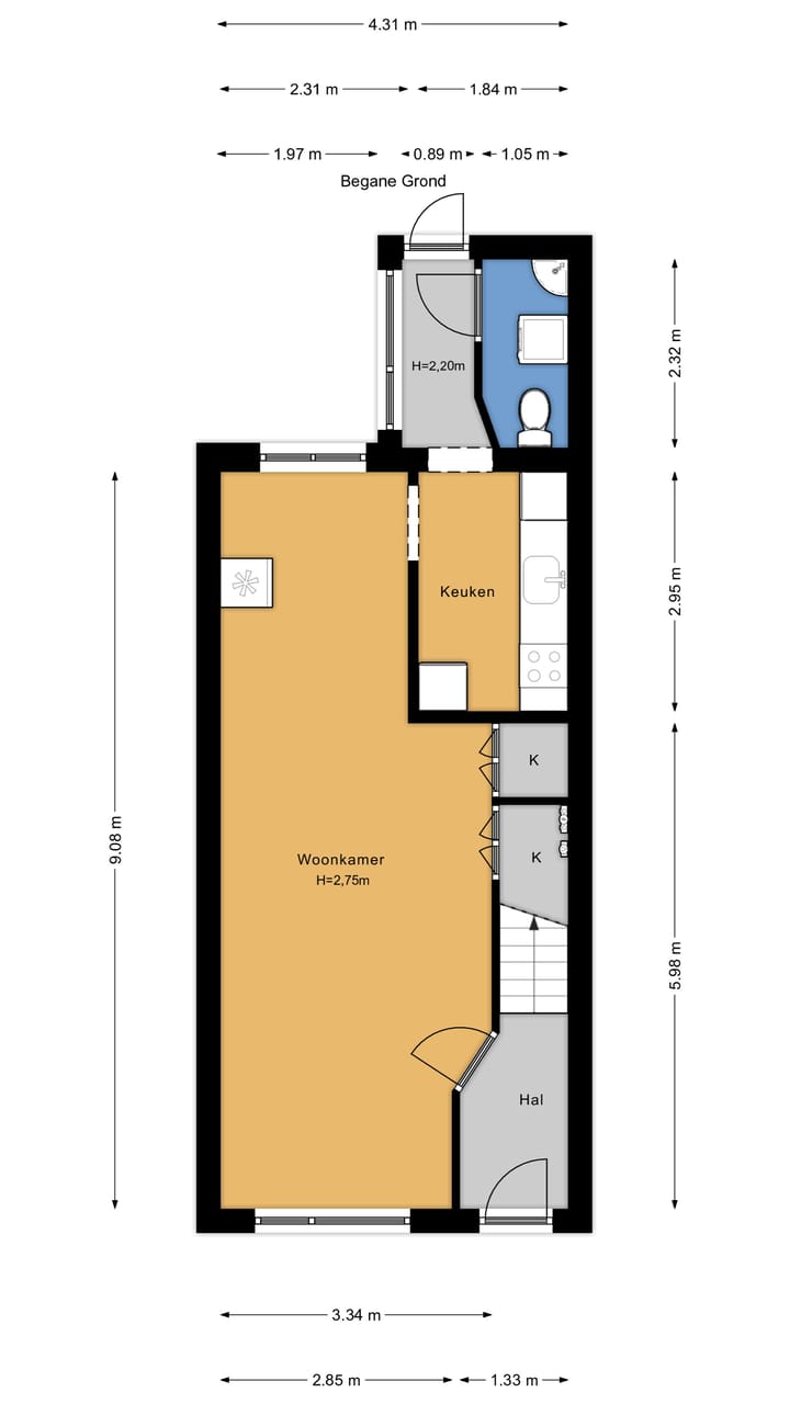
Begane grond:
- Entree, hal met trap naar 1e etage;
- Ruime en lichte woonkamer over de lengte van de woning. De woonkamer is voorzien van een laminaatvloer;
- Open keuken in parallelopstelling gelegen aan de achterzijde van de woning;
- Toiletruimte met toilet, fonteintje en wasmachine-aansluiting;
- Fijne achtertuin gelegen op het noordwesten waar u geniet van de avondzon.
1e verdieping:
- Ruime slaapkamer gelegen aan de voorzijde van de woning welke is voorzien van een laminaatvloer en een vaste kast;
- Aan de achterzijde bevinden zich 2 slaapkamer. Beiden slaapkamers zijn voorzien van een laminaatvloer;
- Betegelde badkamer voorzien van een douchecabine, toilet en fonteintje;
- De cv-installatie (Intergas, 2022) bevindt zich op de overloop.
Bijzonderheden:
- Gebruiksoppervlakte wonen ca. 83 m2;
- Bouwjaar ca. 1927;
- Gelegen op erfpachtgrond: canon € 53,91 per halfjaar, beheerskosten: € 16,- per halfjaar. Erfpachtcanon wordt per vijf jaar herzien voor het eerst per 01-01-2026 (grondwaarde: € 11.979,-);
- Energielabel D;
- De woning is deels voorzien van kunststof kozijnen met dubbel glas;
- Fijne achtertuin gelegen op het noordwesten;
- Oplevering kan snel;
Interesse in dit huis? Schakel direct uw eigen NVM-aankoopmakelaar in. Uw NVM-aankoopmakelaar komt op voor uw belang en bespaart u tijd, geld en zorgen.
Adressen van collega NVM- aankoopmakelaars in Haaglanden vindt u op Funda.
Deze informatie is geheel vrijblijvend, uitsluitend voor geadresseerde bestemd en niet bedoeld als aanbod. Ten aanzien van de juistheid van de vermelde informatie kan door de verkopend makelaar en haar opdrachtgever geen aansprakelijkheid worden aanvaard, noch kan aan de vermelde informatie enig recht worden ontleend.
Kenmerken
Overdracht
- Laatste vraagprijs
- € 325.000 kosten koper
- Vraagprijs per m²
- € 3.916
- Status
- Verkocht
Bouw
- Soort woonhuis
- Eengezinswoning, tussenwoning
- Soort bouw
- Bestaande bouw
- Bouwjaar
- 1927
- Soort dak
- Plat dak bedekt met bitumineuze dakbedekking
Oppervlakten en inhoud
- Gebruiksoppervlakten
- Wonen
- 83 m²
- Perceel
- 75 m²
- Inhoud
- 334 m³
Indeling
- Aantal kamers
- 4 kamers (3 slaapkamers)
- Aantal badkamers
- 1 badkamer en 1 apart toilet
- Badkamervoorzieningen
- Douche, toilet, en wastafel
- Aantal woonlagen
- 2 woonlagen
- Voorzieningen
- TV kabel
Energie
- Energielabel
- D
- Isolatie
- Dubbel glas
- Verwarming
- Cv-ketel
- Warm water
- Cv-ketel
- Cv-ketel
- Intergas (gas gestookt combiketel uit 2022, eigendom)
Kadastrale gegevens
- 'S-GRAVENHAGE AL 607
- Kadastrale kaart
- Oppervlakte
- 75 m²
- Eigendomssituatie
- Gemeentelijke erfpacht
- Lasten
- € 139,82 per jaar
Buitenruimte
- Ligging
- In woonwijk
- Tuin
- Achtertuin
- Achtertuin
- 21 m² (6,26 meter diep en 4,31 meter breed)
- Ligging tuin
- Gelegen op het noordwesten
Parkeergelegenheid
- Soort parkeergelegenheid
- Betaald parkeren, openbaar parkeren en parkeervergunningen
Foto's 33
© 2001-2025 funda
































