
Omschrijving
SPIJKERMAKERSSTRAAT 33 - CENTRUM
Unieke tussenwoning met historische waarde in het oude centrum van Den Haag.
Vlakbij de bruisende binnenstad en toch beschut in een rustige straat. Het Grote Markt-terras, poppodium Het Paard, winkels en een basisschool zijn binnen 5 minuten te bereiken. Zee, strand, musea en stations (CS & HS) liggen op fiets- of tramafstand. Halte Brouwersgracht is om de hoek. Eigen grond.
INDELING:
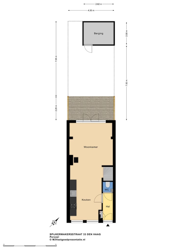
BEGANE GROND:
Entree, hal, modern toilet met fontein, woon-/eetkamer ca. 9.12 x 4.08 met open keuken aan de voorzijde voorzien van diverse inbouwapparatuur, openslaande deuren naar achtertuin met berging en achterom.
1e VERDIEPING:
Overloop voorslaapkamer ca. 4.10 x 2.52/2.91 met vaste bergkast, achterslaapkamer ca. 4.09 x 2.87/2.41, tussengelegen badkamer voorzien van douche, toilet en wastafel.
2e VERDIEPING:
Zolderkamer met vide en dakraam, eenvoudig te vergroten door bevloeren vide.
BIJZONDERHEDEN:
De woning is gelegen op eigen grond.
Een gedeelte van de achtertuin is in eigendom van de Gemeente Den Haag; geen kosten.
Aanvaarding in overleg.
Verwarming en warm water voorziening middels C.V.-ketel (Intergas 2006) + close in boiler in de keuken.
Onderhoudssituatie binnen en buiten is goed.
Houten kozijnen voorzien van dubbel glas.
Energielabel C.
Openbaar vervoer richting HS en CS dichtbij.
Strand en zee op fietsafstand.
De lood-/asbest- en ouderdomsclausule zijn van toepassing, evenals de nalatenschapsclausule.
Keuze notaris voorbehouden aan de koper; mits een Haags notariskantoor.
Bouwjaar: 1906.
Gelegen in Rijksbeschermd stadsgezicht Centrum.
Woonoppervlakte ca. 75m² en inhoud van de woning is ca. 251m³.
Model NVM-koopakte van toepassing.
KADASTRALE INFORMATIE:
Gemeente : 's-Gravenhage
Sectie : K
Nummer : 1737
Groot : 50m²
De Meetinstructie is gebaseerd op de NEN2580. De Meetinstructie is bedoeld om een meer eenduidige manier van meten toe te passen voor het geven van een indicatie van de gebruiksoppervlakte. De Meetinstructie sluit verschillen in meetuitkomsten niet volledig uit, door bijvoorbeeld interpretatieverschillen, afrondingen of beperkingen bij het uitvoeren van de meting. Interesse in dit huis? Schakel direct uw eigen NVM-aankoopmakelaar in.
Uw NVM-aankoopmakelaar komt op voor uw belang en bespaart u tijd, geld en zorgen.
Kenmerken
Overdracht
- Oorspronkelijke vraagprijs
- € 460.000 kosten koper
- Laatste vraagprijs
- € 445.000 kosten koper
- Vraagprijs per m²
- € 5.933
- Status
- Verkocht
Bouw
- Soort woonhuis
- Eengezinswoning, tussenwoning
- Soort bouw
- Bestaande bouw
- Bouwjaar
- 1906
- Specifiek
- Beschermd stads- of dorpsgezicht
- Soort dak
- Zadeldak bedekt met pannen
Oppervlakten en inhoud
- Gebruiksoppervlakten
- Wonen
- 75 m²
- Externe bergruimte
- 6 m²
- Perceel
- 50 m²
- Inhoud
- 251 m³
Indeling
- Aantal kamers
- 4 kamers (3 slaapkamers)
- Aantal badkamers
- 1 badkamer en 1 apart toilet
- Badkamervoorzieningen
- Douche, toilet, en wastafel
- Aantal woonlagen
- 3 woonlagen
- Voorzieningen
- Mechanische ventilatie
Energie
- Energielabel
- C
- Isolatie
- Dakisolatie en dubbel glas
- Verwarming
- Cv-ketel
- Warm water
- Cv-ketel en elektrische boiler
- Cv-ketel
- Intergas (gas gestookt combiketel uit 2006, eigendom)
Kadastrale gegevens
- 'S-GRAVENHAGE K 1737
- Kadastrale kaart
- Oppervlakte
- 50 m²
- Eigendomssituatie
- Volle eigendom
Buitenruimte
- Ligging
- Aan rustige weg, beschutte ligging, in centrum en in woonwijk
- Tuin
- Achtertuin
- Achtertuin
- 39 m² (9,00 meter diep en 4,30 meter breed)
- Ligging tuin
- Gelegen op het noordwesten bereikbaar via achterom
Bergruimte
- Schuur/berging
- Vrijstaande houten berging
Parkeergelegenheid
- Soort parkeergelegenheid
- Betaald parkeren, openbaar parkeren en parkeervergunningen
Foto's 38
© 2001-2025 funda





































