Dit huis op Funda: https://www.funda.nl/detail/koop/den-haag/huis-tomatenstraat-258/43614039/

Omschrijving
TOMATENSTRAAT 258 TE DEN HAAG (Vruchtenbuurt)
English text below
Algemeen:
Op de hoek van de Ananasstraat gelegen 6 kamer eindwoning met eigen garage (Ananasstraat 125) in kindvriendelijke straat in de Vruchtenbuurt. Divers winkelaanbod Vlierboom-Appelstraat en winkelcentrum De Savornin Lohmanplein alsmede openbaar vervoer (RandstadRail lijn 3 en bus 21 en 23) op loopafstand bereikbaar. Basis-middelbaar- en internationaal (ISH en ES) alsmede groen-, sport en recreatievoorzieningen, zee, strand en duinen allen op fietsafstand bereikbaar. Gelegen op eeuwigdurend uitgegeven erfpachtgrond.
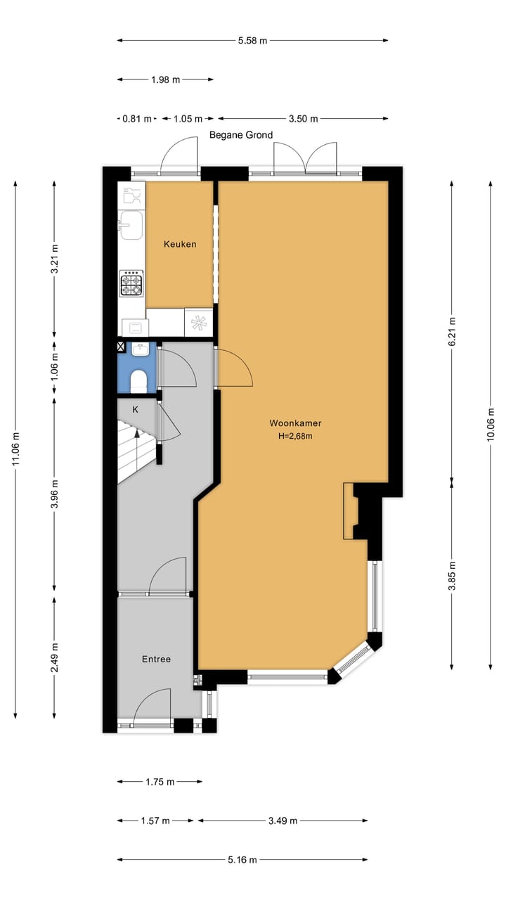
Indeling:
entree; vestibule met meterkast; hal met bergruimte onder de trap; toilet met fontein; woon-/eetkamer kamer 1006x350 met open haard; openslaande deuren naar de tuin; halfopen keuken 321x190 met inbouw oven, afzuigkap, koel./vrieskast, vaatwasser en 4 pits gaskookplaat; zonnige, diepe achtertuin 945x590 op het zuidoosten met zij-ingang via Ananasstraat en garage 17m² met elektrische deur;
1e verdieping: overloop; voorkamer 480x352; badkamer 342x152 met inloopdouche, toilet en wastafelmeubel; voorbalkon op het westen; achterzijkamer 324x210 met openslaande deuren naar het achterbalkon; achterkamer 508x350.
2e verdieping; overloop; voorkamer 364x351 met 2 vaste kasten en dakkapel; kamer achterzijde 450x351m met dakkapel en vaste kast; 2e badkamer 302x152 met ligbad, toilet en wastafel; via vlizotrap bereikbare vliering met een vloeroppervlak van 319x196.
Overige wetenswaardigheden:
- bouwjaar 1932
- eeuwigdurende erfpacht
- erfpachtcanon € 496,- per jaar; beheerkosten € 31,- per jaar
- grondwaarde/afkoopsom € 45.100,-
- canonpercentage 1,1; herzieningsdatum canonpercentage 1-1-2025
- elektra 6 groepen met aardlekschakelaars
- verwarming en warm water middels CV HR Remeha Calanta, bouwjaar 2014
- geheel prima bijgehouden; keuken en sanitaire voorzieningen ca. 25 jaar oud
- buitenschilderwerk 2022-2024
- de woning is voorzien van houten kozijnen met dubbel glas
- eigen garage Ananasstraat 125 voorzien van elektrische deur
- in verband met het bouwjaar zijn de materialen- en ouderdomsclausules van toepassing
- oplevering 1e kwartaal 2025
- woonoppervlak ca. 152m² (gemeten conform de BBMI)
AANKOOPPLANNEN??..................NEEM UW EIGEN NVM-AANKOOPMAKELAAR MEE!!
ADRESSEN VAN NVM-AANKOOPMAKELAARS VINDT U OP FUNDA.NL
********************************************************************************
English text:
General:
Located on the corner of the Ananasstraat, 6-room end house with private garage (Ananasstraat 125) in a child-friendly street in the Vruchtenbuurt. Diverse range of shops in Vlierboom-Appelstraat and De Savornin Lohmanplein shopping center as well as public transport (RandstadRail line 3 and bus 21 and 23) within walking distance. Primary, secondary and international (ISH and ES) as well as green, sports and recreational facilities, sea, beach and dunes are all within cycling distance. Located on perpetually issued leasehold land.
Layout:
Entrance; vestibule with meter cupboard; hall with storage space under the stairs; toilet with fountain; living/dining room with fireplace; French doors to the garden; semi-open kitchen with built-in oven, extractor hood, fridge/freezer, dishwasher and 4 burner gas hob; sunny, deep backyard on the southeast with side entrance via Ananasstraat and garage with electric door;
1st floor: landing; front room; bathroom with walk-in shower, toilet and washbasin; front balcony on the west; rear side room with patio doors to the rear balcony; back room.
2nd floor; overflow; front room with 2 closets and dormer window; rear room with dormer window and closet; 2nd bathroom with bath, toilet and sink; Attic accessible by loft ladder.
Other facts:
- built in 1932
- perpetual leasehold
- ground rent € 496,- a year; management costs € 31,- a year
- land value/purchase sum € 45.100,-
- ground rent percentage 1.1; ground rent percentage revision date 1-1-2025
- electricity 6 groups with earth leakage switches
- heating and hot water through central heating HR Remeha Calanta, built in 2014
- completely well maintained; kitchen and sanitary facilities approximately 25 years old
- exterior painting 2022-2024
- the house has wooden frames with double glazing
- private garage Ananasstraat 125 with electric door
- due to the year of construction, the materials and age clauses apply
- delivery 1st quarter 2025
- living area approx. 152m² (measured in accordance with the BBMI)
Kenmerken
Overdracht
- Laatste vraagprijs
- € 800.000 kosten koper
- Vraagprijs per m²
- € 5.263
- Status
- Verkocht
Bouw
- Soort woonhuis
- Eengezinswoning, eindwoning
- Soort bouw
- Bestaande bouw
- Bouwjaar
- 1932
- Specifiek
- Gedeeltelijk gestoffeerd
- Soort dak
- Zadeldak bedekt met pannen
Oppervlakten en inhoud
- Gebruiksoppervlakten
- Wonen
- 152 m²
- Overige inpandige ruimte
- 1 m²
- Gebouwgebonden buitenruimte
- 4 m²
- Externe bergruimte
- 17 m²
- Perceel
- 147 m²
- Inhoud
- 553 m³
Indeling
- Aantal kamers
- 6 kamers (5 slaapkamers)
- Aantal badkamers
- 2 badkamers en 1 apart toilet
- Badkamervoorzieningen
- Inloopdouche, 2 toiletten, wastafelmeubel, ligbad, en wastafel
- Aantal woonlagen
- 3 woonlagen
- Voorzieningen
- Buitenzonwering, natuurlijke ventilatie, en rookkanaal
Energie
- Energielabel
- Isolatie
- Dubbel glas en vloerisolatie
- Verwarming
- Cv-ketel
- Warm water
- Cv-ketel
- Cv-ketel
- Remeha Calenta (gas gestookt combiketel uit 2014, eigendom)
Kadastrale gegevens
- LOOSDUINEN I 4302
- Kadastrale kaart
- Oppervlakte
- 147 m²
- Eigendomssituatie
- Gemeentelijke erfpacht
- Lasten
- € 572,10 per jaar met optie tot afkopen
Buitenruimte
- Ligging
- Aan rustige weg en in woonwijk
- Tuin
- Achtertuin
- Achtertuin
- 56 m² (9,50 meter diep en 5,90 meter breed)
- Ligging tuin
- Gelegen op het zuidoosten bereikbaar via achterom
- Balkon/dakterras
- Balkon aanwezig
Garage
- Soort garage
- Vrijstaande stenen garage
- Capaciteit
- 1 auto
- Voorzieningen
- Elektrische deur en elektra
- Isolatie
- Geen isolatie
Parkeergelegenheid
- Soort parkeergelegenheid
- Betaald parkeren, openbaar parkeren en parkeervergunningen
Foto's 57
© 2001-2026 funda
























































