
Omschrijving
Wonen in het hart van Den Haag met ruimte, comfort en een zonnige tuin
Rustig wonen met de dynamiek van de stad binnen handbereik? Deze moderne eengezinswoning biedt het beste van beide werelden. Gelegen in een sfeervolle, groene straat vlak bij het Huygenspark, combineert deze woning een comfortabele leefruimte met een centrale locatie. Met een woonoppervlak van ca. 106 m², energielabel A en een stijlvolle afwerking is dit een perfecte woning voor wie zorgeloos wil genieten.
De woning heeft een lichte en ruime woonkamer, een moderne keuken met diverse inbouwapparatuur, drie slaapkamers, een luxe badkamer en een multifunctionele voorzolder. De achtertuin is een absolute eyecatcher: ruim 13,5 meter diep, zonnig gelegen op het noordwesten en voorzien van een moderne veranda, een berging en een achterom.
Centrale ligging met alle voorzieningen dichtbij
Deze woning ligt op een toplocatie: in een rustige woonstraat, maar met het centrum van Den Haag op loopafstand. Geniet van de vele winkels, restaurants en cafés, de gezellige Bierkade (Avenue Culinaire) en culturele hotspots zoals Amare en het Filmhuis. Daarnaast is er een uitstekende bereikbaarheid met tram, bus en trein, en zijn de belangrijkste uitvalswegen snel te bereiken.
Indeling:
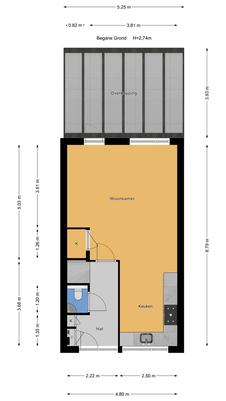
Ruime entree met garderoberuimte en meterkast. Modern toilet met wandcloset en fonteintje. De lichte woonkamer is tuingericht en heeft een hoog plafond van 2,7 meter, wat zorgt voor een ruimtelijk gevoel. Een handige trapkast biedt extra opbergruimte. De moderne halfopen keuken aan de voorzijde heeft een L-opstelling met veel kastruimte en diverse inbouwapparatuur, waaronder een 5-pits gaskookplaat (90 cm breed), afzuigkap, oven/grill, magnetron, vaatwasser en een spoelbak met moderne mengkraan. De begane grond is voorzien van een lichte plavuizenvloer met vloerverwarming.
De achtertuin is een fijne plek om te ontspannen: ruim 13,5 meter diep en zonnig gelegen op het noordwesten. De moderne veranda met melkglazen dak zorgt voor beschutting en sfeer. Daarnaast is er een houten berging en een handige achterom.
Eerste verdieping:
Ruime overloop. Aan de voorzijde een royale slaapkamer over de volle breedte van de woning (ca. 4.80 x 3.15 m). Aan de achterzijde een ruime slaapkamer (ca. 4.48 x 2.70 m) met groot dakraam. De luxe badkamer is compleet uitgerust met een inloopdouche met rainshower, een tweede toilet, een wastafelmeubel en een handdoekradiator.
Tweede verdieping:
Multifunctionele voorzolder (ca. 15 m²), ideaal als werkplek, extra slaapkamer of bergruimte. Hier bevinden zich ook de aansluitingen voor de wasmachine en droger, de WTW-installatie en de CV-ketel. Aan de voorzijde een ruime slaapkamer over de volle breedte van de woning (ca. 4.80 x 2.84 m).
Bijzonderheden
- Instapklare en moderne woning
- Energielabel A, volledig geïsoleerd en voorzien van dubbel glas
- Ruime en lichte woonkamer met hoog plafond (2,7 meter)
- Moderne keuken met uitgebreide inbouwapparatuur
- Luxe badkamer met inloopdouche en tweede toilet
- Drie ruime slaapkamers en een multifunctionele voorzolder
- Diepe en zonnige achtertuin (ca. 13,50 m) met veranda, berging en achterom
- Eeuwigdurend afgekochte erfpacht
- Rustige en groene straat, midden in het centrum van Den Haag
- Openbaar vervoer en alle voorzieningen op loopafstand
Oplevering eind mei 2025
Bijlagen (op te vragen bij de verkopende NVM makelaar)
- Plattegrond.
- Kadastrale kaart.
- Vragenlijst.
- Lijst van zaken.
- Verkoopvoorwaarden op te vragen bij verkopende makelaar.
Interesse in dit huis? Schakel direct uw eigen NVM-aankoopmakelaar in.
Bovenstaande informatie is door ons met de hoogst nodige zorgvuldigheid samengesteld. Door ons wordt echter geen enkele aansprakelijkheid aanvaard voor enige onvolledigheid, onjuistheid of anderszins, dan wel de gevolgen daarvan. Alle opgegeven maten en oppervlakten zijn indicatief. De woning is gemeten met gebruikmaking van de Meetinstructie, die is gebaseerd op de normen zoals vastgelegd in NEN 2580. De Meetinstructie is bedoeld om een meer eenduidige manier van meten toe te passen voor het geven van een indicatie van gebruiksoppervlakte. De Meetinstructie sluit verschillen in meetuitkomsten niet volledig uit, door bijvoorbeeld interpretatieverschillen, afrondingen of beperkingen bij het uitvoeren van de meting. Hoewel wij de woning zorgvuldig hebben opgemeten, wordt noch door ons kantoor, noch door de verkoper enige aansprakelijkheid aanvaard voor afwijkingen in de opgegeven maten. Koper wordt in de gelegenheid gesteld om de opgegeven maten te (laten) controleren.
Kenmerken
Overdracht
- Laatste vraagprijs
- € 600.000 kosten koper
- Vraagprijs per m²
- € 5.660
- Status
- Verkocht
Bouw
- Soort woonhuis
- Eengezinswoning, tussenwoning
- Soort bouw
- Bestaande bouw
- Bouwjaar
- 2002
- Soort dak
- Samengesteld dak bedekt met bitumineuze dakbedekking en pannen
Oppervlakten en inhoud
- Gebruiksoppervlakten
- Wonen
- 106 m²
- Gebouwgebonden buitenruimte
- 21 m²
- Externe bergruimte
- 7 m²
- Perceel
- 134 m²
- Inhoud
- 365 m³
Indeling
- Aantal kamers
- 5 kamers (3 slaapkamers)
- Aantal badkamers
- 1 badkamer en 1 apart toilet
- Badkamervoorzieningen
- Inloopdouche, toilet, en wastafelmeubel
- Aantal woonlagen
- 3 woonlagen
- Voorzieningen
- Dakraam, mechanische ventilatie, en TV kabel
Energie
- Energielabel
- A
- Isolatie
- Dakisolatie, dubbel glas, muurisolatie en vloerisolatie
- Verwarming
- Cv-ketel
- Warm water
- Cv-ketel
- Cv-ketel
- Intergas HRE (gas gestookt combiketel uit 2024, eigendom)
Kadastrale gegevens
- 'S-GRAVENHAGE AD 4501
- Kadastrale kaart
- Oppervlakte
- 134 m²
- Eigendomssituatie
- Eigendom belast met erfpacht
- Lasten
- Eeuwigdurend afgekocht
Buitenruimte
- Ligging
- Aan rustige weg, in centrum en in woonwijk
- Tuin
- Achtertuin
- Achtertuin
- 81 m² (15,50 meter diep en 5,25 meter breed)
- Ligging tuin
- Gelegen op het noordwesten bereikbaar via achterom
Bergruimte
- Schuur/berging
- Vrijstaande houten berging
- Voorzieningen
- Elektra
Parkeergelegenheid
- Soort parkeergelegenheid
- Betaald parkeren en parkeervergunningen
Foto's 58
© 2001-2025 funda

























































