
Omschrijving
Deze hoekwoning uit 2012, uiteraard met energielabel A, is niet alleen comfortabel, maar vooral ook ontzettend leuk: jong, fris en helemaal van nu. Dat merk je aan de afwerking, maar zeker ook aan de verrassend multifunctionele begane grond, waar de royale ruimtes zich moeiteloos laten inzetten als hobby-, werk-, sport- of studieruimte. Samen met de living op de etage, die je een heerlijk privacyvol woongevoel geeft, en de uitstekend ingedeelde tweede- en zolderverdieping, benut je hier écht elke meter van het huis. Dat geeft letterlijk ruimte in je hoofd: in dit huis kan alles. Woon je met z’n tweeën of een klein gezin, dan heb je alle vrijheid beneden; woon je groter, dan tover je de huidige werk- en sportruimtes net zo makkelijk om tot volwaardige slaapkamers. Dankzij de zij-entree kun je bovendien eenvoudig een aan huis gebonden beroep uitoefenen. Denk aan kapper, massagepraktijk of administratiekantoor, ideaal met een eigen ingang. Aan ruimte, flexibiliteit en mogelijkheden dus geen enkel gebrek!
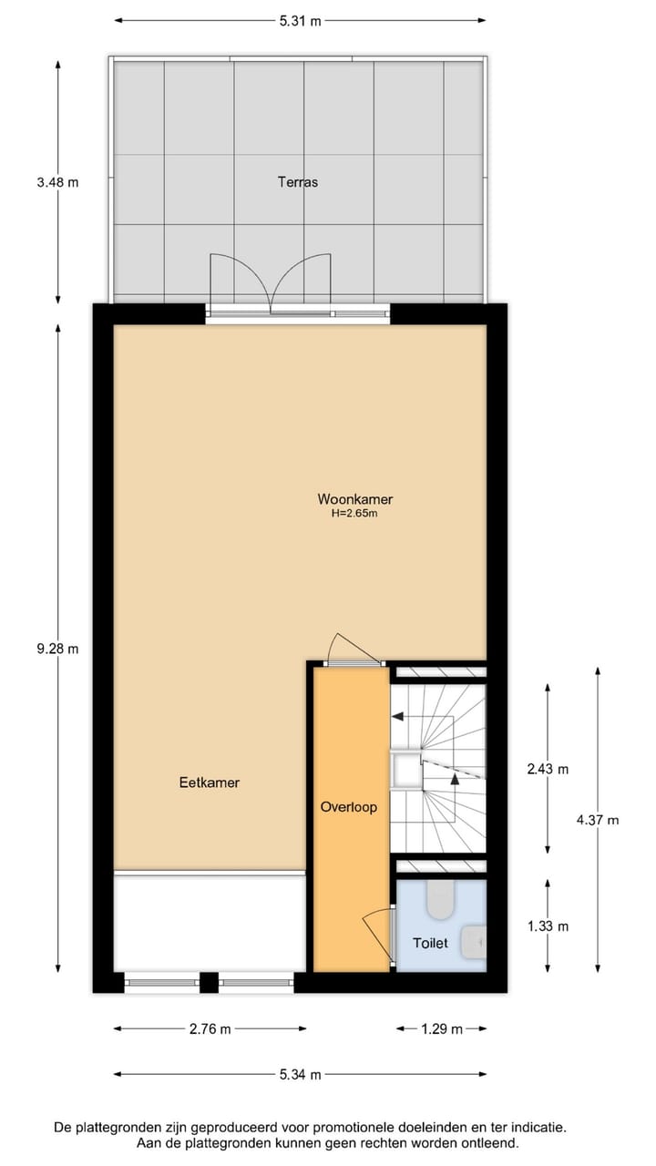
Voor de indeling kun je het best even rustig de plattegronden en foto’s bekijken, maar met alle plezier laten wij het huis natuurlijk live zien tijdens een privérondleiding. Dan nemen we ruim de tijd, zodat je de indeling, de mogelijkheden en vooral de sfeer echt goed zelf kunt ervaren. Maar samengevat komt u zo ongeveer binnen in een ruime entree/hal met toegang tot de meterkast, een praktische trapkast, een inbouwkast en de trapopgang. Aan de voorzijde ligt de keuken, een fijne plek waar eventueel ook een (extra) eettafel past. Het mooie aan deze ruimte is de verbinding met de eerste etage: via de vide kijk je zowel vanuit de keuken als vanaf boven op de grote raampartij. Dat voelt overdag heerlijk licht en open, en ’s avonds soms bijzonder als het maanlicht er naar binnen valt.
Loop je door naar de volgende hal, dan kom je bij twee kamers die je desgewenst ook met elkaar kunt verbinden. Vanuit deze hal is er bovendien toegang tot het afgesloten binnenterrein waar vooral wordt geparkeerd. In de linkerkamer vind je een extra deur naar buiten. Ideaal voor wanneer je een aan huis gebonden beroep wilt uitoefenen, want bezoekers kunnen direct naar binnen zonder door je privé-gedeelte te hoeven lopen.
Ga je terug naar de eerste hal bij de entree, dan kom je via de overloop bij een ruim toilet met fonteintje en vervolgens bij de speelse living. Deze etage is verrassend ruim en prettig in te delen; je kunt hier je meubels met gemak leuk en luchtig opstellen. De vide geeft opnieuw dat mooie gevoel van hoogte en licht, terwijl de openslaande deuren je leiden naar het riante, privacyvolle terras met grote tegels. Een heerlijke plek om te zitten, vooral in de zomer, maar eigenlijk het hele jaar door.
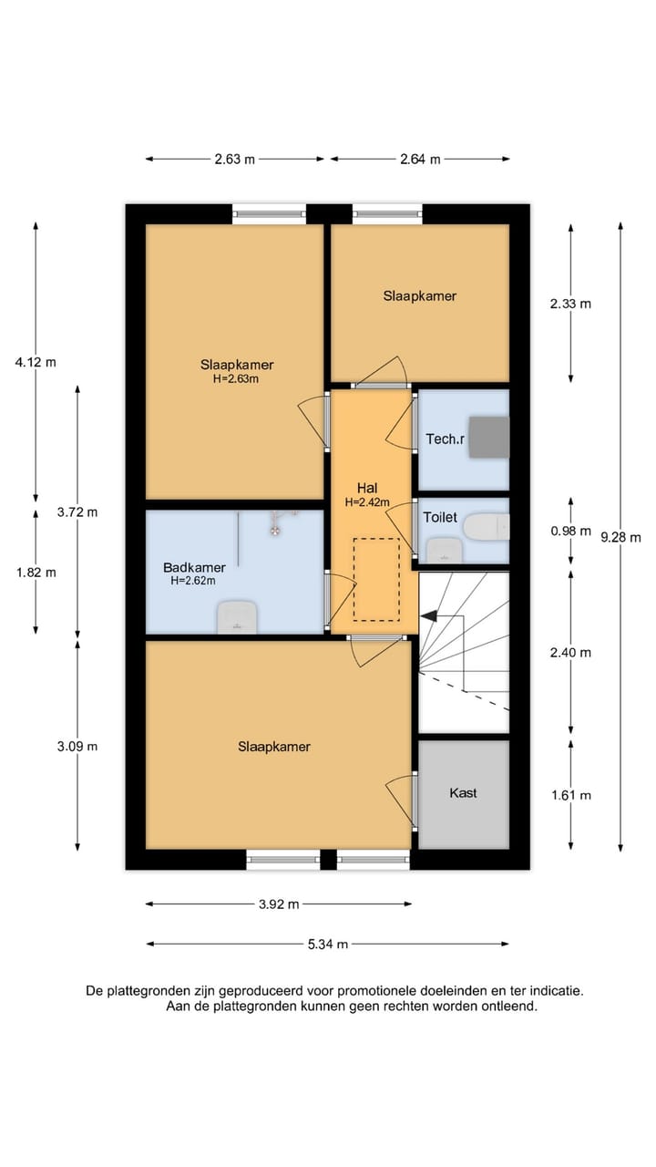
De tweede etage is bereikbaar via een luie, dus prettig beloopbare trap die je treft op de overloop. Hier vind je drie uitstekende slaapkamers, een toilet met fonteintje, een inbouwkast, een techniekkast en de badkamer. Via de overloop is er ook toegang tot de bergzolder, bereikbaar met een vlizotrap: heel praktisch en altijd handig.
Kortom: Je beschikt onder meer over vijf multifunctioneel inzetbare (slaap)kamers, twee toiletten met fonteintjes, een keurige keuken, een fijne badkamer en een speelse living met vide. Een huis dat zich dus makkelijk naar jouw leven en wensen voegt!
Gelukkig is de basis, mede door de huidige eigenaar zo samengesteld en afgewerkt dat ook op dit punt iedere nieuwe bewoner er moeiteloos zijn eigen stijl aan kan geven. De keuzes in vloer, wand- en plafondafwerking, keuken, tegelwerk en sanitair zijn bewust rustig en neutraal gehouden, waardoor het huis direct prettig aanvoelt én makkelijk te personaliseren is. Een eigen kleurtje, accent of hip behang breng je hier daadwerkelijk in een handomdraai aan.
De locatie is ideaal: centraal ten opzichte van het stadshart en het Willemsoord-complex, maar tóch opvallend rustig. Alles ligt binnen handbereik, terwijl de bescheiden drukte van deze stad aan zee hier vrijwel volledig aan je voorbijgaat. Precies dat contrast maakt dit plekje zo prettig en leuk om te wonen. Daarbij ondergaat het Helderse stadshart momenteel een indrukwekkende metamorfose, waardoor ook dit deel van de stad steeds meer allure krijgt. Alle dagelijkse voorzieningen liggen letterlijk om de hoek: supermarkten, scholen, sportclubs, de prachtige bibliotheek, restaurants en openbaar vervoer. Het station ligt op slechts ca. 600 meter lopen, en ook strand, zee, duinen en de zeedijk zijn dichtbij.
Op korte afstand, ca. 400 meter, vind je bovendien het Willemsoord-complex met theater De Kampanje, een bioscoop, diverse musea, een breed aanbod aan horeca en een jachthaven. Een plek waar zodoende altijd wel iets te beleven is!
Voor de exacte indeling verwijzen wij je graag naar de plattegronden, maar een woning ervaar je natuurlijk pas echt tijdens een bezichtiging – die plannen wij indien mogelijk graag vrijblijvend met je in. De foto’s en plattegronden geven in ieder geval alvast een goede eerste indruk!
De vraagprijs voor deze leuke, comfortabele woning met mogelijkheden is € 377.500,- k.k.
Verschillende bijzonderheden voor je op een rijtje:
• Het betreft een hoekwoning die veel fijne kenmerken daarvan biedt.
• Bouwjaar 2012.
• De kavelgrootte meet circa 59m².
• De gebruiksoppervlakte in de woning meet circa 149m²
• De overige inpandige ruimte meet circa 10m².
• Het terras meet circa 19m².
• Bovenstaande gebruiksoppervlakten (behoudens de kavel) zijn gemeten conform de branche brede meetinstructies.
• Energielabel A.
• De cv-ketel dateert uit 2012 en is van het merk Intergas (eigendom).
• De warmte terugwin installatie dateert van 2012 (eigendom).
• De negen zonnepanelen die dateren van december 2023 (eigendom).
• De meterkast die is voorzien van een groepenkast met installatieautomaten.
• Er is glasvezel in de woning aanwezig.
• Alle basisvloeren zijn van beton.
• Alle beglazing is dubbel.
• In de techniekkast zijn ook de aansluitpunten aanwezig voor wasmachine en droger.
• In de entree/hal is een ruime garderobehoek.
• De daglichtvolle living waarin genoeg plek is voor het ruimtelijk en gezellig kunnen opstellen van zowel een zit- als eethoek.
• De vijf uitstekende (slaap)kamers die uiteraard multifunctioneel inzetbaar zijn.
• De keuken is onder andere voorzien van een inductiekookplaat, afzuigkap, vaatwasser en koelvriescombinatie.
• De badkamer is ingericht met een inloopdouche, wastafel, planchet en een spiegel.
• De twee separate toiletten zijn voorzien van een fonteintje.
• Het privacyvolle terras ligt prettig op de zon, is voorzien van fraaie tegels, er is buitenelektra voorhanden en een elektrisch bedienbaar zonnescherm.
• Er zijn verschillende horren aanwezig.
• Bergruimte is er plenty voorhanden, onder meer in de verschillende inbouwkasten en op de zolder. Als je een royale inpandige berging wil, voor bijvoorbeeld fietsen en of klusruimte, dan kun je een van de kamers op de begane grond daarvoor gebruiken, desgewenst op maat aan te passen door een wand of wanden te verplaatsen- dat moet een dan een kleine ingreep zijn.
• De parkeerplek ter hoogte van de woning op het afgesloten terrein wordt gehuurd voor € 50,- per maand - naar het laat aanzien kan deze huurovereenkomst worden overgenomen.
• Het is er wonen in een rustige (kind)vriendelijke omgeving- kom het maar eens beleven.
• Wij noemen een huis als dit in de volksmond een hoekwoning, formeel is het een eindwoning.
• Verschillende kinderopvang- en basisscholen zijn dichtbij, de middelbare school is op fietsafstand.
• Den Helder is rijk aan sportieve en actieve inwoners, er is daarom een behoorlijke diversiteit aan sportclubs, verenigingen en sportscholen.
• Openbaar vervoer tref je op loopafstand, het centraal station ligt op ongeveer 600 meter.
• Nagenoeg alle dagelijks gewenste voorzieningen zijn direct voorhanden.
• Duinen, strand en zee zijn in Den Helder natuurlijk nooit ver weg, het strand van Huisduinen ligt op ongeveer 4 kilometer en bereik je op een fiets met ongeveer vijftien fietsminuten.
• Via het uitstekende netwerk aan fietspaden ben je in korte tijd in de verschillende stadsdelen, uiteraard ook met een auto.
Alle moeite is genomen om de informatie hierboven omtrent het aangebodene zo accuraat en actueel mogelijk weer te geven. Fouten zijn echter nooit uit te sluiten. Vertrouw daarom nooit alleen op deze informatie, maar controleer daarom bij aankoop grondig de zaken die uw beslissing zouden kunnen beïnvloeden. Voorts heeft alle informatie een indicatief karakter, waaronder doch niet uitsluitend maatvoering; er kunnen geen rechten aan worden ontleend. Verrekening wegens over- of ondermaat is uitgesloten. Tevens is het schriftelijkheidsvereiste op alle via ons aangeboden objecten van toepassing, een aanbieding is altijd vrijblijvend en verkoper behoudt zich te allen tijde het recht van gunning voor alsook het recht om zonder mogelijke bieders of geïnteresseerden te verwittigen van het wijzigen van de verkoopwijze, ook al hebben zij bijvoorbeeld geboden middels inschrijving (verkoopwijze is bijvoorbeeld via onderhandeling, op inschrijving, transparant bieden of veiling).
Kenmerken
Overdracht
- Aangeboden sinds
- Aanvaarding
- In overleg
- Vraagprijs
- € 377.500 kosten koper
- Vraagprijs per m²
- € 2.534
- Status
- Verkocht onder voorbehoud
Bouw
- Soort woonhuis
- Eengezinswoning, eindwoning
- Soort bouw
- Bestaande bouw
- Bouwjaar
- 2012
Oppervlakten en inhoud
- Gebruiksoppervlakten
- Wonen
- 149 m²
- Overige inpandige ruimte
- 10 m²
- Gebouwgebonden buitenruimte
- 19 m²
- Perceel
- 59 m²
- Inhoud
- 589 m³
Indeling
- Aantal kamers
- 6 kamers (5 slaapkamers)
- Aantal woonlagen
- 3 woonlagen en een vliering
Energie
- Energielabel
- A
Kadastrale gegevens
- DEN HELDER E 10805
- Kadastrale kaart
- Oppervlakte
- 59 m²
- Eigendomssituatie
- Volle eigendom
Buitenruimte
- Tuin
- Zonneterras
Foto's 43
© 2001-2025 funda










































