Dit huis op Funda: https://www.funda.nl/detail/koop/den-helder/huis-meeuwenstraat-11/43954884/

Omschrijving
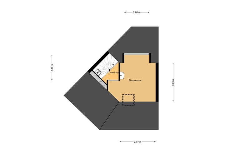
Dit bijzondere woonhuis heeft veel meer ruimte binnen dan dat je van buiten kunt zien. Dit unieke huis staat namelijk in ''de knik" van de straat en elke ruimte in huis heeft daardoor een verrassende indeling, Bekijk hiervoor alvast de plattegrond van deze woning.
De woning is op loopafstand gelegen van het NS-station, winkels, scholen en restaurants. Indeling: entree, hal met meterkast, trapopgang en toiletruimte. De woonkamer is zeer ruim en heeft door de diverse raampartijen een mooie lichtinval. De keuken tref je aan de achterzijde van de woning en deze is ingericht met kookplaat, afzuigkap, koelkast en vaatwasser en aansluitend de bijkeuken (2000). Via de bijkeuken toegang tot een knusse achtertuin met het grootste deel van de dag de zon. Achterin staat een fietsenberging.
Op de 1e verdieping 2 ruime nette slaapkamers en een prachtige badkamer v.v. 2e toilet, wastafelmeubel, douchecabine en vloerverwarming. De badkamer is in 2009 rechtopgetrokken, dus heerlijk ruim.
Op de 2e verdieping tref je de opstelling van het verwarmingssysteem alsmede een mooie 3e slaapkamer.
De woning is voorzien van 9 zonnepanelen (2020).
Dit is een prachtige woning voor starters op de woningmarkt. Wij geven graag informatie over deze woning en de financieringsmogelijkheden. Maak een afspraak voor een rondleiding!
De woning wordt aangeboden met een richtprijs van € 250.000,- k.k.
Kenmerken
Overdracht
- Laatste vraagprijs
- € 250.000 kosten koper
- Vraagprijs per m²
- € 2.577
- Status
- Verkocht
Bouw
- Soort woonhuis
- Eengezinswoning, tussenwoning
- Soort bouw
- Bestaande bouw
- Bouwjaar
- 1938
- Soort dak
- Zadeldak bedekt met pannen
Oppervlakten en inhoud
- Gebruiksoppervlakten
- Wonen
- 97 m²
- Externe bergruimte
- 9 m²
- Perceel
- 113 m²
- Inhoud
- 311 m³
Indeling
- Aantal kamers
- 4 kamers (3 slaapkamers)
- Aantal badkamers
- 1 badkamer en 1 apart toilet
- Badkamervoorzieningen
- Douche, dubbele wastafel, en toilet
- Aantal woonlagen
- 3 woonlagen
- Voorzieningen
- Zonnepanelen
Energie
- Energielabel
- C
- Isolatie
- HR-glas en muurisolatie
- Verwarming
- Cv-ketel en gedeeltelijke vloerverwarming
- Warm water
- Cv-ketel
- Cv-ketel
- Remeha Tzerra (gas gestookt uit 2017, eigendom)
Kadastrale gegevens
- DEN HELDER G 265
- Kadastrale kaart
- Oppervlakte
- 113 m²
- Eigendomssituatie
- Volle eigendom
Buitenruimte
- Ligging
- In woonwijk
- Tuin
- Achtertuin en voortuin
- Achtertuin
- 30 m² (12,50 meter diep en 2,40 meter breed)
- Ligging tuin
- Gelegen op het noorden bereikbaar via achterom
Bergruimte
- Schuur/berging
- Vrijstaande stenen berging
Parkeergelegenheid
- Soort parkeergelegenheid
- Openbaar parkeren
Foto's 20
© 2001-2025 funda



















