Dit huis op Funda: https://www.funda.nl/detail/koop/denekamp/huis-de-paander-19/43069698/

Omschrijving
Twee linkerhanden? Aan deze onderhoudsvriendelijke nieuwbouw woning hoef je niets meer te doen! Ofwel, meubels verhuizen en genieten maar...
Een goed geïsoleerde tussenwoning met hoogwaardig afwerkingsniveau van het bouwjaar 2016! Een luxe keuken, prachtige hoge plafonds, ruime woonkamer met zicht over de achtertuin. Op de verdieping beschikt de woning over maar liefst drie slaapkamers en een moderne badkamer. De tweede verdieping is nog geheel naar eigen smaak in te delen en bijvoorbeeld zeer geschikt zijn als extra slaapkamer of kantoor. De fraai aangelegde achtertuin met handige stenen berging én achterom maken het geheel compleet!
Indeling
Entree/hal; vrijdragend toilet met fonteintje; meterkast; trapopgang naar de eerste verdieping; toegang tot de woonkamer. De woonkamer is aan de achterzijde gesitueerd, is voorzien van een fraaie PVC vloer en biedt middels openslaande deuren toegang tot de achtertuin. De moderne open keuken beschikt over een combi-oven, vaatwasser, inductiekookplaat, afzuigkap, koel-vriescombinatie en een heet kokend waterkraan met boiler. Overigens bevindt zich in de woonkamer een handige trapkast.
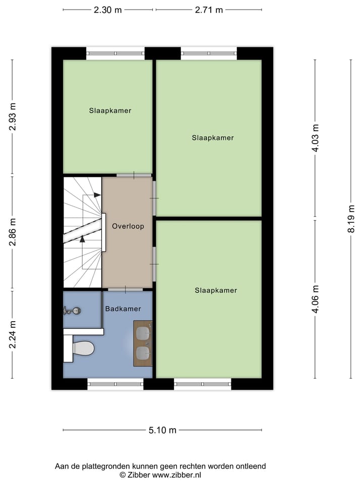
Eerste verdieping
De overloop geeft toegang tot drie slaapkamers en een badkamer. De moderne badkamer is v.v. een inloopdouche, dubbele wastafel en een toilet. De gehele eerste en tweede verdieping beschikt over eenzelfde vinyl vloer.
Tweede verdieping
De tweede verdieping is middels vaste trap te bereiken. Deze open ruimte is met een paar simpele aanpassingen te veranderen naar kantoor of slaapkamer en beschikt over de witgoedaansluitingen en de Intergas CV ketel (2017, eigendom).
Tuin
Zowel per achterom als ook middels de woonkamer te bereiken. De achtertuin welke is gesitueerd op het Noord Westen is onderhoudsvriendelijk en is voorzien van een overkapping met grenzend een handige stenen berging, ideaal voor het opbergen van diversen.
Bijzonderheden
- Bouwjaar: 2016
- Perceeloppervlakte: 126 m2
- Woonoppervlakte: 103 m2
- Volledig geïsoleerd, energiezuinige woning (label A+)
- Moderne keuken met diverse inbouwapparatuur
- Drie slaapkamers op de 1e verdieping
- Royale open ruimte op zolder
- Onderhoudsvriendelijke tuin met stenen berging
- Intergas CV opstelling (2017, eigendom)
- 8 zonnepanelen (2016)
- Aanvaarding in overleg
- Bij koop is een waarborgsom/bankgarantie vereist van 10% van de koopsom
Kenmerken
Overdracht
- Laatste vraagprijs
- € 325.000 kosten koper
- Vraagprijs per m²
- € 3.155
- Status
- Verkocht
Bouw
- Soort woonhuis
- Eengezinswoning, tussenwoning
- Soort bouw
- Bestaande bouw
- Bouwjaar
- 2016
- Soort dak
- Zadeldak bedekt met pannen
- Keurmerken
- Energie Prestatie Advies
Oppervlakten en inhoud
- Gebruiksoppervlakten
- Wonen
- 103 m²
- Externe bergruimte
- 7 m²
- Perceel
- 129 m²
- Inhoud
- 365 m³
Indeling
- Aantal kamers
- 4 kamers (3 slaapkamers)
- Aantal badkamers
- 1 badkamer en 1 apart toilet
- Badkamervoorzieningen
- Dubbele wastafel, inloopdouche, toilet, en vloerverwarming
- Aantal woonlagen
- 3 woonlagen
- Voorzieningen
- Buitenzonwering, dakraam, glasvezelkabel, mechanische ventilatie, en zonnepanelen
Energie
- Energielabel
- Isolatie
- Dakisolatie, dubbel glas, HR-glas, muurisolatie, vloerisolatie en volledig geïsoleerd
- Verwarming
- Cv-ketel en gedeeltelijke vloerverwarming
- Warm water
- Cv-ketel en elektrische boiler
- Cv-ketel
- Intergas CW-4 (gas gestookt combiketel uit 2017, eigendom)
Kadastrale gegevens
- DINKELLAND P 2271
- Kadastrale kaart
- Oppervlakte
- 129 m²
- Eigendomssituatie
- Volle eigendom
Buitenruimte
- Ligging
- Aan rustige weg en in woonwijk
- Tuin
- Achtertuin
- Achtertuin
- 30 m² (6,00 meter diep en 5,00 meter breed)
- Ligging tuin
- Gelegen op het noordwesten bereikbaar via achterom
Bergruimte
- Schuur/berging
- Vrijstaande stenen berging
- Voorzieningen
- Elektra
Parkeergelegenheid
- Soort parkeergelegenheid
- Openbaar parkeren
Foto's 35
© 2001-2026 funda


































