Dit huis op Funda: https://www.funda.nl/detail/koop/deventer/huis-veenweg-146/43172168/

Omschrijving
Te koop: Instapklare sfeervolle hoekwoning aan de rand van het centrum met privé parkeergelegenheid voor twee auto's.
Dit huis zal je verrassen op een zeer positieve manier en is bovendien uitstekend onderhouden.
Er zijn 3 woonlagen en een multifunctioneel souterrain, de bruto vloeroppervlakte in totaal is 212 m².
De ruime veranda heeft een houtkachel, het is heerlijk vertoeven, met zicht over de sfeervolle tuin en de groene omgeving. De zonsondergang is goed te bewonderen vanaf deze overdekte buitenruimte.
De woning is grotendeels gerenoveerd en gemoderniseerd, het afwerkniveau is hoog.
Alle wanden en plafonds zijn gestuct en al het leidingwerk en elektra is vernieuwd.
Op het gebied van duurzaamheid is er al veel gedaan aan isolatie.
Kortom: Een uitstekende woning op een geliefde locatie, met voorzieningen op loopafstand.
Kom dit zelf ervaren, wij leiden u graag rond.
Af te vinken woonwensen aanwezig:
-Fraaie moderne badkamer (april 2025)
-Comfortabele vloerverwarming op de begane grond en op de 1e verdieping.
-Diepe zonnige tuin.
-Parkeren van 2 auto's d.m.v. dubbele carport
-Onderhoudsvriendelijk: recentelijk op de 1e verdieping volledig kunststof kozijnen & kunststof dakkapel op zolder, tevens aluminium boeidelen geplaatst.
-Jaren '30 ambience, met comfort van nu.
-Nokvorsten opnieuw laten dichtsmeren en schoorsteen vernieuwd 2025.
-Airco in 2024 geplaatst.
-C.V.-ketel Remeha Avanta 2024.
-8 stuks zonnepanelen in 2024 geplaatst.
Op slechts enkele minuten lopen vindt u de mooie oude binnenstad van Deventer.
Ook het CS station is op korte afstand en de snelweg (5 min rijden) is zeer goed bereikbaar.
Indeling.
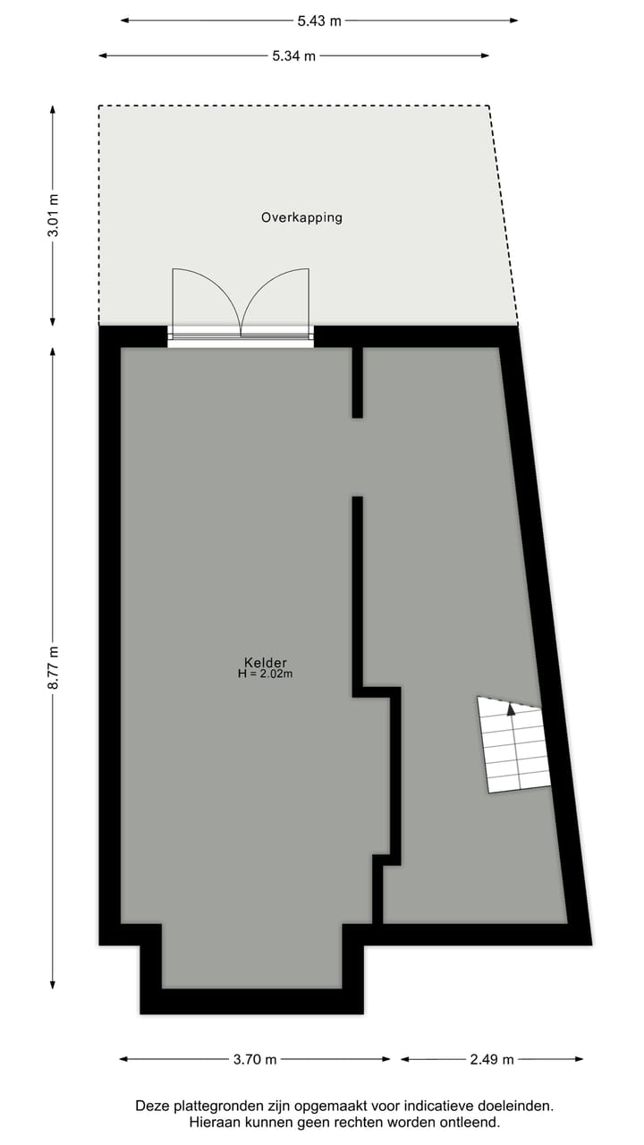
Souterrain/kelder:
De souterrain/kelder is van binnenuit te bereiken.
Deze gebruiksruimte van ca. 47 m² heeft openslaande deuren en een deel hier is een overkapping van de bovengelegen veranda (14 m²) . Vanuit de tuin is dit souterrain (hoogte 2.02 m.) ook bereikbaar. De ruimtes zijn voorzien van een betonnen vloer en zijn geïsoleerd. Kortom een praktische gebruiksruimte: ideaal voor kantoor aan huis, atelier, werkplaats, fitnessruimte etc.
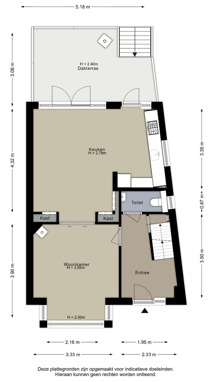
1e Woonlaag/ Begane grond:
Overdekte entree: de hal geeft toegang tot de kelder en een vergroot en vernieuwd modern toilet met fonteintje en raampje. Onder andere het karakteristieke beton emaille bij binnenkomst verzorgt direct een authentieke sfeer, maar ook de trap, de paneeldeuren, de erker, de en suite deuren dragen hier aan bij.
De ruime woonkamer (hoogte 2.65 m) en suite is voorzien van schuifdeuren en een erker. Er is een schouw met gashaard, een eiken vloer en openslaande deuren naar een royale veranda van circa 15 m².
De open keuken is in een hoekopstelling het zijraam biedt veel licht en zicht. De hoogte hier bedraagt maar liefst 2.79 m. en de woonkeuken is mede hierdoor een zeer prettige verblijfsruimte. De keuken is voorzien van een granito werkblad en inbouwapparatuur (vaatwasser 2024 vernieuwd) en heeft een deur naar buiten.
Vanaf de veranda leidt een trap naar de diepe tuin.
2e Woonlaag:
Overloop met toegang tot drie slaapkamers, de hagelnieuwe moderne badkamer en de trapopgang naar zolder. Authentieke details in de vorm van de originele deuren met vernieuwd deurbeslag.
Twee slaapkamers zijn voorzien van een vaste kast. De badkamer is in het verleden iets verruimd en in 2025 volledig vernieuwd: inloopdouche, toilet, wastafelmeubel en een praktische badkamerkast. Het leidingwerk is netjes weggewerkt. Tevens is er vloerverwarming en mechanische afzuiging.
Vanuit de grote slaapkamer aan de achterzijde is het balkon bereikbaar.
3e Woonlaag:
Keurig afgewerkte zolderruimte met een kunststof dakkapel aan de voorzijde. Aan de achterzijde is middels een schuifdeur een slaapkamer met een groot dakraam. Naast voldoende bergruimte achter de schotten is er de opstelplaats voor de wasapparatuur en de C.V.-ketelopstelling.
Bijzonderheden:
De twee carportplaatsen zijn kosteloos in gebruik van de gemeente.
Gebruiksoppervlakte ca. 156 m² (incl. souterrain/kelder van ca. 47 m²)
Alle plafonds zijn geïsoleerd.
Spouwmuurisolatie.
Waterontharder aanwezig.
Close in boiler voor de keuken aanwezig.
Nokvorsten opnieuw laten dichtsmeren en schoorsteen vernieuwd 2025.
Algemeen:
Woonoppervlakte NEN 2580: ca. 110 m²
Inhoud: ca. 500 m³
Perceeloppervlakte: 168 m²
Aanvaarding in overleg. Gewenste overdracht januari 2026
Voor meer informatie over deze woning, neem een kijkje in de verkoopbrochure.
Of neem contact op met het team van Tysma Makelaars.
Interesse in dit huis? Schakel direct uw eigen NVM aankoopmakelaar in.
Uw NVM aankoopmakelaar komt op voor uw belang en bespaart u tijd, geld en zorgen.
Adressen van collega NVM kantoren vindt u op Funda.nl.
Kenmerken
Overdracht
- Laatste vraagprijs
- € 595.000 kosten koper
- Vraagprijs per m²
- € 5.409
- Status
- Verkocht
Bouw
- Soort woonhuis
- Eengezinswoning, hoekwoning
- Soort bouw
- Bestaande bouw
- Bouwjaar
- 1935
- Soort dak
- Zadeldak bedekt met pannen
Oppervlakten en inhoud
- Gebruiksoppervlakten
- Wonen
- 110 m²
- Overige inpandige ruimte
- 47 m²
- Gebouwgebonden buitenruimte
- 33 m²
- Perceel
- 168 m²
- Inhoud
- 500 m³
Indeling
- Aantal kamers
- 6 kamers (4 slaapkamers)
- Aantal badkamers
- 1 badkamer en 1 apart toilet
- Badkamervoorzieningen
- Inloopdouche, toilet, vloerverwarming, en wastafelmeubel
- Aantal woonlagen
- 3 woonlagen en een kelder
- Voorzieningen
- Airconditioning, buitenzonwering, dakraam, glasvezelkabel, mechanische ventilatie, en zonnepanelen
Energie
- Energielabel
- C
- Isolatie
- Dakisolatie, gedeeltelijk dubbel glas, muurisolatie en vloerisolatie
- Verwarming
- Cv-ketel, gashaard en gedeeltelijke vloerverwarming
- Warm water
- Elektrische boiler
- Cv-ketel
- Remeha Avanta Ace 28C (gas gestookt combiketel uit 2024, eigendom)
Kadastrale gegevens
- DEVENTER B 17163
- Kadastrale kaart
- Oppervlakte
- 36 m²
- Eigendomssituatie
- Volle eigendom
- DEVENTER B 12346
- Kadastrale kaart
- Oppervlakte
- 132 m²
- Eigendomssituatie
- Volle eigendom
Buitenruimte
- Ligging
- In woonwijk
- Tuin
- Achtertuin, voortuin en zonneterras
- Achtertuin
- 80 m² (16,00 meter diep en 5,00 meter breed)
- Ligging tuin
- Gelegen op het westen bereikbaar via achterom
- Balkon/dakterras
- Dakterras aanwezig en balkon aanwezig
Bergruimte
- Schuur/berging
- Inpandig
Garage
- Soort garage
- Carport
Parkeergelegenheid
- Soort parkeergelegenheid
- Betaald parkeren, op eigen terrein en openbaar parkeren
Foto's 68
© 2001-2025 funda



































































