
Omschrijving
Unieke kans op een geweldige locatie in het centrum van Diemen. Luxe, geheel gerenoveerde half vrijstaande woning, met grote GARAGE en een riante tuin op het zuiden!
***English version below***
Bekijk ook onze virtuele tour!
Deze sfeervolle 5 kamer hoekwoning van ca. 106 m², gelegen op een toplocatie in het gewilde Diemen-Centrum, is een echte aanrader. Met 4 slaapkamers, een garage van circa 15 m² (exclusief zolder), een carport, en een royale voor-, zij- en achtertuin, biedt deze woning volop ruimte voor grote gezinnen. Het huis staat op een riant perceel van maar liefst 242 m² en is door de huidige eigenaren (bijna) volledig gerenoveerd, waardoor het een ideale instapklare woning is.
We beginnen alvast met wat "Highligths" Hoe geweldig is het als je komt aanrijden, het op afstand bedienbare automatische hek open gaat en je rijdt de auto onder de carport of in de garage... maar dat is nog niet alles: buitengevel schoongemaakt, opnieuw gevoegd, voor-achter- en zijgevels geïsoleerd, begane grond vloer geïsoleerd en voorzien van pvc vloer met vloerverwarming, vernieuwde keuken, toilet, badkamer, glad gestuukte wanden en plafond, vernieuwde en uitgebreide groepenkast, glasvezel voorbereiding, de garage is opnieuw opgemetseld... en ja we kunnen doorgaan....
Met het grote winkelcentrum "Diemerplein" op loopafstand zijn niet alleen de boodschappen zo gedaan, ook ben je binnen een mum van tijd bij diverse eetgelegenheden en terrasjes. Scholen, kinderdagverblijven, theater “De Omval”, de bibliotheek, apotheek en een gezellige (dag)markt op woensdag, mogen natuurlijk niet ontbreken. Met diverse sportaccommodaties in de buurt hoef je zeker niet stil te zitten. In de omgeving zijn er diverse opstapplaatsen voor het openbaar vervoer (bus, tram 19 en trein). Parkeren kun je op eigen terrein maar tevens is er voldoende parkeergelegenheid (parkeervergunning met € 96,- voor 2 jaar, voor 2e auto direct verkrijgbaar) en er zijn diverse uitvalswegen in de buurt (A1, A2, A10). Kortom, de bereikbaarheid is uitstekend en dit op nog geen 10 minuten van hartje Amsterdam! Zoek je de rust? Dan is het Diemerbos zeker de moeite waard.
Indeling:
De verzorgde voortuin leidt je naar de entree van de woning. In de hal heb je direct toegang tot de meterkast, trapkast en het moderne toilet voorzien van vloerverwarming, een wandcloset en fonteintje. Vanuit de gang is er tevens toegang tot de sfeervolle woonkamer met gezellige openhaard. De hoekligging van de woonkamer geeft niet alleen een ruim gevoel maar het komt tevens de natuurlijke lichtinval (met extra zijraam) ten goede. Aan de achterzijde van de woning bevindt zich de moderne open keuken, voorzien van diverse inbouwapparatuur zoals: een inductie kookplaat, afzuigkap, elektrische oven, magnetron, vaatwasser en een koelkast met separate vriezer. Vanuit de keuken betreed je de heerlijke zonnige achtertuin gelegen op het zuiden.
De gehele benedenverdieping is afgewerkt met een fraaie pvc-visgraatvloer met vloerverwarming en glad gestuukte wanden en plafonds.
Eerste verdieping:
Deze verdieping telt 3 slaapkamers. Aan de voorzijde van de woning bevinden zich 2 slaapkamers. Aan de achterzijde bevindt zich de derde ruime hoofdslaapkamer met toegang tot een ruim balkon gelegen op het zuiden. De ruime badkamer (voorheen een slaapkamer), is uitgerust met een ligbad, inloopdouche, een fraai wastafelmeubel met dubbele kranen, een tweede zwevend en vloerverwarming. Achterzijde en zijramen voorzien van elektrische screens.
De gehele eerste verdieping is fraai afgewerkt met een laminaat vloer en strak gestuukte wanden en plafonds.
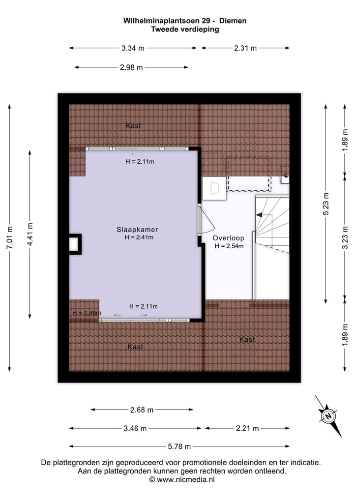
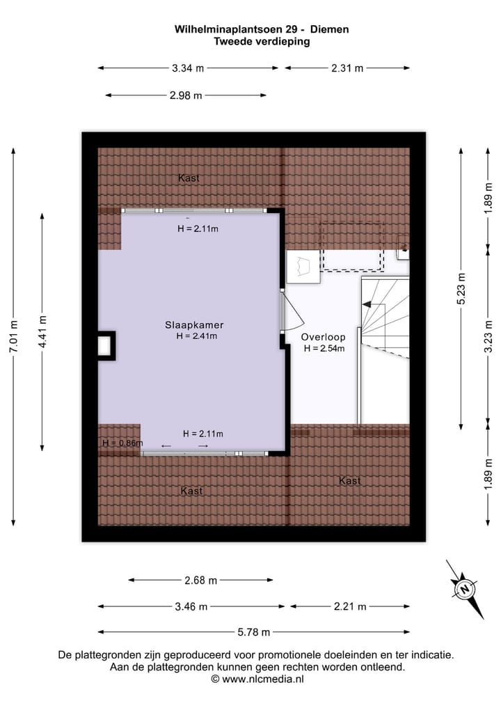
Tweede verdieping:
Via de trap bereik je de tweede verdieping waar zich de 4e ruime slaapkamer bevindt. Door de dakkapellen aan de voor- en achterzijde voelt deze de kamer heerlijk licht en ruim aan. Op de overloop vind je de wasmachine- en drogeropstelling samen met de moderne HR cv-ketel (Intergas 2022). Achter de knieschotten heb je genoeg ruimte voor het opbergen van diverse spullen.
Garage/ carport/ oprit:
Wat een luxe! De woning is namelijk voorzien van een stenen garage (ca. 15 m²), aan de achterzijde een eigen oprit en carport met elektrisch hek. Hier heb je dus ruimte voor wel 2 auto's. Ook is er nog voldoende opbergruimte.
Tuin:
De fraai aangelegde zij- en achtertuin is gelegen op het zuiden. Hier kun je in alle rust en privacy hier heerlijk genieten van een hapje of drankje in de zon. Dankzij de hoekligging is de achtertuin zeer breed en is de achtertuin zowel vanuit de keuken als achterom te betreden. Aan de voorzijde van de woning bevindt zich bovendien nog een nette voortuin.
Bijzonderheden:
- Woonoppervlakte 106 m² (conform NEN-gemeten);
- Eigen grond met een groot perceeloppervlakte 242 m²;
- Gelegen op een toplocatie in het centrum van Diemen;
- Luxe hoekwoning met riante voor- zij- en achtertuin, garage en carport;
- Garage opnieuw opgemetseld, met een punt kap en grote bergzolder;
- Toegangshek voor auto elektrisch en op afstand bedienbaar;
- Met maar liefst 4 slaapkamers is deze woning ideaal voor gezinnen;
- Moderne keuken, sanitair en vernieuwde binnendeuren;
- Uitgebreide nieuwe meterkast, vloer- en spouwmuurisolatie;
- Gevels opnieuw gevoegd en gereinigd, nieuw pannendak;
- Voor- en achterzijde voorzien van een dakkapel;
- Geheel (op 1 raampje na) voorzien van isolatieglas;
- Screens aan de achterzijde en 1e verdieping aan de zijkant, camera's en alarminstallatie;
- Op loopafstand van het winkelcentrum Diemerplein;
- Op loopafstand van NS-treinstation, bus en tramlijn 19;
- Op nog geen 5 minuten afstand van Watergraafsmeer (Amsterdam);
Hebben wij jouw interesse gewekt?
Graag nodigen wij je uit om deze woning te bezichtigen!
***English version***
Unique opportunity in a great location in the center of Diemen. Luxurious, completely renovated semi-detached house, with large GARAGE and a spacious south-facing garden!
Also check out our virtual tour!
This attractive 5-room corner house of approx. 106 m², located in a prime location in the popular Diemen Center, is highly recommended. With 4 bedrooms, a garage of approximately 15 m² (excluding attic), a carport, and a spacious front, side and backyard, this house offers plenty of space for large families. The house stands on a spacious plot of no less than 242 m² and has been (almost) completely renovated by the current owners, making it an ideal ready-to-live home.
We'll start with some "Highlights" How great it is when you drive up, the remote-controlled automatic gate opens and you drive the car under the carport or in the garage... but that's not all: the exterior facade has been cleaned, re-joined, front, rear and side walls insulated, ground floor floor insulated and equipped with PVC floor with underfloor heating, renovated kitchen, toilet, bathroom, smooth plastered walls and ceiling, new and expanded distribution box, fiberglass preparation, the garage has been re-bricked. ..and yes we can continue....
With the large shopping center "Diemerplein" within walking distance, not only can you do your shopping in no time, you can also reach various eateries and terraces in no time. Schools, daycare centers, theater “De Omval”, the library, pharmacy and a pleasant (day) market on Wednesdays should not be missed. With various sports facilities nearby, you certainly don't have to sit still. There are several boarding points in the area for public transport (bus, tram 19 and train). You can park on site, but there is also sufficient parking (parking permit with € 96,- for 2 years, immediately available for 2nd car) and there are several arterial roads in the area (A1, A2, A10). In short, the accessibility is excellent and less than 10 minutes from the heart of Amsterdam! Are you looking for peace and quiet? Then the Diemerbos is definitely worth it.
Layout:
The well-kept front garden leads you to the entrance of the house. In the hall you have direct access to the meter cupboard, stair cupboard and the modern toilet with underfloor heating, a wall-mounted toilet and sink. From the hallway there is also access to the attractive living room with cozy fireplace. The corner location of the living room not only gives a spacious feeling, but it also benefits natural light (with an extra side window). At the rear of the house is the modern open kitchen, equipped with various built-in appliances such as: an induction hob, extractor hood, electric oven, microwave, dishwasher and a refrigerator with separate freezer. From the kitchen you enter the lovely sunny backyard facing south.
The entire ground floor is finished with a beautiful PVC herringbone floor with underfloor heating and smoothly plastered walls and ceilings.
First floor:
This floor has 3 bedrooms. There are 2 bedrooms at the front of the house. At the rear is the third spacious master bedroom with access to a spacious south-facing balcony. The spacious bathroom (formerly a bedroom) is equipped with a bath, walk-in shower, a beautiful washbasin with double taps, a second floating unit and underfloor heating. Rear and side windows equipped with electric screens.
The entire first floor is beautifully finished with a laminate floor and sleek plastered walls and ceilings.
First floor:
This floor has 3 bedrooms. There are 2 bedrooms at the front of the house. At the rear is the third spacious master bedroom with access to a spacious south-facing balcony. The spacious bathroom (formerly a bedroom) is equipped with a bath, walk-in shower, a beautiful washbasin with double taps, a second floating unit and underfloor heating. Rear and side windows equipped with electric screens.
The entire first floor is beautifully finished with a laminate floor and sleek plastered walls and ceilings.
Second floor:
Via the stairs you reach the second floor where the 4th spacious bedroom is located. The dormer windows at the front and rear make the room feel wonderfully light and spacious. On the landing you will find the washing machine and dryer setup together with the modern HR central heating boiler (Intergas 2022). Behind the knee bulkheads you have enough space to store various items.
Garage/carport/driveway:
What luxury! The house has a stone garage (approx. 15 m²), a private driveway and carport with electric gate at the rear. So you have space for up to 2 cars here. There is also plenty of storage space.
Garden:
The beautifully landscaped side and backyard are located on the south. Here you can enjoy a snack or drink in the sun in peace and privacy. Thanks to its corner location, the backyard is very wide and can be accessed from both the kitchen and the back. There is also a neat front garden at the front of the house.
Details:
- Living area 106 m² (measured in accordance with NEN);
- Private land with a large plot area of ??242 m²;
- Located in a prime location in the center of Diemen;
- Luxury corner house with spacious front, side and backyard, garage and carport;
- Garage rebuilt, with a pointed roof and large storage attic;
- Electric and remote controlled entrance gate for cars;
- With no fewer than 4 bedrooms, this house is ideal for families;
- Modern kitchen, sanitary facilities and new interior doors;
- Extensive new meter cupboard, floor and cavity wall insulation;
- Facades re-pointed and cleaned, new tiled roof;
- Front and rear with a dormer window;
- Completely (except for 1 window) fitted with insulating glass;
- Screens at the rear and 1st floor on the side, cameras and alarm system;
- Within walking distance of the Diemerplein shopping center;
- Within walking distance of NS train station, bus and tram line 19;
- Less than 5 minutes away from Watergraafsmeer (Amsterdam);
Have we aroused your interest?
We would like to invite you to view this house!
Kenmerken
Overdracht
- Laatste vraagprijs
- € 875.000 kosten koper
- Vraagprijs per m²
- € 8.255
- Status
- Verkocht
Bouw
- Soort woonhuis
- Eengezinswoning, hoekwoning
- Soort bouw
- Bestaande bouw
- Bouwjaar
- 1959
- Specifiek
- Gedeeltelijk gestoffeerd
- Soort dak
- Samengesteld dak bedekt met bitumineuze dakbedekking en pannen
Oppervlakten en inhoud
- Gebruiksoppervlakten
- Wonen
- 106 m²
- Gebouwgebonden buitenruimte
- 4 m²
- Externe bergruimte
- 15 m²
- Perceel
- 242 m²
- Inhoud
- 369 m³
Indeling
- Aantal kamers
- 5 kamers (4 slaapkamers)
- Aantal badkamers
- 1 badkamer en 1 apart toilet
- Badkamervoorzieningen
- Dubbele wastafel, inloopdouche, ligbad, toilet, vloerverwarming, en wastafelmeubel
- Aantal woonlagen
- 3 woonlagen
- Voorzieningen
- Alarminstallatie, buitenzonwering, dakraam, natuurlijke ventilatie, rookkanaal, en TV kabel
Energie
- Energielabel
- C
- Isolatie
- Dubbel glas, muurisolatie en vloerisolatie
- Verwarming
- Cv-ketel, open haard en gedeeltelijke vloerverwarming
- Warm water
- Cv-ketel
- Cv-ketel
- HR Intergas (gas gestookt combiketel uit 2022, eigendom)
Kadastrale gegevens
- DIEMEN F 1387
- Kadastrale kaart
- Oppervlakte
- 242 m²
- Eigendomssituatie
- Volle eigendom
Buitenruimte
- Ligging
- In centrum en in woonwijk
- Tuin
- Achtertuin, voortuin en zijtuin
- Achtertuin
- 80 m² (7,37 meter diep en 10,80 meter breed)
- Ligging tuin
- Gelegen op het zuiden bereikbaar via achterom
Garage
- Soort garage
- Garage met carport
- Capaciteit
- 2 auto's
- Voorzieningen
- Elektrische deur, vliering en elektra
Parkeergelegenheid
- Soort parkeergelegenheid
- Op afgesloten terrein, op eigen terrein, openbaar parkeren en parkeervergunningen
Foto's 59
© 2001-2025 funda


























































