Dit huis op Funda: https://www.funda.nl/detail/koop/dirksland/huis-bachplantsoen-3/89538085/

BlikvangerVeel ruimte, tot in de puntjes verzorgd en dichtbij voorzieningen!
Omschrijving
Bachplantsoen 3 – Dirksland
Gezellig wonen met erker, tuin, airco, zonnepanelen en dakkapel
Welkom in Dirksland! Een dorp dat bekend staat om de gemoedelijke sfeer en de centrale ligging op Goeree-Overflakkee. Hier woon je rustig, maar toch dichtbij alle voorzieningen. Voor de dagelijkse boodschappen kun je terecht in het dorp zelf, er zijn scholen, sportverenigingen en medische faciliteiten binnen handbereik. Bovendien ben je met de auto of fiets zo in Middelharnis en richting de Randstad. En hou je van wandelen of fietsen? Dan kun je je hart ophalen in de polders, langs het Haringvliet of in de nabijgelegen natuurgebieden.
Aan het Bachplantsoen vind je deze leuke tussenwoning met tuin, gebouwd in 1997 en goed onderhouden. Met een woonoppervlak van ca. 108 m², een energielabel A en diverse duurzame voorzieningen is dit een woning die niet alleen gezellig maar ook toekomstbestendig is.
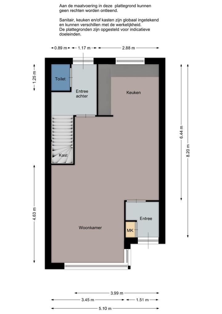
Indeling
Je komt binnen in de hal met toegang tot de woonkamer. Hier valt meteen de lichte erker aan de voorzijde op: een heerlijke plek om een zitje of leeshoek te maken. De woonkamer zelf is ruim en licht, perfect voor een gezellige zithoek én een grote eettafel waar je met familie en vrienden lang kunt natafelen. Dankzij de airconditioning is het hier ook op warme zomerdagen altijd aangenaam.
Aan de achterzijde vind je de open keuken, die uitkijkt op de tuin. Terwijl je staat te koken, hou je altijd contact met de woonkamer en loop je via de achterdeur zo naar buiten. Hier kun je zomers genieten van lange avonden in de tuin.
Op de eerste verdieping zijn er drie slaapkamers: ideaal als ouderslaapkamer, kinderkamers of werkplek. De badkamer is praktisch ingedeeld en voorzien van douche, bad, wastafel en toilet.
De tweede verdieping is verrast met een ruime zolderkamer. Dankzij de dakkapel aan de achterzijde is hier veel extra ruimte en licht gecreëerd, waardoor deze kamer perfect is als extra slaapkamer, een fijne thuiswerkplek of hobbyruimte. Ook vind je hier de omvormer van de 10 zonnepanelen, waarmee je aanzienlijk bespaart op je energiekosten.
Pluspunten
• Gezellige woonkamer met erker;
• Energielabel A – energiezuinig en toekomstgericht;
• Voorzien van airconditioning;
• Dakkapel aan de achterzijde voor extra ruimte en licht;
• Maar liefst 10 zonnepanelen aanwezig;
• Bouwjaar 1997, degelijk en modern gebouwd;
• Woonoppervlak ca. 108 m²;
• Drie slaapkamers en een ruime zolderkamer;
• Fijne achtertuin met achterom;
• Gelegen in een rustige, kindvriendelijke straat;
• Volle eigendom.
Zie jij jezelf hier al wonen?
Of je nu op zoek bent naar je eerste woning, een fijn gezinshuis of gewoon een gezellige plek in Dirksland – Bachplantsoen 3 heeft het allemaal. Met zonnepanelen, airco, energielabel A en een dakkapel woon je hier comfortabel én duurzaam.
Ben je nieuwsgierig geworden? Plan dan snel een bezichtiging. Wie weet zeg jij straks: ja, dit is mijn nieuwe thuis!
Kenmerken
Overdracht
- Aangeboden sinds
- Aanvaarding
- In overleg
- Vraagprijs
- € 390.000 kosten koper
- Vraagprijs per m²
- € 3.545
- Status
- Verkocht onder voorbehoud
Bouw
- Soort woonhuis
- Eengezinswoning, tussenwoning
- Soort bouw
- Bestaande bouw
- Bouwjaar
- 1997
- Soort dak
- Zadeldak bedekt met pannen
Oppervlakten en inhoud
- Gebruiksoppervlakten
- Wonen
- 110 m²
- Externe bergruimte
- 8 m²
- Perceel
- 114 m²
- Inhoud
- 365 m³
Indeling
- Aantal kamers
- 5 kamers (4 slaapkamers)
- Aantal badkamers
- 1 badkamer en 1 apart toilet
- Badkamervoorzieningen
- Douche, ligbad, toilet, en wastafelmeubel
- Aantal woonlagen
- 2 woonlagen en een zolder
- Voorzieningen
- Airconditioning, buitenzonwering, dakraam, en zonnepanelen
Energie
- Energielabel
- A
- Isolatie
- Volledig geïsoleerd
- Verwarming
- Cv-ketel en gedeeltelijke vloerverwarming
- Warm water
- Cv-ketel
- Cv-ketel
- Remeha (gas gestookt combiketel uit 2016, eigendom)
Kadastrale gegevens
- DIRKSLAND B 4808
- Kadastrale kaart
- Oppervlakte
- 114 m²
- Eigendomssituatie
- Volle eigendom
Buitenruimte
- Ligging
- Beschutte ligging en in woonwijk
- Tuin
- Achtertuin en voortuin
- Achtertuin
- 50 m² (9,30 meter diep en 5,40 meter breed)
- Ligging tuin
- Gelegen op het westen bereikbaar via achterom
Bergruimte
- Schuur/berging
- Vrijstaande stenen berging
- Voorzieningen
- Elektra
Parkeergelegenheid
- Soort parkeergelegenheid
- Openbaar parkeren
Foto's 42
Plattegronden 3
© 2001-2025 funda












































