
Omschrijving
In een rustige buurt in Dirksland wordt u deze leuke hoekwoning aangeboden. De woning, gelegen op een perceel van 160 m², heeft een ruime woon-/eetkamer, een keuken en drie slaapkamers. De achtertuin is gelegen op het westen.
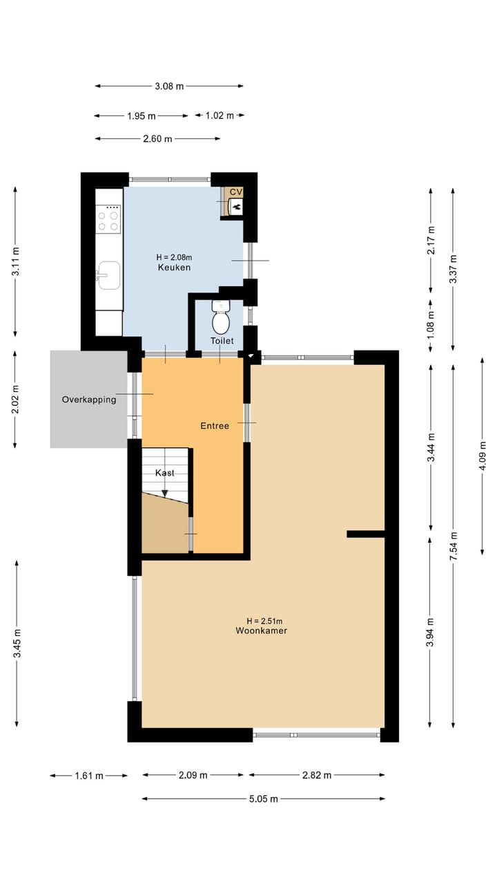
INDELING
Begane grond:
De entreehal, met toilet en trapopgang, geeft toegang tot de woon-/eetkamer en de keuken. De woonkamer, aan de voorzijde van de woning gelegen, is voorzien van een laminaatvloer. De grote raampartijen zorgen voor veel lichtinval. In het verlengde van de woonkamer is de eetkamer gesitueerd. De keuken, bereikbaar vanuit de entreehal, is voorzien van veel opbergruimte en diverse apparatuur: kookplaat, afzuigkap, oven, koelkast, vaatwasser en inbouwspots. Vanuit de keuken heeft u toegang tot de tuin.
Eerste verdieping:
De overloop, met enkele vaste kasten en een berging met daarin de witgoedaansluitingen, geeft toegang tot drie slaapkamers en de badkamer. De slaapkamers zijn voorzien van een laminaatvloer. De geheel betegelde badkamer is voorzien van een ligbad met douchegelegenheid, een wastafel met badmeubel, een designradiator en een deur naar het balkon.
Vliering:
De vliering is vanaf de overloop bereikbaar middels een vlizotrap.
Tuin, berging en balkon:
De achtertuin, gelegen op het westen, is voorzien van bestrating en daardoor onderhoudsarm. De schutting rondom zorgt voor voldoende privacy. Het is hier heerlijk vertoeven. Achter in de tuin staat de royale berging.
Links van de woning is de oprit, waar u uw auto kunt parkeren.
Op de eerste verdieping heeft u vanuit de badkamer toegang tot het ruime balkon. Het balkon is gelegen op het westen.
Bijzonderheden:
– Oplevering: in overleg
– Ruime woon-/eetkamer
– Drie slaapkamers
– Balkon
– Tuin, gelegen op het westen
– Rustige buurt
Kenmerken
Overdracht
- Laatste vraagprijs
- € 300.000 kosten koper
- Vraagprijs per m²
- € 3.448
- Status
- Verkocht
Bouw
- Soort woonhuis
- Eengezinswoning, hoekwoning
- Soort bouw
- Bestaande bouw
- Bouwjaar
- 1965
- Soort dak
- Zadeldak bedekt met pannen
Oppervlakten en inhoud
- Gebruiksoppervlakten
- Wonen
- 87 m²
- Overige inpandige ruimte
- 5 m²
- Gebouwgebonden buitenruimte
- 17 m²
- Externe bergruimte
- 10 m²
- Perceel
- 160 m²
- Inhoud
- 343 m³
Indeling
- Aantal kamers
- 4 kamers (3 slaapkamers)
- Aantal badkamers
- 1 badkamer en 1 apart toilet
- Badkamervoorzieningen
- Ligbad en wastafel
- Aantal woonlagen
- 2 woonlagen en een vliering
- Voorzieningen
- Glasvezelkabel
Energie
- Energielabel
- C
- Isolatie
- Dubbel glas, HR-glas, muurisolatie en vloerisolatie
- Verwarming
- Cv-ketel
- Warm water
- Cv-ketel
- Cv-ketel
- Nefit (gas gestookt combiketel uit 2023, eigendom)
Kadastrale gegevens
- DIRKSLAND B 2960
- Kadastrale kaart
- Oppervlakte
- 160 m²
- Eigendomssituatie
- Volle eigendom
Buitenruimte
- Ligging
- Aan rustige weg en in woonwijk
- Tuin
- Achtertuin, voortuin en zijtuin
- Achtertuin
- 68 m² (9,17 meter diep en 7,38 meter breed)
- Ligging tuin
- Gelegen op het westen bereikbaar via achterom
- Balkon/dakterras
- Balkon aanwezig
Bergruimte
- Schuur/berging
- Vrijstaande houten berging
Parkeergelegenheid
- Soort parkeergelegenheid
- Openbaar parkeren
Foto's 35
© 2001-2025 funda


































