
Driebergsestraatweg 13-A3941 ZW DoornDoorn-Zuid
€ 899.000 v.o.n.
Omschrijving
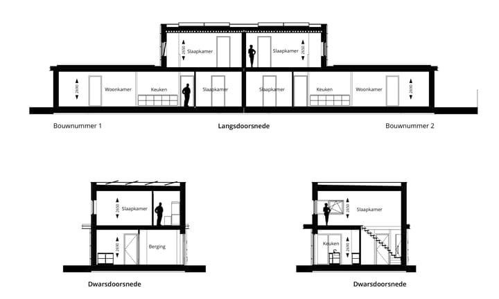
NIEUWBOUW Op de Utrechtse Heuvelrug, tussen Driebergen en Doorn worden 2 halfvrijstaande semi-bungalows gerealiseerd op riante percelen. De moderne woningen voldoen aan alle hedendaagse eisen en worden gebouwd met eigen lucht-water warmtepomp, op alle verdiepingen vloerverwarming, optimale isolatie (EPC = 0,4) en zonnepanelen op het dak. Via de mandelige weg zijn beide woningen bereikbaar, bij beide woningen zullen. Op eigen terrein worden in totaal 4 parkeerplaatsen gerealiseerd.
Omschrijving van de woningen:
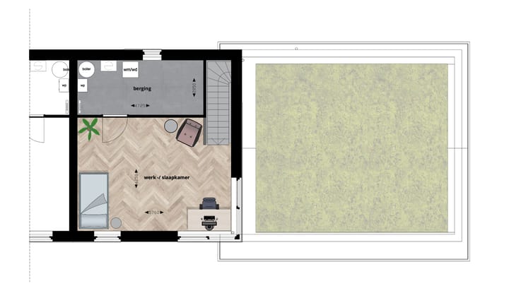
De woningen beschikken over riante woonkamers met grote raampartijen en openslaande deuren naar de ruime tuin, open keuken (zonder keukenopstelling), slaapkamer en badkamer op de begane grond en een inpandige berging. Zowel de badkamer als toilet worden standaard betegeld en afgewerkt met sanitair van het merk Geberit. Op de 1e verdieping is een open ruimte die vrij in te delen is en te gebruiken is als werkkamer of extra slaapkamer. Daarnaast is er een technische ruimte met daarin de warmtepomp, boiler en ook de opstelplaats voor de wasmachine en droger.
De woonoppervlakte van beide woningen is 126 m². Kavelgrootte is 773 of 309 m², de mandelige weg is 92 m².
Bouwnummer 1: € 835.000,00 v.o.n.
Bouwnummer 2: € 899.000,00 v.o.n.
Beide woningen worden gebouwd met Woning Garantie.
Bent u al geïnteresseerd? Bel één van de makelaars.
Kenmerken
Overdracht
- Aangeboden sinds
- Aanvaarding
- In overleg
- Vraagprijs
- € 899.000 vrij op naam
- Vraagprijs per m²
- € 7.135
- Status
- Beschikbaar
Bouw
- Soort woonhuis
- Eengezinswoning, 2-onder-1-kapwoning
- Soort bouw
- Bestaande bouw
- Bouwjaar
- 2024
- Soort dak
- Plat dak bedekt met bitumineuze dakbedekking en overig
- Keurmerken
- Woningborg Garantiecertificaat
Oppervlakten en inhoud
- Gebruiksoppervlakten
- Wonen
- 126 m²
- Perceel
- 773 m²
- Inhoud
- 460 m³
Indeling
- Aantal kamers
- 3 kamers (2 slaapkamers)
- Aantal badkamers
- 1 badkamer en 1 apart toilet
- Badkamervoorzieningen
- Inloopdouche, toilet, en wastafelmeubel
- Aantal woonlagen
- 2 woonlagen
- Voorzieningen
- Balansventilatie, TV kabel, en zonnepanelen
Energie
- Energielabel
- A+++
- Isolatie
- Dakisolatie, dubbel glas, HR-glas, muurisolatie, vloerisolatie en volledig geïsoleerd
- Verwarming
- Gehele vloerverwarming en warmtepomp
- Warm water
- Elektrische boiler
Kadastrale gegevens
- DOORN A 7513
- Kadastrale kaart
- Oppervlakte
- 773 m² (deelperceel)
- Eigendomssituatie
- Volle eigendom
Buitenruimte
- Tuin
- Tuin rondom
Parkeergelegenheid
- Soort parkeergelegenheid
- Op eigen terrein
Foto's 14
© 2001-2025 funda













