
Omschrijving
Dordrecht - Wielwijk
Heeft u interesse in deze woning? Laat het ons weten via "Reageer op dit object" of op Funda via "stuur een e-mail".
Vraagprijs: € 215.000,-- k.k.
Ruim, licht, 4- kamer maisonnette woning met een zonnig balkon op het Zuiden en een berging in de onderbouw.. Geheel voorzien van isolerend glas en een net keukenblok.
Het appartement is gelegen op de eerste en tweede verdieping van een net complex vlak bij het gezellige Admiraalsplein. Er rijdt een bus door de wijk en vanaf het appartement is de reistijd naar de A16 nog geen 5 minuten.
Indeling:
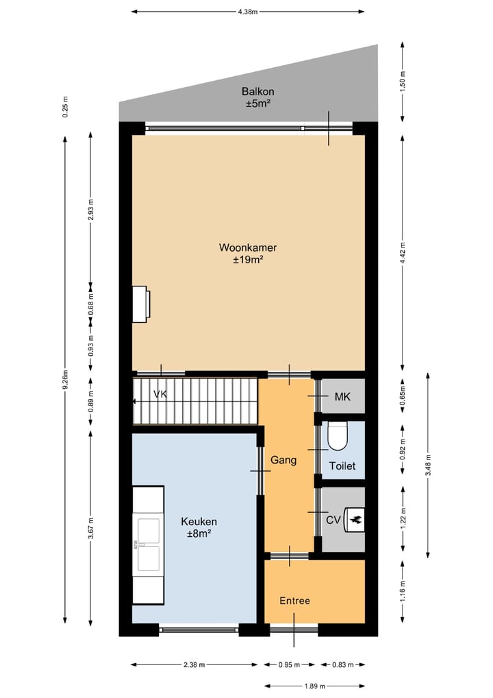
Begane grond;
Hal/ afgesloten entree met brievenbussen en bellentableau, trapopgang naar de verdiepingen en toegang tot de bergingen.
Eerste verdieping;
Entree/hal, meterkast, dichte keuken met hangplaats van de CV- combiketel, toilet en de ruime woonkamer met aansluitend balkon.
Tweede verdieping;
Ruime overloop, badkamer en toegang tot de 3 slaapkamers.
Berging:
In de onderbouw van het complex.
Afmetingen:
- Woonkamer: totaal ± 19 m²
- Keuken: totaal ± 8 m²
- Badkamer: totaal ± 2 m²
- Slaapkamer 1: totaal ± 15 m²
- Slaapkamer 2: totaal ± 8 m²
- Slaapkamer 3: totaal ± 6 m²
- Berging: totaal ± 6 m²
- Balkon: totaal ± 5 m²
Bijzonderheden:
- Fijne ligging;
- Maandelijkse VvE bijdrage appartement circa €145 per maand;
- Projectnotaris van toepassing;
- Anti speculatiebeding van toepassing voor de duur van 2 jaar;
- Eeuwigdurende zelfbewoningsplicht;
- Erfpacht eeuwigdurend afgekocht.
Bij aankoop van deze woning zal de oplevering binnen 6 weken plaatsvinden. Indien u over wilt gaan tot een optie of aankoop van de woning dient u aan te tonen dat de koopsom van de woning voor u financieel haalbaar is. Dit kan aangetoond worden door bijvoorbeeld afgifte van een uitgebracht advies door een daartoe deskundige en erkende financiële instelling of adviseur.
Plattegronden en afmetingen zijn indicatief.
Heeft u interesse in deze woning? Laat het ons weten via de oranje knop "stuur een e-mail".
Dit is een woning die u koopt op de vrije markt. Verbouwen of tussentijds een extra financiering voor een verbouwing afsluiten, dat regelt u zelf zonder aanvullende voorwaarden.
Wanneer u weer wilt verhuizen en de woning verkoopt, kunt u zelf een verkoopmakelaar uitzoeken die de woning voor u verkoopt op de vrije markt waarbij u zelf de verkoopprijs bepaalt.
U mag de woning niet verhuren of op andere wijze in gebruik geven aan anderen, dit geldt ook voor opvolgende eigenaren als u de woning weer gaat verkopen! Bewoning of huur door een eerstegraads bloed- of aanverwant wordt als eigen bewoning beschouwd. Het is niet toegestaan om de woning binnen twee jaar na het tekenen van de akte van levering te verkopen. Dit wordt opgenomen in de koopovereenkomst en akte van levering.
Kenmerken
Overdracht
- Oorspronkelijke vraagprijs
- € 230.000 kosten koper
- Laatste vraagprijs
- € 215.000 kosten koper
- Vraagprijs per m²
- € 2.622
- Status
- Verkocht
- Bijdrage VvE
- € 145,00 per maand
Bouw
- Soort appartement
- Maisonnette (appartement)
- Soort bouw
- Bestaande bouw
- Bouwjaar
- 1959
- Soort dak
- Plat dak
Oppervlakten en inhoud
- Gebruiksoppervlakten
- Wonen
- 82 m²
- Gebouwgebonden buitenruimte
- 5 m²
- Inhoud
- 213 m³
Indeling
- Aantal kamers
- 4 kamers (3 slaapkamers)
- Aantal badkamers
- 1 badkamer en 1 apart toilet
- Badkamervoorzieningen
- Douche
- Aantal woonlagen
- 2 woonlagen
- Gelegen op
- 1e woonlaag
Energie
- Energielabel
- B
- Verwarming
- Cv-ketel
- Warm water
- Cv-ketel
- Cv-ketel
- Remeha Tzerra Ace 28C (gas gestookt combiketel, eigendom)
Kadastrale gegevens
- DORDRECHT M 1753
- Kadastrale kaart
- Eigendomssituatie
- Volle eigendom
Buitenruimte
- Balkon/dakterras
- Balkon aanwezig
Bergruimte
- Schuur/berging
- Inpandig
VvE checklist
- Inschrijving KvK
- Ja
- Jaarlijkse vergadering
- Nee
- Periodieke bijdrage
- Ja (€ 145,00 per maand)
- Reservefonds aanwezig
- Nee
- Onderhoudsplan
- Nee
- Opstalverzekering
- Nee
Foto's 19
© 2001-2025 funda


















