
Omschrijving
Op een unieke plek is dit fijne appartement gelegen! De woning grenst aan de achterzijde aan de Oude Maas en heeft een prachtig, uniek uitzicht wat nooit verveeld! De woning is gelegen aan karakteristieke straat, vanuit de woonkamer aan de voorzijde is er schuin zicht op de Grote Kerk van Dordrecht! De ligging is uniek, aan het water op enkele minuten loopafstand van het centrum! De waterbus en andere openbaarvervoervoorzieningen zijn eveneens op loopafstand.
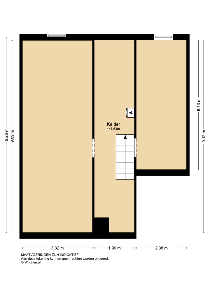
Het appartement heeft een ruime woonkamer van ca. 29m²(!), keuken met diverse inbouwapparatuur, ruime slaapkamer, toiletruimte en nette badkamer. Tevens is er een ruime kelder onder het appartement met een hoogte van ca. 1,63m.
Indeling:
Begane grond:
Enkele treden tot de entree van het appartement. Hal welke toegang geeft tot de woonkamer, keuken, slaapkamer, badkamer, toilet en trap naar de kelder. De keuken is voorzien van een inbouw koelkast, vaatwasser, oven, kookplaat en afzuigkap. De badkamer is voorzien van een douchruimte, meubel met wastafel en wasmachine aansluiting.
Souterrain:
Open ruimte met CV installatie.
Bijzonderheden:
- Het appartement is voorzien van kunststof kozijnen met dubbel glas
- Vloerverwarming aanwezig op de woonverdieping
- De woning is recent gesplitst, de VVE zal verder met de nieuwe eigenaren van nummer 10 moeten worden opgericht. De VvE is al wel ingeschreven bij de KVK
- Niet bewonersclausule en ouderdomsclausule van toepassing
- Projectnotaris van toepassing (Notariskantoor Merwestein Dordrecht)
Kenmerken
Overdracht
- Laatste vraagprijs
- € 320.000 kosten koper
- Vraagprijs per m²
- € 4.848
- Status
- Verkocht
Bouw
- Soort appartement
- Benedenwoning (appartement)
- Soort bouw
- Bestaande bouw
- Bouwjaar
- 1934
- Soort dak
- Zadeldak bedekt met pannen
Oppervlakten en inhoud
- Gebruiksoppervlakten
- Wonen
- 66 m²
- Overige inpandige ruimte
- 64 m²
- Inhoud
- 391 m³
Indeling
- Aantal kamers
- 2 kamers (1 slaapkamer)
- Aantal badkamers
- 1 badkamer en 1 apart toilet
- Badkamervoorzieningen
- Douche en wastafelmeubel
- Aantal woonlagen
- 1 woonlaag
- Gelegen op
- Begane grond
Energie
- Energielabel
- Isolatie
- Dubbel glas
- Verwarming
- Cv-ketel en gedeeltelijke vloerverwarming
- Warm water
- Cv-ketel
- Cv-ketel
- Remeha (gas gestookt combiketel, eigendom)
Kadastrale gegevens
- DORDRECHT F 3101
- Kadastrale kaart
- Eigendomssituatie
- Volle eigendom
Buitenruimte
- Ligging
- Aan rustige weg, aan water, in centrum en in woonwijk
Parkeergelegenheid
- Soort parkeergelegenheid
- Betaald parkeren
VvE checklist
- Inschrijving KvK
- Ja
- Jaarlijkse vergadering
- Nee
- Periodieke bijdrage
- Nee
- Reservefonds aanwezig
- Nee
- Onderhoudsplan
- Nee
- Opstalverzekering
- Nee
Foto's 42
© 2001-2026 funda









































