
Omschrijving
Instapklaar! Comfortabel en gelijkvloers wonen in een keurig verzorgd appartement met balkon, eigen berging en lift in de geliefde woonwijk Sterrenburg!
- niet klussen of verbouwen, maar zorgeloos wonen dichtbij alle wijkvoorzieningen;
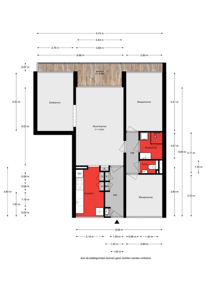
- verrassend ruim 4-kamerappartement gelegen op de tweede verdieping;
- goede leefruimte(n) met fijne woonkamer, aansluitend de eetkamer en twee prima slaapkamers;
- moderne keuken voorzien van inbouwapparatuur;
- moderne badkamer én separate toiletruimte;
- ruim balkon gesitueerd op het westen;
- ruime eigen berging gelegen op de begane grond;
- gezonde en actieve VvE met schappelijke maandelijkse bijdrage en een ruim reservefonds*;
- ruime parkeergelegenheid voor de deur;
- dichtbij het vernieuwde winkelcentrum Sterrenburg, NS-station Dordrecht Zuid, sportverenigingen, het Sterrenburgpark, bibliotheek;
- ook dichtbij het ASZ ziekenhuis en uitvalswegen naar randweg N3 en centrum;
- woonoppervlak 83 m². Bruto inhoud 265 m³.
- bouwjaar 1970.
Indeling:
Begane grond:
Algemene entree, ruime, verzorgde hal met brievenbussen, trappenhuis, liftinstallatie en toegang naar de bergingen.
Tweede verdieping:
Entree, hal met garderobenis voor je jassen, meterkast (zes groepen en twee aardlekschakelaars), cv-kast met opstelplaats van de cv-combiketel (Remeha Avanta Ace, 2023).
Ruime woonkamer gelegen aan de achterzijde, met geschakeld de eetkamer, vaste voorraadkast en toegang tot het balkon.
Tevens een ruime eetkamer (voormalige slaapkamer) gelegen aan de achterzijde.
Moderne open keuken aan de voorzijde, met rechte opstelling v.v. betonlook werkblad, rvs spoelunit, trekladen, onderkasten en apparatuur: afzuiguni, inductiekookplaat, oven en vaatwasser.
Tussenhal met toiletruimte en toegang tot slaapkamers.
Slaapkamer 1 gelegen aan de achterzijde.
Slaapkamer 2 gelegen aan de voorzijde.
Moderne badkamer met geheel betegelde wanden, tegelvloer, wastafelmeubel, douchecabine, elektrische radiator en wasmachineaansluiting.
Moderne toiletruimte met gedeeltelijk betegelde wanden, tegelvloer, hangend closet en fontein.
Balkon/berging:
Balkon: ruim balkon gesitueerd op het westen.
Berging: ruime eigen berging in de onderbouw.
Algemeen:
Vloerafwerking: nette laminaatvloer.
Wandafwerking: structuurverf (woon- en eetkamer), glasvezelbehang (hal en keuken), behang (slaapkamer).
Zonwering: elektrisch uitvalscherm en screens (achterzijde).
Kozijnen/beglazing: houten kozijnen met isolerende beglazing.
Energielabel: C.
Bouwjaar: 1970.
Vereniging van Eigenaars: actieve VvE. Maandelijkse bijdrage ca. € 175,29.
*Het aandeel van dit appartement in het reservefonds is momenteel ca. € 8.850,-.
Kadastrale gegevens: gemeente Dordrecht, sectie Q, nummer 10184, A-20.
Gezien het bouwjaar van de woning wordt er in de koopovereenkomst een ouderdomsclausule opgenomen.
Oplevering: kan snel, in overleg.
Zin om te komen kijken?
Leuk! Bel, mail of app ons, we plannen met plezier een bezichtiging in en beantwoorden we je vragen.
Een tip van ons
Vijfvinkel Trossèl Makelaars werkt in deze verkoop voor de verkoper. Denk er dus bij het kopen van een huis aan om je eigen makelaar mee te nemen, een NVM-aankoopmakelaar die jóuw belangen behartigt. Wel zo verstandig.
Goed om te weten
Bij het sluiten van de koopovereenkomst dient de koper een bankgarantie of waarborgsom van 10% van de koopsom te stellen.
Over deze brochure
We hebben alle informatie met zorg verzameld en gecontroleerd. Toch kan er weleens iets veranderen of een foutje insluipen, we blijven tenslotte mensen. Daarom kunnen er geen rechten worden ontleend aan de inhoud en is Vijfvinkel Trossèl Makelaars niet aansprakelijk voor eventuele onjuistheden of aanpassingen.
Meten is weten – meestal dan
De genoemde oppervlakten (m²) en inhouden (m³) zijn bepaald volgens de NVM-meetinstructie op basis van NEN2580:2007 NL. Deze richtlijn zorgt voor een uniforme manier van meten, bedoeld om een goed beeld te geven van de gebruiksoppervlakte. Toch kunnen er kleine verschillen ontstaan door interpretatie, afronding of praktische beperkingen bij het meten.
Kenmerken
Overdracht
- Aangeboden sinds
- Aanvaarding
- In overleg
- Vraagprijs
- € 285.000 kosten koper
- Vraagprijs per m²
- € 3.434
- Status
- Beschikbaar
- Bijdrage VvE
- € 175,29 per maand
Bouw
- Soort appartement
- Galerijflat (appartement)
- Soort bouw
- Bestaande bouw
- Bouwjaar
- 1970
- Soort dak
- Plat dak bedekt met bitumineuze dakbedekking
- Toegankelijkheid
- Toegankelijk voor ouderen
Oppervlakten en inhoud
- Gebruiksoppervlakten
- Wonen
- 83 m²
- Gebouwgebonden buitenruimte
- 10 m²
- Externe bergruimte
- 8 m²
- Inhoud
- 265 m³
Indeling
- Aantal kamers
- 4 kamers (2 slaapkamers)
- Aantal badkamers
- 1 badkamer en 1 apart toilet
- Badkamervoorzieningen
- Douche en wastafelmeubel
- Aantal woonlagen
- 1 woonlaag
- Voorzieningen
- Buitenzonwering, glasvezelkabel, lift, en mechanische ventilatie
- Gelegen op
- 2e woonlaag
Energie
- Energielabel
- C
- Isolatie
- Dubbel glas
- Verwarming
- Cv-ketel
- Warm water
- Cv-ketel
- Cv-ketel
- Remeha Avanta Ace (gas gestookt combiketel uit 2023, eigendom)
Kadastrale gegevens
- DORDRECHT Q 10184
- Kadastrale kaart
- Eigendomssituatie
- Volle eigendom
Buitenruimte
- Ligging
- In woonwijk
- Balkon/dakterras
- Balkon aanwezig
Bergruimte
- Schuur/berging
- Box
Parkeergelegenheid
- Soort parkeergelegenheid
- Openbaar parkeren
VvE checklist
- Inschrijving KvK
- Ja
- Jaarlijkse vergadering
- Ja
- Periodieke bijdrage
- Ja (€ 175,29 per maand)
- Reservefonds aanwezig
- Ja
- Onderhoudsplan
- Ja
- Opstalverzekering
- Ja
Foto's 41
Plattegronden 2
© 2001-2025 funda










































